| Ownership: | Rental Property |
|---|---|
| Rooms: | 15 |
| Bedrooms: | Studio |
| Pets: | Unknown |
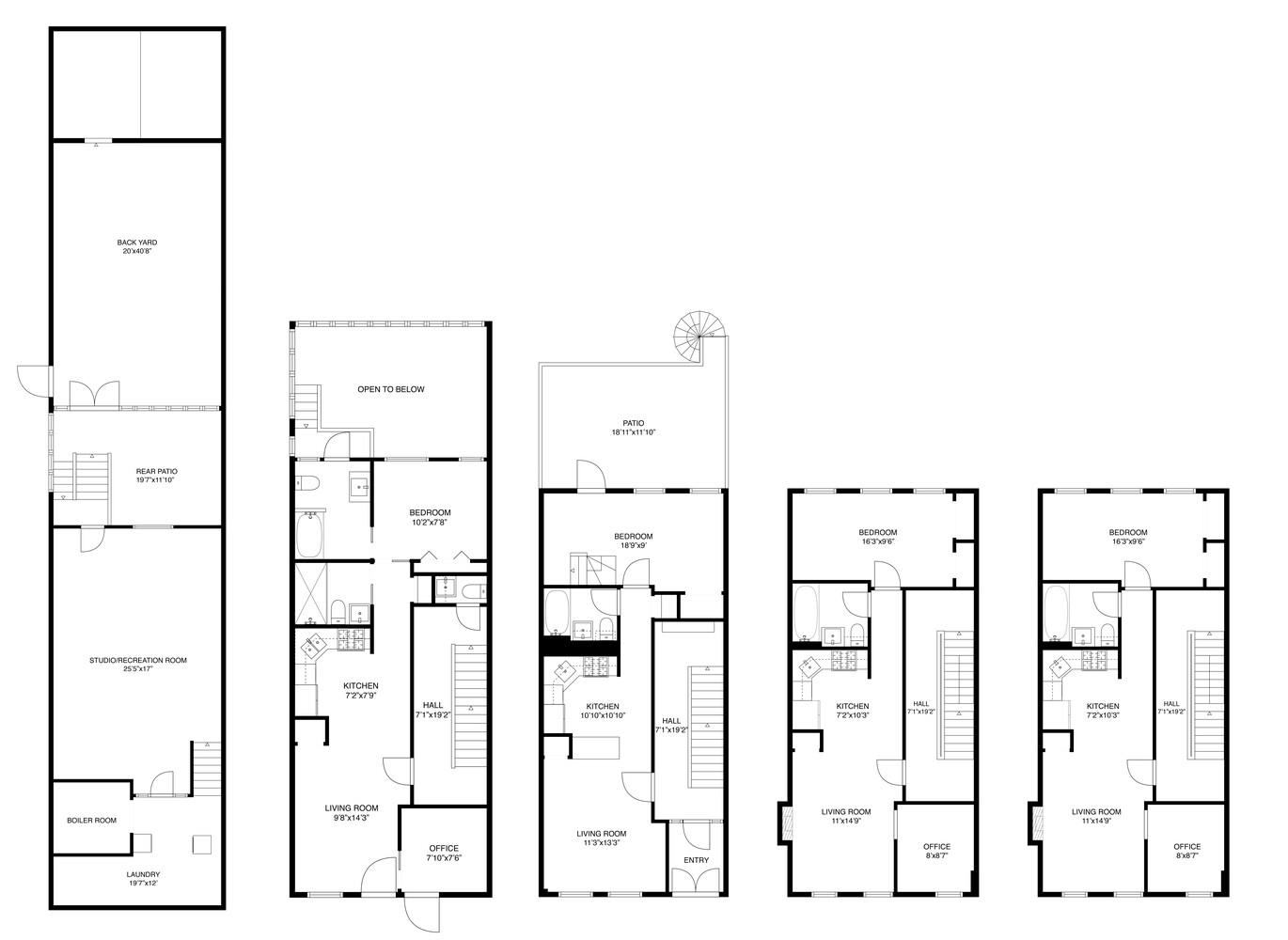
Introducing a meticulously upgraded, turnkey four-family townhouse offering both strong investment appeal and an excellent opportunity for an owner-resident seeking additional income. Stretching a full 20 feet in width, this handsome property has been modernized throughout, including brand-new windows on every level and an efficient split-system climate control setup-meaning no window units are needed. A wired exterior camera network provides added comfort and security.
Building ConfigurationBasement Level
Shared laundry area and mechanical room
Private, finished recreation space exclusively for the garden apartment-ideal for storage, lounge use, or flexible lifestyle needs
Garden Level
Generous two-bedroom, two-bath floor-through home
Front and rear outdoor areas perfect for entertaining or quiet relaxation
Direct access to the backyard for effortless connection to outdoor living
Internal staircase to the private basement recreation room, offering exceptional bonus space
Parlor Floor
Expansive one-bedroom, one-bath residence occupying the full floor
Dramatic ceiling height, hardwood floors, and a welcoming living area
Newly appointed kitchen with stainless steel appliances
Large private deck with stairs leading down to the garden
Third Floor
Full-floor two-bedroom, one-bath apartment
Recently updated kitchen with stainless steel appliances
Deep soaking tub and bright, airy interiors framed by treetop views
Top Floor
Another full-floor two-bedroom, one-bath residence
Fresh kitchen finishes, stainless steel appliances, and soaking tub
Brilliant natural light accented by white wood floors, creating an elevated loft-like feel
Situated moments from the 145 St express station-serving the A, B, C, and D trains-this location offers unmatched convenience. Residents enjoy easy access to many of Harlem's celebrated dining destinations, cultural spaces, and neighborhood parks.
Please note: the floor plan for the ground-floor unit predates the addition of an extra full bath and hallway powder room.
For additional information or to arrange a private showing, feel free to contact me directly.

RLS Data display by Nest Seekers LLC.
All information furnished regarding property for sale, rental or financing is from sources deemed reliable, but no warranty or representation is made as to the accuracy thereof and same is submitted subject to errors, omissions, change of price, rental or other conditions, prior sale, lease or financing or withdrawal without notice. International currency conversions where shown are estimates based on recent exchange rates and are not official asking prices.
All dimensions are approximate. For exact dimensions, you must hire your own architect or engineer.