Babylon, NY 11729

Property

Ownership: For Sale
Type: Single Family
Rooms: 9
Bedrooms: 5 BR
Bathrooms:
Pets: No Pets Allowed
Lot Size: 0.23 Acres

Financials

Price:$729,000
Annual Taxes:$15,183.50
6243 Northern Blvd
Phone:
Listing Courtesy of Signature Premier Properties

Get your home wishlist out this one has all your must haves and plenty of those love to haves too.

Birchwood Section 10,000 SqFt Lot Fully Fenced

Description

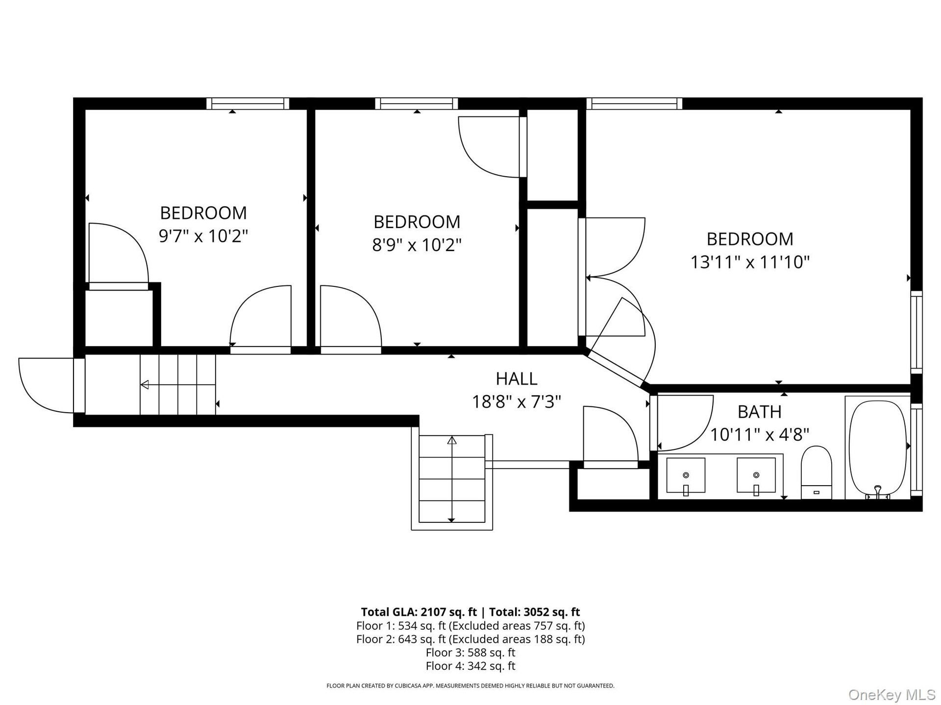
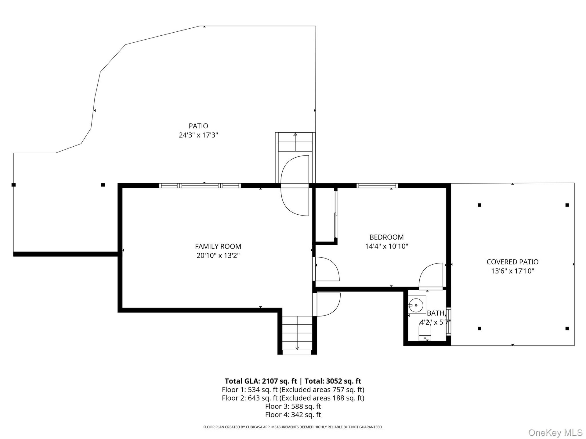
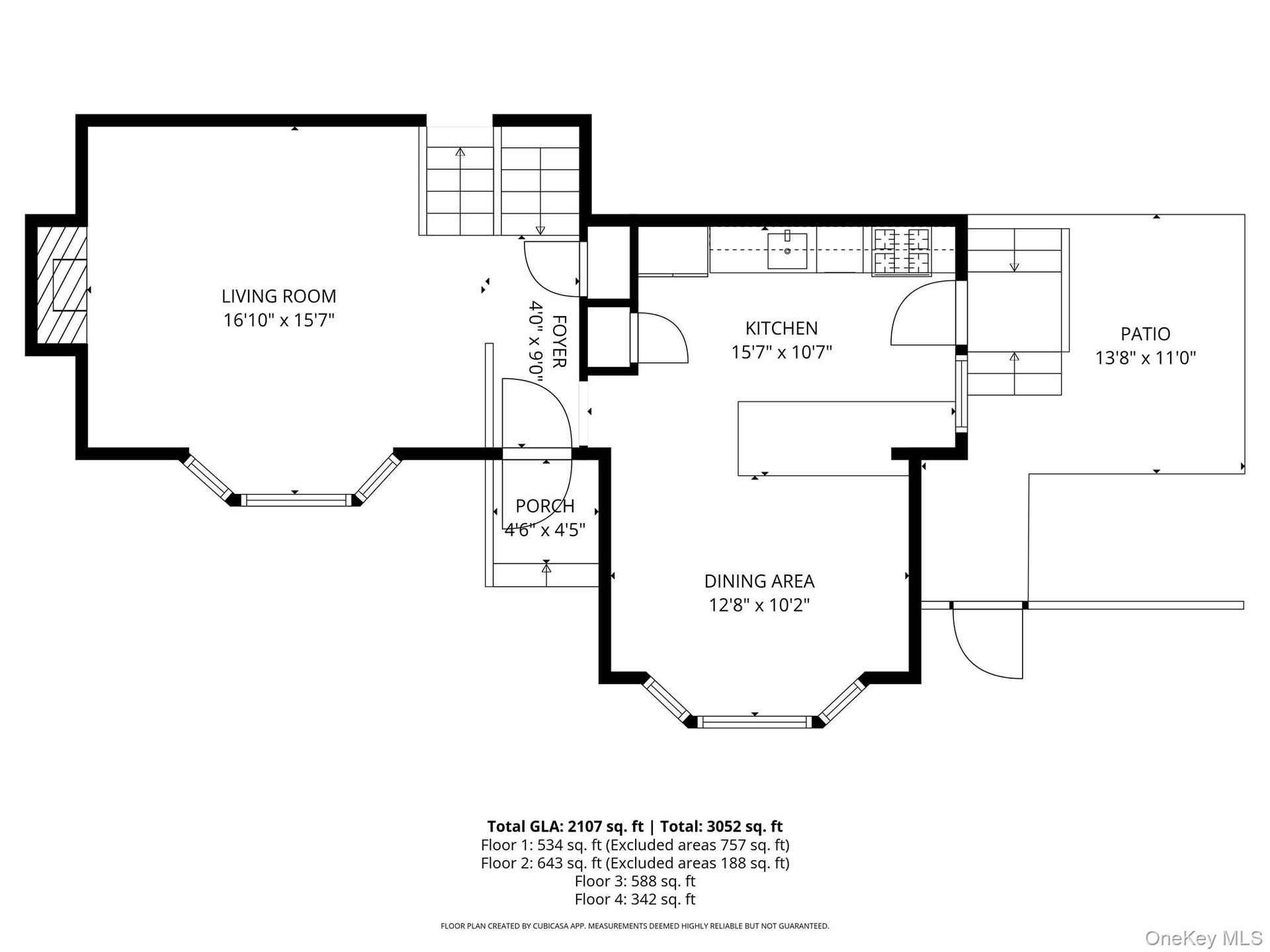
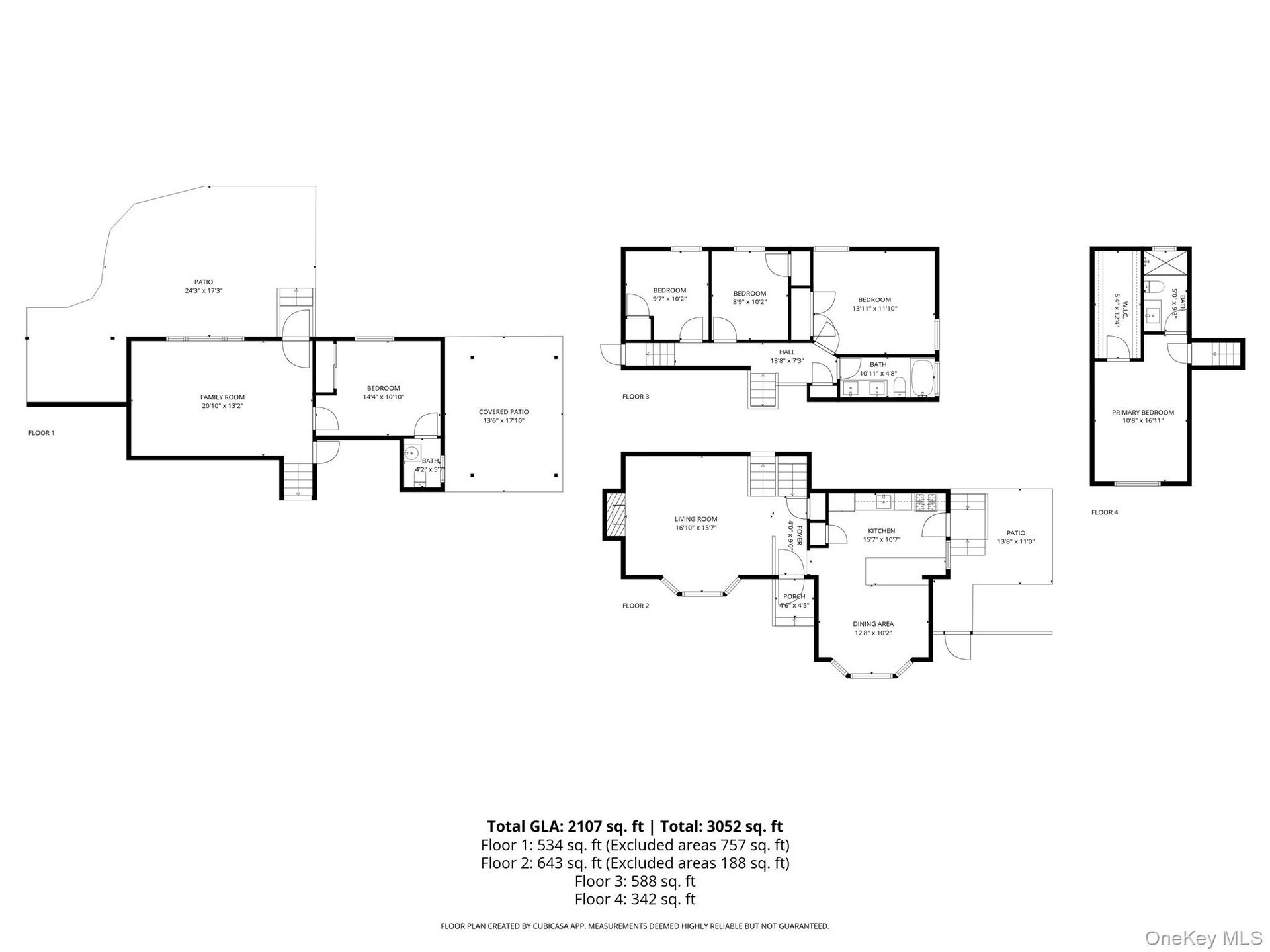
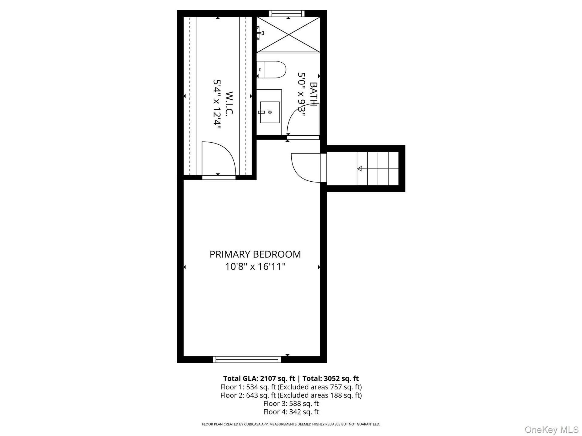
Get your home wishlist out - this one has all your must-haves and plenty of those love-to haves too. This expanded split in the Birchwood Development offers over 2000 sq ft! Four levels of living space, & 1 car garage, and double driveway set on a .23 lot. Let’s get to the important specs - gas cooking, forced hot air gas heating & central air (7 years old), updated 150 amp electric, 10 year old roof, and while the home is currently on a cesspool, the Town of Babylon has sewer plans already in motion for the area. It’s a true 5-bedroom, 2.5-bath split-level that offers both space and comfort, and it’s been remodeled with real care. The main living area spans over 640 sq ft, with cathedral ceilings and a custom shiplap accent wall that’s already wired and ready for whatever setup fits your lifestyle. The space feels open and inviting from the moment you walk in — light-filled, modern, and move-in ready. The kitchen was designed for entertaining — a large island, stainless steel appliances, pantry, and a layout that flows right into the dining room. Off the side, there’s a smaller patio perfect for morning coffee, grilling, or just unwinding outside. The lower level offers even more flexibility — a bright family room with large windows and full egress, plus a bedroom and half bath. Whether you imagine this as a guest suite, media room, or home office, the space just works. Upstairs, you’ll find three nicely sized bedrooms, and the primary suite gets its own private level — complete with an en-suite bath and walk-in closet. It’s exactly the kind of layout that gives everyone their space. What really sets this home apart, though, is the attention to detail. Every choice made during the remodel feels intentional — from the layout to the finishes — so all that’s left for you to do is move in and make it your own.

Amenities

  • Cable - Available
  • Cathedral Ceiling(s)
  • Crown Molding
  • Dishwasher
  • Double Pane Windows
  • Dryer
  • Eat-in Kitchen
  • Electricity Available
  • Electricity Connected
  • ENERGY STAR Qualified Appliances
  • Formal Dining
  • Garden
  • Gas Range
  • Granite Counters
  • High ceiling
  • Kitchen Island
  • Lighting
  • Mailbox
  • Microwave
  • Natural Gas Available
  • Natural Gas Connected
  • Natural Woodwork
  • Open Floorplan
  • Open Kitchen
  • Pantry
  • Phone Available
  • Phone Connected
  • Primary Bathroom
  • Recessed Lighting
  • Refrigerator
  • Screens
  • Stainless Steel Appliance(s)
  • Storage
  • Trash Collection Public
  • Walk-In Closet(s)
  • Washer
  • Washer/Dryer Hookup
  • Water Available
  • Water Connected

Long Island MLS

All information furnished regarding property for sale, rental or financing is from sources deemed reliable, but no warranty or representation is made as to the accuracy thereof and same is submitted subject to errors, omissions, change of price, rental or other conditions, prior sale, lease or financing or withdrawal without notice. International currency conversions where shown are estimates based on recent exchange rates and are not official asking prices.

All dimensions are approximate. For exact dimensions, you must hire your own architect or engineer.