Apt: 4th Floor
New York, NY 10032

Property

Type: Unknown
Bedrooms: Studio
Pets: No Pets Allowed

Financials

Rent:$12,000
505 Park Ave, New York, NY 10022
Listing Courtesy of RE/MAX Voyage Realty

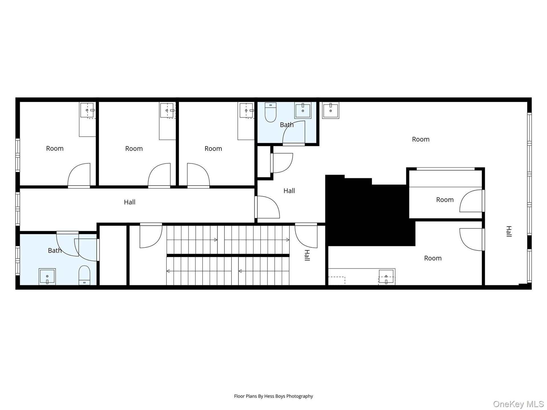
Entire medical floor available for lease in a brand new building located at 505 W 168th St in the heart of Washington Heights.

Description

Entire medical floor available for lease in a brand-new building located at 505 W 168th St in the heart of Washington Heights. This modern, ADA-compliant space offers a rare opportunity for healthcare providers seeking a full private floor within an established medical building. The property features elevator access, flexible layout options, central HVAC. Ideal for a variety of medical uses including outpatient services, diagnostics, specialty practices, physical therapy, behavioral health, imaging, or urgent care. Not being marketed to internist or pediatric practices, as those specialties are already represented within the building. Current tenants include an internist, pediatrics office, and LabCorp, providing strong medical synergies and consistent patient traffic.Located just steps from NewYork-Presbyterian Hospital, Columbia University Irving Medical Center, and public transportation including the A, C, and 1 trains at 168th Street. High-density residential surroundings offer an immediate patient base.Long-term leases available. Competitive terms. A prime opportunity to establish or expand your practice in one of Manhattan’s busiest healthcare corridors.

Amenities

  • Cable Connected
  • City
  • Electricity Connected
  • Sewer Connected

Long Island MLS

All information furnished regarding property for sale, rental or financing is from sources deemed reliable, but no warranty or representation is made as to the accuracy thereof and same is submitted subject to errors, omissions, change of price, rental or other conditions, prior sale, lease or financing or withdrawal without notice. International currency conversions where shown are estimates based on recent exchange rates and are not official asking prices.

All dimensions are approximate. For exact dimensions, you must hire your own architect or engineer.