New York, NY 11237

Property

Ownership: For Sale
Type: Single Family
Rooms: 10
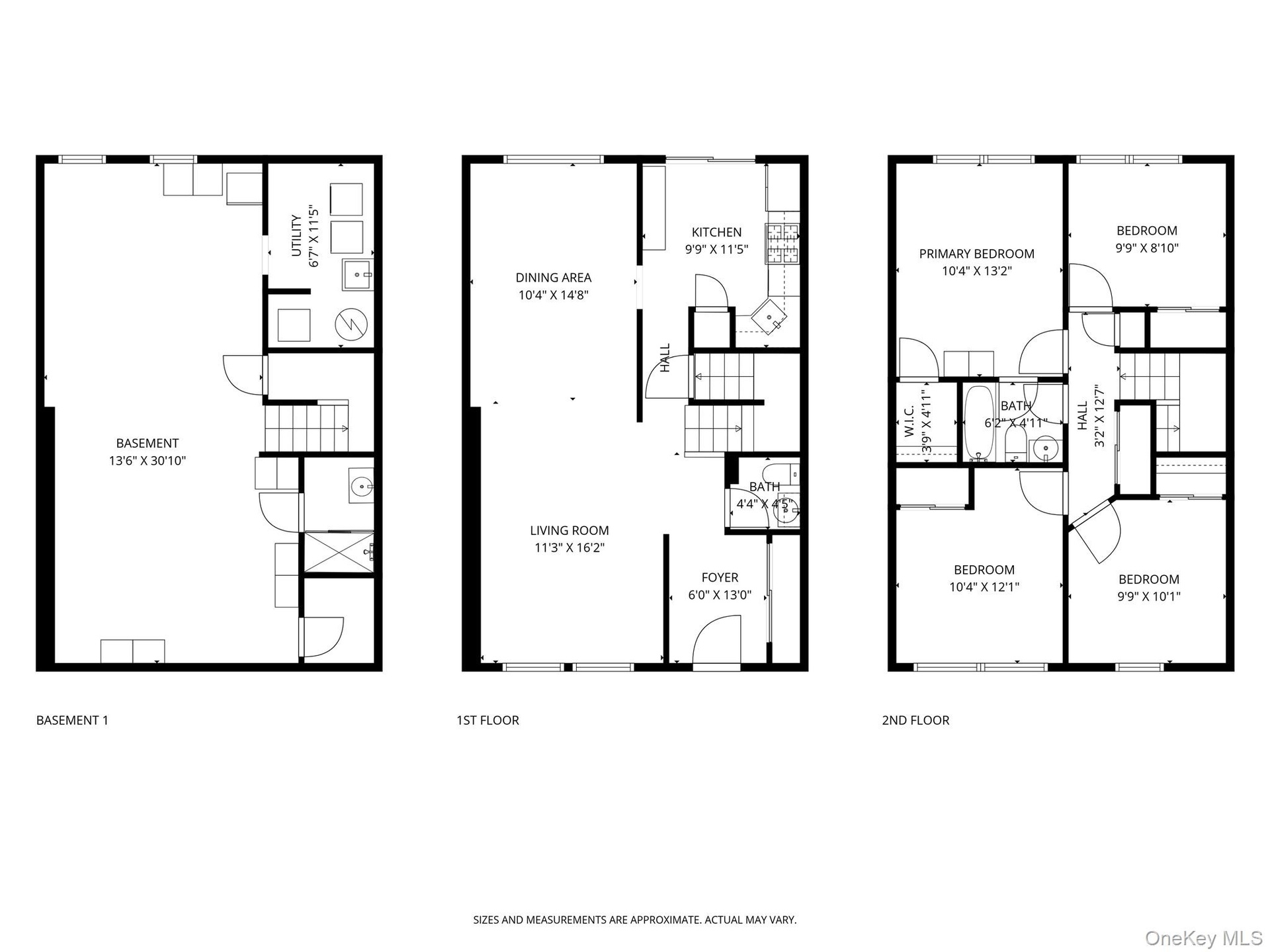
Bedrooms: 4 BR
Bathrooms: 2
Pets: No Pets Allowed
Lot Size: 0.08 Acres

Financials

Price:$1,799,000
Annual Taxes:$5,286
578 Driggs Avenue Brooklyn, NY 11211
Listing Courtesy of Capri Jet Realty Corp

Discover a rare and compelling opportunity in the heart of Bushwick, Brooklyn A vibrant, transit oriented neighborhood with creative energy, thriving local retail, restaurants, and cultural character.

Description

Discover a rare and compelling opportunity in the heart of Bushwick, Brooklyn A vibrant, transit-oriented neighborhood with creative energy, thriving local retail, restaurants, and cultural character. This oversized 36' x 100' double lot property combines immediate move-in comfort with strong development potential for investors and builders looking to capitalize on New York City’s dynamic housing market. Property Overview: Semi-Attached Single Family Home — Approx. 1,400 Sq Ft Building Size: 22' x 33' Bedrooms: 4 Bathrooms: 1 Full + 2 Half Updated Kitchen: Stainless Steel Appliances Well-Maintained Boiler and Gas Heater Finished Basement — ideal for recreation, storage or additional living space Ample Closet Space Outdoor Deck + Huge Back & Side Yard — rare outdoor space on Hart Street Parking for 2 Vehicles — exceptional in this market Zoning & Development Opportunity: Zoning: R6 This property is located in an R6 residential zoning district, a common designation throughout Bushwick that supports a range of residential building types and densities. R6 zoning allows for as-of-right residential development, and on a large lot like this one — 36' x 100' — there is significant development upside. Comparable R6-zoned properties nearby utilize their FAR (Floor Area Ratio) to maximize residential square footage on deep lots, with buildable totals that significantly exceed the existing footprint. With approximately 8,748 sq ft of potential buildable space, this site could accommodate: A multi-unit residential building Townhouse or condo development Expanded single family or duplex configurations This flexibility makes the property especially attractive to developers, builders, or investors seeking to deliver new housing in a highly desirable Brooklyn neighborhood. Prime Location & Neighborhood Highlights Steps From L Train (DeKalb Ave / Jefferson St) — one of the most desirable subway lines for commuters into Manhattan and throughout Brooklyn. Bushwick is known for: -A rich arts and mural culture with local attractions like the Bushwick Collective -A mix of cafés, restaurants, bars and retail shops just blocks away -Proximity to supermarkets, services, parks, and neighborhood amenities -Active development along nearby blocks, including new residential projects permitted and underway, reflecting continued demand for housing in the area (e.g., recent permits filed for multi-unit residential development nearby). This intersection of convenience, culture, and connectivity helps drive strong interest from both occupants and investors. Investment & Development Appeal - Unique Double Lot in Bushwick — double lots are uncommon and highly prized for the flexibility they offer in design and scale. - Buildable Potential — with significant unused development rights under R6 zoning, this property could support new construction or expansion without the need for costly zoning changes. - Balanced Value — combines a solid, updated home with future upside, making it ideal for owner-builders or investors. - Strong Transit & Lifestyle Location — close to L Train access, neighborhood hotspots, and everyday conveniences.905 Hart Street represents a rare blend of livability, outdoor space, parking, and development opportunity in a highly desirable Brooklyn corridor. Whether you’re an investor looking to maximize property potential or a homeowner seeking space and location, this site delivers both present comfort and future possibilities. Building: 22 x 33 ft Lot: 36 x 100 ft Zoning: R6 FAR: .40; Max FAR: 2.43 Taxes: $5,286/Yr

Amenities

  • Cable Connected
  • Ceiling Fan(s)
  • Chandelier
  • Dryer
  • Electricity Connected
  • Gas Cooktop
  • Gas Oven
  • Granite Counters
  • Microwave
  • Natural Gas Connected
  • Oven
  • Phone Connected
  • Sewer Connected
  • Storage
  • Washer

Long Island MLS

All information furnished regarding property for sale, rental or financing is from sources deemed reliable, but no warranty or representation is made as to the accuracy thereof and same is submitted subject to errors, omissions, change of price, rental or other conditions, prior sale, lease or financing or withdrawal without notice. International currency conversions where shown are estimates based on recent exchange rates and are not official asking prices.

All dimensions are approximate. For exact dimensions, you must hire your own architect or engineer.