Hempstead, NY 11783

Property

Ownership: For Sale
Type: Single Family
Rooms: 9
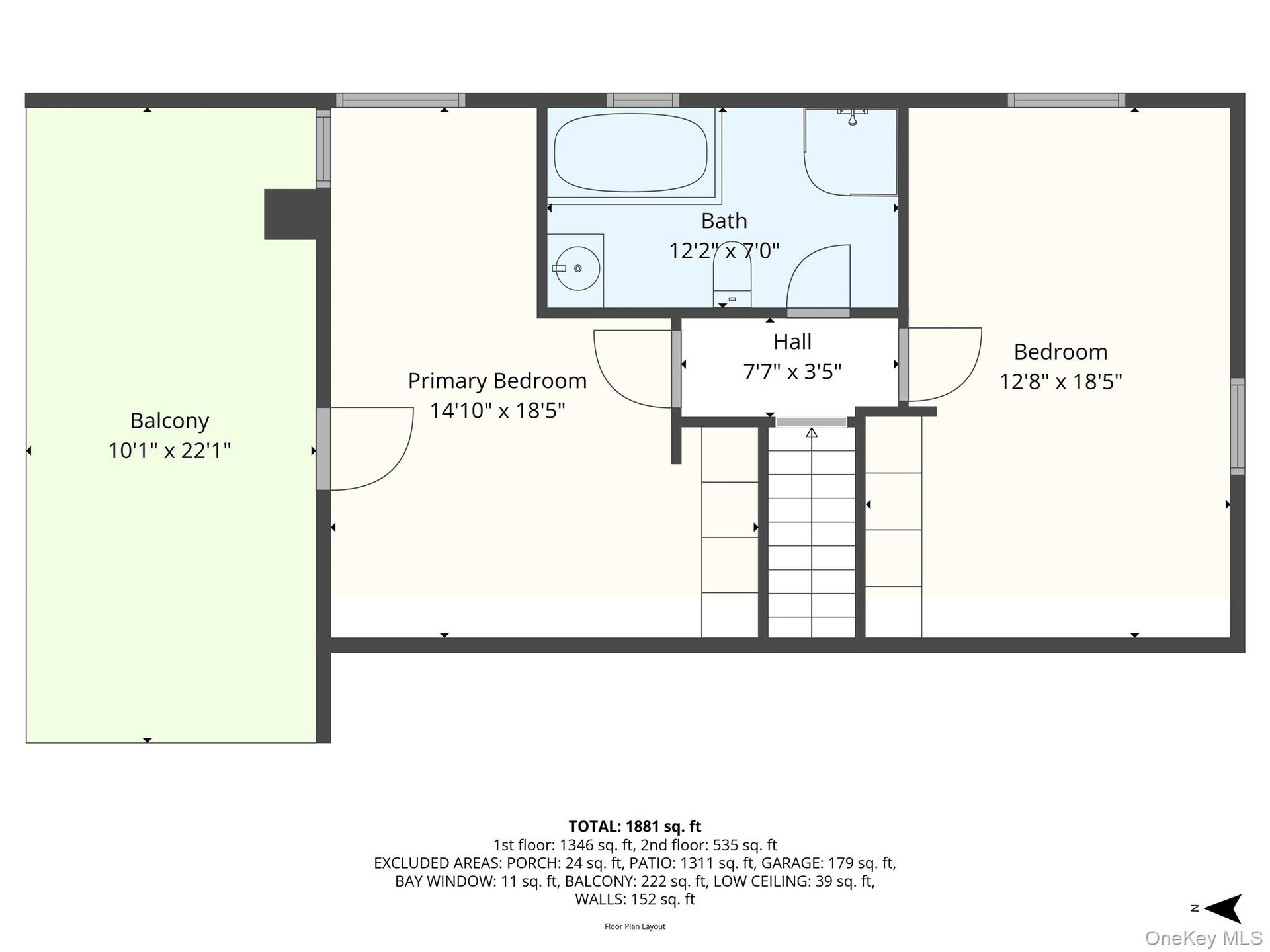
Bedrooms: 4 BR
Bathrooms: 2
Pets: No Pets Allowed
Lot Size: 0.19 Acres

Financials

Price:$682,500
Annual Taxes:$15,078.27
6243 Northern Blvd
Phone:
Listing Courtesy of Progressive Realty Grp USA Inc

Rare opportunity to own a fabulous Cape Cod in highly sought after Seaford This community offers a perfect blend of modern convenience and tranquil living This charming home sits on ...

Cape cod house featuring a gate, a shingled roof, and a garage

Description

Rare opportunity to own a fabulous Cape Cod in highly sought after Seaford*This community offers a perfect blend of modern convenience and tranquil living*This charming home sits on an end of a cul-de-sac on an oversized lot*Upon entry you'll enjoy Hardwood Flooring which continues through the Huge Chef's Kitchen which features Granite Counter Tops*Oak Cabinets*Stainless Steel appliances*Center Island with Pendant Lighting*Stone Backsplash*Open Floor plan leads you into an expansive Living Room with Vaulted ceilings and Hi-Hat recessed lighting including French Doors that open seamlessly into your backyard oasis*Four large bedrooms nicely equipped with some built in closet shelving*Beautifully Landscaped all around*Huge Oversized Backyard Features Outdoor Lighting and layers of expansive pavers with a custom built in fire pit and seating*This Home offers a Huge amount of space for Hobbies,Dreams and Everything in Between*Close to Schools,Shopping, Employment,Public Transportation and Major Roadways*The perfect balance of Luxury,Privacy and Convenience all in one*Virtual staging used in some photographs to show this homes potential*This is a Must See Home with wonderful curb appeal in a great location.

Amenities

  • Back Yard
  • Cathedral Ceiling(s)
  • Chefs Kitchen
  • Crown Molding
  • Dishwasher
  • Double Pane Windows
  • Dryer
  • Eat-in Kitchen
  • Electricity Connected
  • Electric Oven
  • Electric Range
  • ENERGY STAR Qualified Door(s)
  • Fire Pit
  • First Floor Bedroom
  • First Floor Full Bath
  • Formal Dining
  • Granite Counters
  • High ceiling
  • Kitchen Island
  • Landscaped
  • Level
  • Lighting
  • Microwave
  • Near Public Transit
  • Near School
  • Near Shops
  • Neighborhood
  • Open Floorplan
  • Open Kitchen
  • Private
  • Recessed Lighting
  • Refrigerator
  • Secluded
  • Sewer Connected
  • Soaking Tub
  • Stainless Steel Appliance(s)
  • Trash Collection Public
  • Washer
  • Washer/Dryer Hookup
  • Water Available
  • Water Connected

Long Island MLS

All information furnished regarding property for sale, rental or financing is from sources deemed reliable, but no warranty or representation is made as to the accuracy thereof and same is submitted subject to errors, omissions, change of price, rental or other conditions, prior sale, lease or financing or withdrawal without notice. International currency conversions where shown are estimates based on recent exchange rates and are not official asking prices.

All dimensions are approximate. For exact dimensions, you must hire your own architect or engineer.