Esopus, NY 12493

Property

Type: Single Family
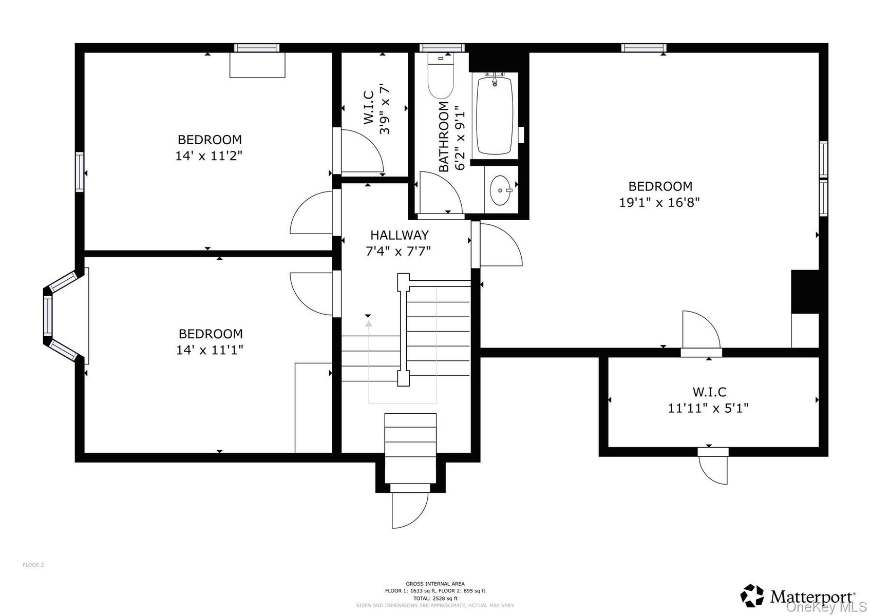
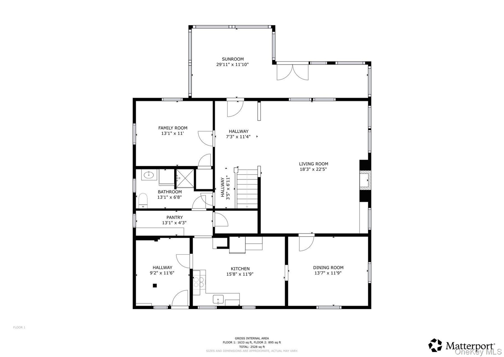
Rooms: 11
Bedrooms: 4 BR
Bathrooms: 2
Pets: Pets Allowed
Lot Size: 1 Acres

Financials

Rent:$4,500
505 Park Ave, New York, NY 10022
Listing Courtesy of Coldwell Banker Village Green

Public Remarks Welcome to 5 Riverby, a rare and truly unique opportunity to be part of Hudson Valley history.

Rear view of property featuring a sunroom, a chimney, a yard, and stone siding

Description

Public Remarks: Welcome to 5 Riverby, a rare and truly unique opportunity to be part of Hudson Valley history. This beautifully renovated home was originally designed and built by Julian Burroughs, the son of the renowned nature writer John Burroughs, and a well- known figure whose legacy is deeply woven into this part of the region. Carved from the Burroughs' 1873 Riverby fruit farm, Julian documented the design and construction of his home in The Craftsman and Country Life in America articles. History greets you as Riverby Lane winds to a home where old-world charm meets modern-day comfort. Set in a serene landscape with seasonal views of the Hudson River and a private path to the water, this home was thoughtfully crafted to reflect the changing seasons—cool and breezy in the summer thanks to the nearby river, and filled with warming sunlight throughout the winter. Inside, the warmth and craftsmanship are immediately evident. Wood lovers will appreciate the original chestnut ceiling, curly birch paneling, cherry wainscoting, birch built-in bookcases, and a bedroom trimmed in Tennessee chestnut. Even the exterior is a celebration of natural materials, finished with slabs of butternut, oak, and chestnut. The layout is both functional and inviting. A spacious mudroom flows easily into the kitchen, dining, and living areas, creating a natural hub for daily living. Also on the main level is a full bathroom and a quiet office or study—perfect for remote work or creative pursuits. A beautifully crafted staircase leads to the upper level, where you'll find three comfortable bedrooms, another full bath, and newly refinished hardwood floors that tie everything together with warmth and elegance. Located just south of Kingston and north of New Paltz and Poughkeepsie, 5 Riverby offers convenient access to everything that makes the Hudson Valley so special—wineries, restaurants, farmers markets, hiking trails, and boutique shops. If you're looking for a place that celebrates history, craftsmanship, and natural beauty, 5 Riverby is more than a home—it's an experience.

Amenities

  • beamed ceilings
  • Built-in Features
  • Cable - Available
  • Ceiling Fan(s)
  • Dryer
  • Eat-in Kitchen
  • Electricity Connected
  • Electric Range
  • Exhaust Fan
  • First Floor Bedroom
  • Microwave
  • Natural Woodwork
  • Original Details
  • Refrigerator
  • River Access
  • Stainless Steel Appliance(s)
  • Washer
  • Waterfront Property

Long Island MLS

All information furnished regarding property for sale, rental or financing is from sources deemed reliable, but no warranty or representation is made as to the accuracy thereof and same is submitted subject to errors, omissions, change of price, rental or other conditions, prior sale, lease or financing or withdrawal without notice. International currency conversions where shown are estimates based on recent exchange rates and are not official asking prices.

All dimensions are approximate. For exact dimensions, you must hire your own architect or engineer.