Huntington, NY 11746

Property

Ownership: For Sale
Type: Single Family
Rooms: 24
Bedrooms: 6 BR
Bathrooms:
Pets: No Pets Allowed
Lot Size: 1 Acres

Financials

Price:$3,100,000
Annual Taxes:$28,798.83
25 Nugent Street, Southampton, NY 11968, USA
Listing Courtesy of Daniel Gale Sothebys Intl Rlty

Welcome to 9 Scenic View Ct.

View of front of property with a chimney and stucco siding

Description

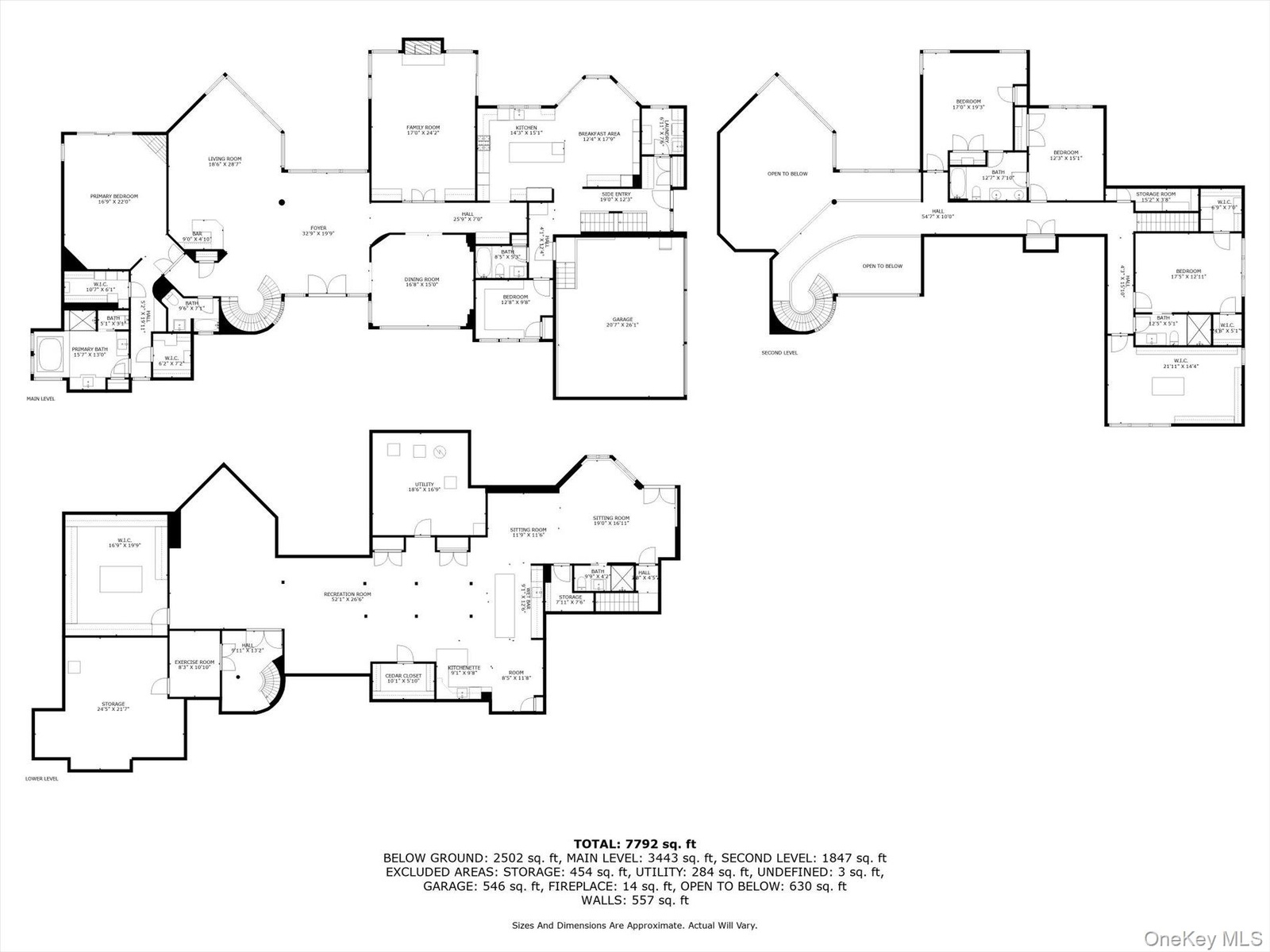
Welcome to 9 Scenic View Ct. in Dix Hills, a truly exceptional residence where luxury, sophistication, and modern living converge. This expansive 6-bedroom, 5.5-bath estate was masterfully remodeled between 2022 and 2023 with high-end finishes, cutting-edge technology, and meticulous attention to detail, offering a resort-style lifestyle right at home. Step into the grand entryway where a dramatic spiral staircase sets the tone for elegance throughout. The first-level primary suite is a private retreat featuring two spacious walk-in closets, a dedicated dressing area, and a spa-like bathroom complete with a steam bath. Cozy evenings are elevated with a gas-burning fireplace in the primary bedroom, while the home’s centralized speaker system by Sonos throughout all three levels and outdoor zones provides seamless ambiance indoors and out. The chef’s kitchen is a culinary masterpiece, fully updated with premium appliances including a Sub-Zero refrigerator, Wolf double wall oven and range, Bosch dishwasher, Bosch drawer microwave, and KitchenAid sink disposal. A grand kitchen island, large wine fridge, and top-tier finishes create a space ideal for entertaining with all major kitchen appliances under warranty through 2028 for added peace of mind. Laundry machines were newly installed in 2024. The finished lower level is designed for both recreation and relaxation, featuring a custom bar with Whirlpool ice machine and sink, a secondary kitchenette, cedar closet, gym, two sitting rooms, pool table gaming area, poker area, and a full bath. A built-in dehumidifier, separate entry, and exterior sump pump to (installed in 2022) enhance comfort and function. Outdoors, a private resort awaits. Enjoy a heated saltwater pool with a 2-year old liner, surround sound system, and 1-year old hot tub, complemented by a cabana with TV, Lynx outdoor BBQ, gas line for BBQ and firepit, and a fully fenced yard. Multiple decks and patios, a paver driveway, professional landscaping, and Alexa-controlled exterior lighting create striking curb appeal. The cedar siding was freshly repainted approximately 3 years ago. For energy efficiency and savings, the home features a professionally-maintained 28.5 kW Sunrun solar system producing ~30,000 kWh/year and offsetting roughly 90% of electric usage, providing current owners with approximately $4,500+ in annual savings vs. PSEG. The solar agreement is assumable by the buyer. Additional highlights include wood floors installed in 2022, Anderson windows, a full-house custom water filtration system (1 year old, stainless steel system), central vacuum on all three levels, 5-zone heating/cooling, full-house generator, and upgraded electrical infrastructure with a robust 500-amp service plus a dedicated 50-amp Tesla charging line. The family room TV remains built into the custom cabinetry. Automated blinds and custom curtains throughout. Two separate staircases, one to the second level and one to the lower level provide convenience and flow. Natural gas service and a recently pumped cesspool (2023) further enhance ease of maintenance. Truly turn-key and extraordinary, 9 Scenic View Ct. is more than a home, it’s a lifestyle.

Amenities

  • Awnings
  • Back Yard
  • Basketball Court
  • Bedroom
  • Bidet
  • Blinds
  • Breakfast Bar
  • Built-in Features
  • Cathedral Ceiling(s)
  • Central Vacuum
  • Chandelier
  • Chefs Kitchen
  • Cooktop
  • Crown Molding
  • Cul-De-Sac
  • Dishwasher
  • Disposal
  • Double Vanity
  • Drapes
  • Dry Bar
  • Dryer
  • Eat-in Kitchen
  • Electricity Connected
  • ENERGY STAR Qualified Appliances
  • ENERGY STAR Qualified Windows
  • Entertainment Cabinets
  • Entrance Foyer
  • Exhaust Fan
  • Fire Pit
  • First Floor Bedroom
  • First Floor Full Bath
  • Floor to ceiling windows
  • Formal Dining
  • Freezer
  • Front Yard
  • Garden
  • Gas
  • Gas Cooktop
  • Gas Grill
  • Gas Oven
  • Gas Water Heater
  • High ceiling
  • His and Hers Closets
  • In-Law Floorplan
  • Kitchen Island
  • Landscaped
  • Lighting
  • Mailbox
  • Master Downstairs
  • Microwave
  • Natural Gas Connected
  • Natural Woodwork
  • Open Floorplan
  • Open Kitchen
  • Oversized Windows
  • Pantry
  • Primary Bathroom
  • Private
  • Rain Gutters
  • Recessed Lighting
  • Refrigerator
  • Screens
  • Security Lights
  • Security System
  • Skylights
  • Smart Thermostat
  • Smoke Detectors
  • Soaking Tub
  • Sound System
  • Speakers
  • Sprinklers In Front
  • Sprinklers In Rear
  • Stainless Steel Appliance(s)
  • Storage
  • Tennis Court(s)
  • Tray Ceiling(s)
  • Video Cameras
  • Walk-In Closet(s)
  • Walk Through Kitchen
  • Wall of Windows
  • Washer
  • Washer/Dryer Hookup
  • Water Purifier Owned
  • Wet Bar
  • Whole House Entertainment System
  • Wine Refrigerator
  • Wired for Sound

Long Island MLS

All information furnished regarding property for sale, rental or financing is from sources deemed reliable, but no warranty or representation is made as to the accuracy thereof and same is submitted subject to errors, omissions, change of price, rental or other conditions, prior sale, lease or financing or withdrawal without notice. International currency conversions where shown are estimates based on recent exchange rates and are not official asking prices.

All dimensions are approximate. For exact dimensions, you must hire your own architect or engineer.