New York, NY 10453

Property

Ownership: For Sale
Type: Duplex
Bedrooms: 5 BR
Bathrooms: 3
Pets: No Pets Allowed
Lot Size: 0.04 Acres

Financials

Price:$799,900
Annual Taxes:$6,420.80
505 Park Ave, New York, NY 10022
Listing Courtesy of RE/MAX Distinguished Hms.&Prop

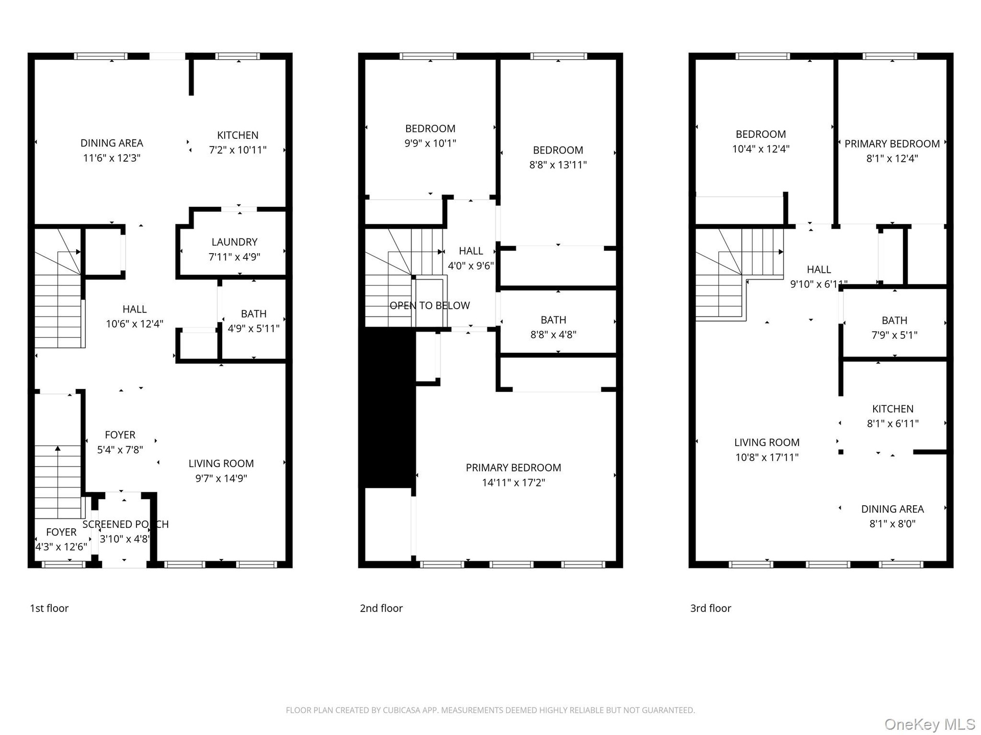
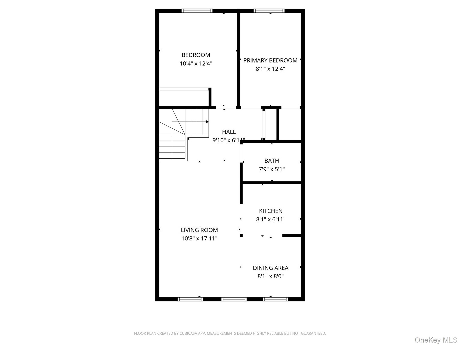
2084 Davidson Ave is a well maintained two family brick home in the University Heights section of the Bronx, offering a strong income producing opportunity with two residential units.

Welcome Home! apartment building with a fenced front yard

Description

2084 Davidson Ave is a well maintained two family brick home in the University Heights section of the Bronx, offering a strong income producing opportunity with two residential units. It's the first time his multi family property has been put on the market, the sellers are the original owners. The home features, private driveway parking, back yard, washer & dryer hook ups in both units and separate gas and electric meters. Located in a desirable Bronx neighborhood close to public transportation, schools, parks, and shopping, this duplex is ideal for owner occupants or investors seeking a solid rental property. The property consists of a three bedroom & 1.5 bathroom duplex unit and a two bedroom unit, both with functional layouts and hardwood floors. Tenants pay their own gas and electric, keeping operating costs low. The home is owner occupied, constructed of brick, and sits on a 20 x 90 lot with city water, city sewer, and gas heat. The duplex boasts, an eat in kitchen, formal dining area, & access to a fenced yard to add to the appeal. Conveniently located near bus lines, major roadways, schools, eateries and local shops, this attached two family home offers stable rental income and long term value in the Bronx. Zoned R7-1 and situated in an opportunity zone, this property presents flexibility for future plans while providing immediate cash flow. A rare chance to own a classic Bronx multi family with strong fundamentals in a high demand area. This Gem is a MUST See ASAP!

Amenities

  • Cable - Available
  • Eat-in Kitchen
  • Electricity Connected
  • Formal Dining
  • Natural Gas Connected
  • Phone Available
  • Sewer Connected
  • Trash Collection Public
  • Water Connected

Long Island MLS

All information furnished regarding property for sale, rental or financing is from sources deemed reliable, but no warranty or representation is made as to the accuracy thereof and same is submitted subject to errors, omissions, change of price, rental or other conditions, prior sale, lease or financing or withdrawal without notice. International currency conversions where shown are estimates based on recent exchange rates and are not official asking prices.

All dimensions are approximate. For exact dimensions, you must hire your own architect or engineer.