South Glengarry K0C 1N0
Canada

Property

Ownership: For Sale
Type: Land
Pets: No Pets Allowed

Financials

Price:C10,999,000
($7,901,400)
(€6,851,900)
Annual Taxes:C14,000
505 Park Ave, New York, NY 10022

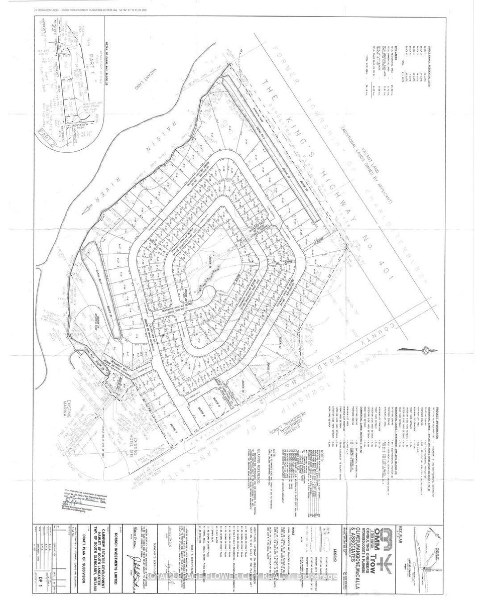
Property for sale formerly known as Cairnview Estates Development is a 68.

Description

Property for sale formerly known as Cairnview Estates Development is a 68.82-acre property with an Approved Draft Plan of Subdivision located in South Lancaster, Ontario, in the Township of South Glengarry. The Draft Plan calls for 184 residential lots and 4 other blocks of land that could be commercial or institutional. 26 of the residential lots are waterfront lots backing onto the Raisin River and two private canals. From the Raison River, you have access (650meters) to the St. Lawrence River. Lancaster is located 21km from the Quebec/Ontario border and52km from Vaudreuil-Dorion. The Property has access to full services that include: municipal water, municipal sewers, electrical, and natural gas.

All information furnished regarding property for sale, rental or financing is from sources deemed reliable, but no warranty or representation is made as to the accuracy thereof and same is submitted subject to errors, omissions, change of price, rental or other conditions, prior sale, lease or financing or withdrawal without notice. International currency conversions where shown are estimates based on recent exchange rates and are not official asking prices.

All dimensions are approximate. For exact dimensions, you must hire your own architect or engineer.