Smithtown, NY 11725

Property

Ownership: For Sale
Type: Single Family
Rooms: 8
Bedrooms: 3 BR
Bathrooms:
Pets: No Pets Allowed
Lot Size: 0.30 Acres

Financials

Price:$675,000
Annual Taxes:$12,586.15
25 Nugent Street, Southampton, NY 11968, USA
Listing Courtesy of Moxie Brokerage Group

Commack Opportunity Prime Location, Great Bones amp ; Endless Potential Welcome to this classic brick split level ranch nestled in a highly desirable Commack neighborhood with top rated schools.

Description

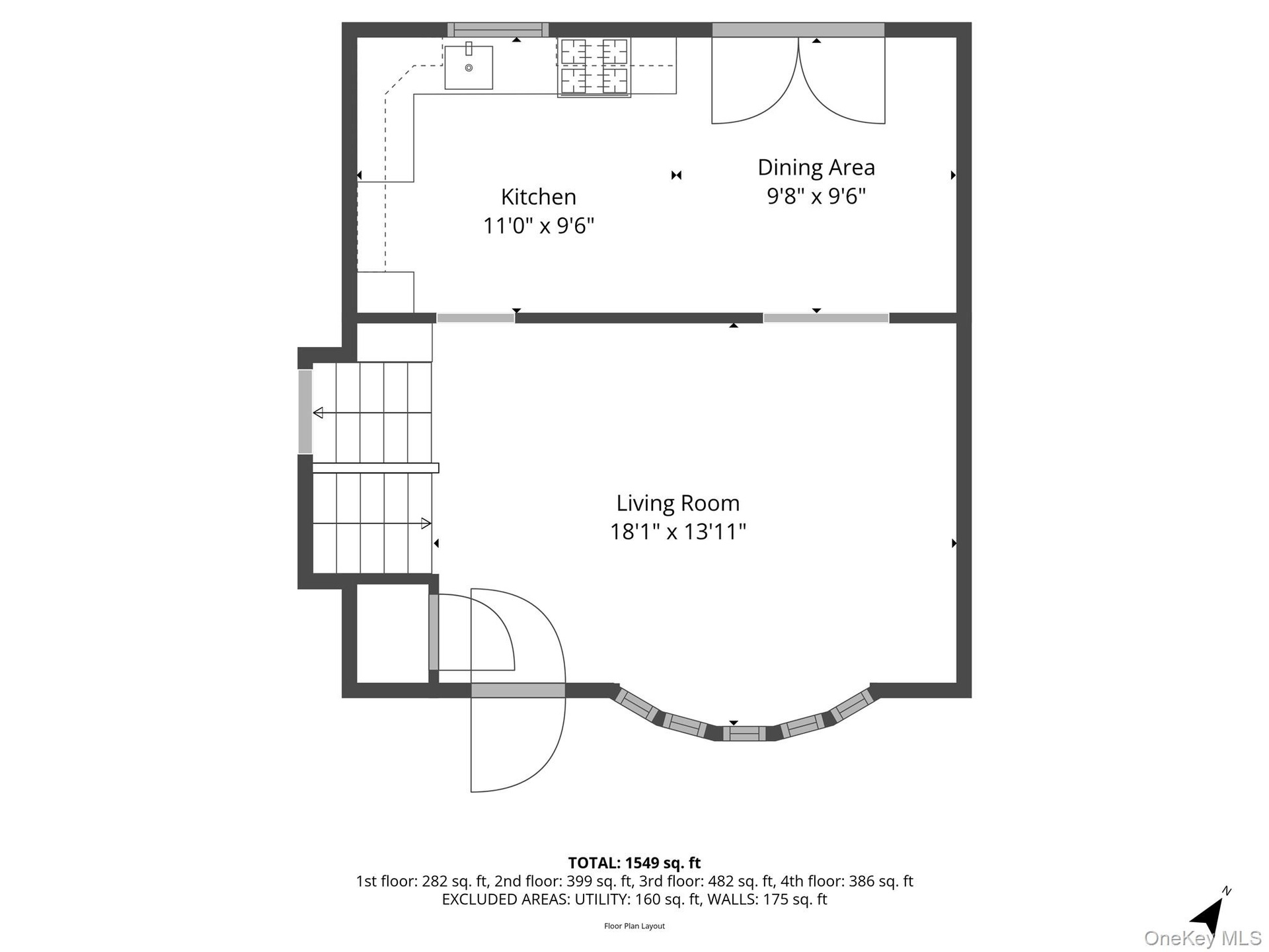
Commack Opportunity – Prime Location, Great Bones & Endless Potential Welcome to this classic brick split-level ranch nestled in a highly desirable Commack neighborhood with top-rated schools. Owned by the original family since 1958, this home is ready for its next chapter. Being sold AS-IS, it offers an exceptional opportunity for investors, renovators, or buyers looking to customize and build equity. Set on a generous .30-acre lot with private side and backyard space, the property features solid construction and a functional layout — the perfect canvas for renovation and modernization. Home Features: 3 Bedrooms | 1.5 Bathrooms ,Main Level: Kitchen, Dining Room with sliders to patio, and Living Room, Upper Level: Two Bedrooms and Full Bathroom, Lower Level: Outside Separate Entrance (OSE) to Den with large brick wood-burning fireplace, additional Bedroom, and Half Bath, Basement: Partially finished with Laundry and Utilities (Natural Gas & Cesspool), 1-Car Garage with convenient storage loft, Spacious, private yard ideal for entertaining or expansion. This home needs TLC, but the structure and layout provide tremendous upside for the right buyer. Whether you are an investor seeking your next project or a homeowner with vision, this property delivers location, lot size, and long-term value potential in one of Commack’s most sought-after areas. All offers in writing w/preapproval and/or proof of funds. No offer considered accepted until contracts are fully executed & delivered. All info to be verified by purchaser. SOLD AS IS, Water heater not working, kitchen does not have dishwasher, refrigerator and microwave hood.

Amenities

  • Gas Oven
  • Masonry
  • Natural Gas Connected
  • Open Kitchen
  • Recessed Lighting
  • Washer/Dryer Hookup
  • Wood Burning

Long Island MLS

All information furnished regarding property for sale, rental or financing is from sources deemed reliable, but no warranty or representation is made as to the accuracy thereof and same is submitted subject to errors, omissions, change of price, rental or other conditions, prior sale, lease or financing or withdrawal without notice. International currency conversions where shown are estimates based on recent exchange rates and are not official asking prices.

All dimensions are approximate. For exact dimensions, you must hire your own architect or engineer.