East Hampton, NY 11930

Property

Ownership: For Sale
Type: Unknown
Pets: No Pets Allowed
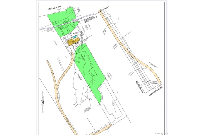
Lot Size: 5.46 Acres

Financials

Price:$5,500,000
Annual Taxes:$2,813.56
25 Nugent Street, Southampton, NY 11968, USA
Listing Courtesy of Engel & Volkers North Fork

Set on an extraordinary 5.

Description

Set on an extraordinary 5.46 acres of direct bayfront in the coveted Lazy Point enclave of Amagansett, 623 Lazy Point Road presents a truly rare opportunity to own a legacy waterfront holding in one of the Hamptons’ most private and naturally beautiful settings. With sweeping, unobstructed views across the bay and exceptional frontage, the property offers an unmatched sense of scale, serenity, and possibility. The expansive acreage allows for the creation of a substantial estate while still preserving open vistas, privacy, and the tranquil character that defines Lazy Point. Gentle coastal breezes, luminous sunsets, and ever changing water views form the daily backdrop, creating a setting that feels both timeless and secluded. This premier bayfront parcel is ideally positioned for a custom residence designed to maximize light, views, and indoor-outdoor living, with ample room for waterfront amenities and resort style grounds. Located moments from ocean beaches, Amagansett Village, and the best of East Hampton, yet removed from through traffic and crowds, Lazy Point remains one of the area’s most discreet and tightly held waterfront communities. Includes permitting approval. An offering of this scale, frontage, and location is exceptionally rare—an opportunity to build a generational Hamptons estate on one of Amagansett’s most prized stretches of bayfront.

Amenities

  • Bayfront
  • Beach Access
  • Beach Front
  • Level
  • Water
  • Water Access
  • Waterfront Property
  • Wooded

Long Island MLS

All information furnished regarding property for sale, rental or financing is from sources deemed reliable, but no warranty or representation is made as to the accuracy thereof and same is submitted subject to errors, omissions, change of price, rental or other conditions, prior sale, lease or financing or withdrawal without notice. International currency conversions where shown are estimates based on recent exchange rates and are not official asking prices.

All dimensions are approximate. For exact dimensions, you must hire your own architect or engineer.