Apt: B-02
New York, NY 11103

Property

Type: Unknown
Bedrooms: Studio
Pets: No Pets Allowed

Financials

Rent:$5,750
47-44 Vernon Blvd, Long Island City, NY 11101
Listing Courtesy of Realty Executives Today

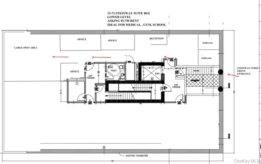
Approximately 2, 000 SF lower level commercial space available at 3272 Steinway Street, Astoria Unit B02, offered at 5, 750 month.

Description

Approximately 2,000 SF lower-level commercial space available at 3272 Steinway Street, Astoria (Unit B02), offered at $5,750/month. This well-maintained, flexible layout includes three private offices, a welcoming waiting area, three private bathrooms, and a spacious open area that can easily be subdivided to accommodate additional rooms or customized build-outs. Situated in an elevator building with a dedicated Steinway Street entrance and separate utilities, providing both convenience and privacy. Located on a high-traffic retail corridor in the heart of Astoria, offering excellent visibility and accessibility. Ideal for medical or professional offices, fitness studio, educational use, or a variety of commercial operations. Prime opportunity in a thriving neighborhood surrounded by strong foot traffic and established businesses.

Amenities

  • Electricity Connected
  • Natural Gas Connected
  • Trash Collection Private
  • Water Connected

Long Island MLS

All information furnished regarding property for sale, rental or financing is from sources deemed reliable, but no warranty or representation is made as to the accuracy thereof and same is submitted subject to errors, omissions, change of price, rental or other conditions, prior sale, lease or financing or withdrawal without notice. International currency conversions where shown are estimates based on recent exchange rates and are not official asking prices.

All dimensions are approximate. For exact dimensions, you must hire your own architect or engineer.