Arcueil, Val-de-Marne 94110
France
Floor:None

Property

Ownership: Building
Type: Building
Rooms: 7

Financials

Price:€1,260,000
($1,466,000)
View this listing in:

immeuble - Arcueil

Description

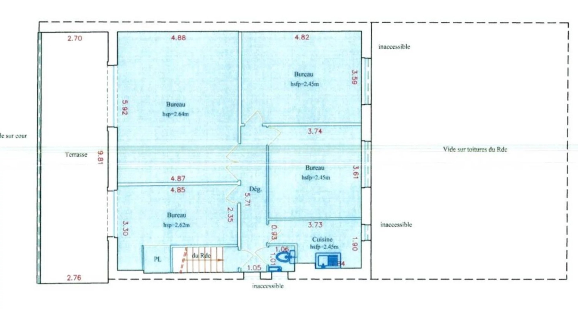
Immeuble récent à usage d’activité, de bureaux mais également d’habitation selon l’urbanisme. • Rez-de-chaussée, 181m2. • Au 1er étage, un 4 pièces de 85m2 avec 26m2 de terrasse. • Au 2ème étage, des combles L’ensemble fait 266m2 avec 26m2 de terrasse.

Amenities

  • Heating

All information furnished regarding property for sale, rental or financing is from sources deemed reliable, but no warranty or representation is made as to the accuracy thereof and same is submitted subject to errors, omissions, change of price, rental or other conditions, prior sale, lease or financing or withdrawal without notice. International currency conversions where shown are estimates based on recent exchange rates and are not official asking prices.

All dimensions are approximate. For exact dimensions, you must hire your own architect or engineer.