Property
| Ownership: | For Sale |
|---|---|
| Type: | Unknown |
| Bedrooms: | 4 BR |
| Bathrooms: | 3 |
| Pets: | Pets Allowed |
Financials
Price:$690,000
Annual Taxes:$5,007
Listing Courtesy of Edwin Vega Realty LLC
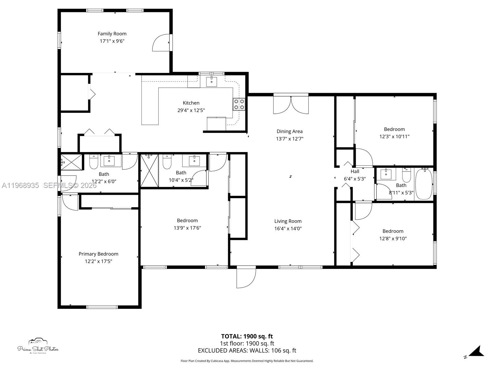
Spacious 4 bedroom, 3 bath single family home with NO HOA and a classic traditional layout !
Description
Spacious 4-bedroom, 3-bath single-family home with NO HOA and a classic traditional layout! Two bedrooms feature en-suite bathrooms, offering flexibility for guests or multi-generational living. The home includes a formal living and dining room plus a separate family room highlighted by a beautiful wood ceiling, creating a warm and inviting gathering space. Two additional storage closets provide extra functionality.
The remodeled L-shaped kitchen offers stainless steel appliances, dine-in seating, and is separate from the formal dining area. Bathrooms have been tastefully updated. Major upgrades include a brand-NEW 2025 METAL ROOF and impact windows for peace of mind and insurance savings.
Enjoy outdoor living in the fenced backyard with privacy landscaping, sparkling pool, and backyard shed for storage. The property also features a front porch area and sidewalk in front of the home.
Conveniently located minutes from US-1, offering abundant dining, shopping, and everyday conveniences, and just a short drive to Zoo Miami. A fantastic opportunity to own a move-in-ready home in a prime location!
Virtual Tour: https://www.propertypanorama.com/instaview/mia/A11968935
Amenities
- BedroomOnMainLevel
- Blinds
- Dishwasher
- FamilyDiningRoom
- Fence
- FirstFloorEntry
- ImpactGlass
- LessThanQuarterAcre
- Lighting
- LivingDiningRoom
- MainLevelPrimary
- Patio
- Pool
- SecurityHighImpactDoors
- Shed
- Sidewalks
- StreetLights
- TubShower

All information furnished regarding property for sale, rental or financing is from sources deemed reliable, but no warranty or representation is made as to the accuracy thereof and same is submitted subject to errors, omissions, change of price, rental or other conditions, prior sale, lease or financing or withdrawal without notice. International currency conversions where shown are estimates based on recent exchange rates and are not official asking prices.
All dimensions are approximate. For exact dimensions, you must hire your own architect or engineer.