Delray Beach, FL 33444

Property

Ownership: For Sale
Type: Single Family
Rooms: 4
Bedrooms: 4 BR
Bathrooms: 3
Pets: Pets Allowed
Lot Size: 0.2 Acres

Financials

Price:$1,489,000
Annual Taxes:$12,865.11
Common charges:$275
888 Biscayne Blvd # Unit CU9 Miami, FL 33132
Listing Courtesy of Compass Florida LLC

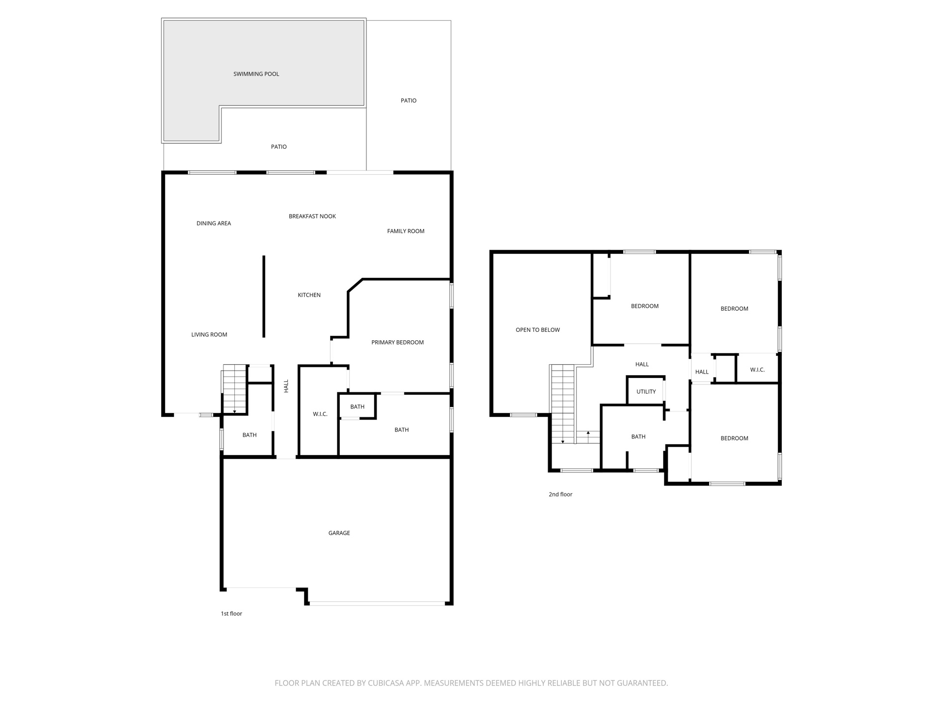
Welcome to 1211 Delray Lakes Drive, a spacious, move in ready two story home in gated Delray Lakes in Delray Beach.

Description

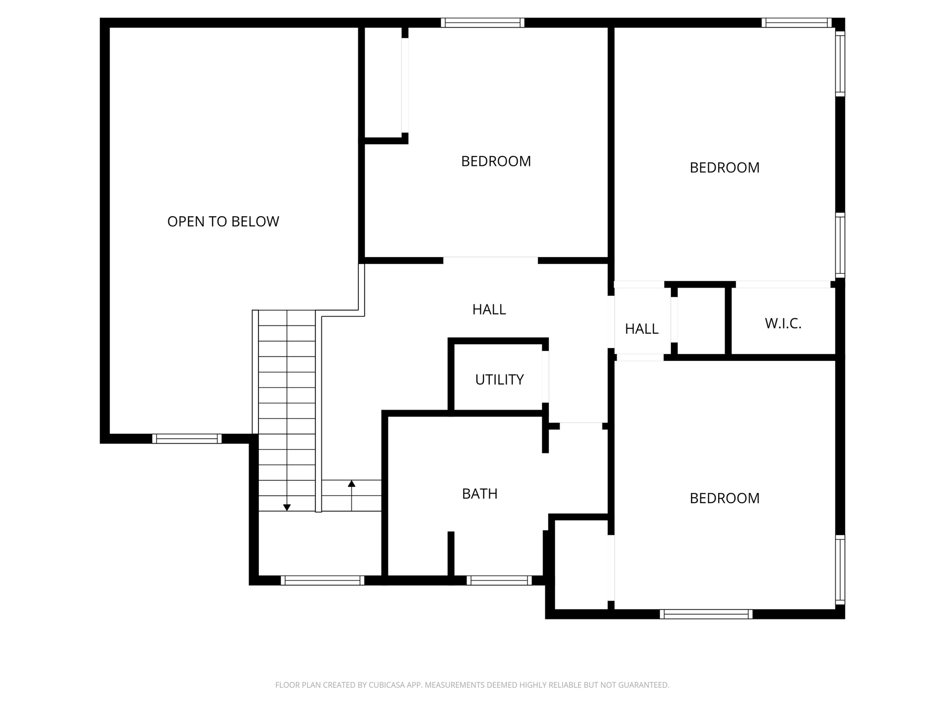
Welcome to 1211 Delray Lakes Drive, a spacious, move-in ready two-story home in gated Delray Lakes in Delray Beach. Meticulously renovated throughout, this 4 bed, 3 bath home has all impact windows and doors, a 3 car garage, new roof (2024), and a newer pool (installed 2023), all overlooking serene lake views. The residence exudes coastal modern comfort with a well laid out floorplan. Upon entering, you are greeted by water views. European White Oak hardwood flooring throughout. Volume ceilings add an airy and spacious feel, enhancing the overall sense of openness. With a thoughtfully designed floor plan, this residence offers a perfect blend of traditional elegance while maintaining a great flow. Don't miss your opportunity to own in this great gated community in Delray Beach. First floor features a spacious primary bedroom suite, along with an additional full bathroom. Family room, living, room, kitchen, and dining room are also downstairs. Upstairs, 3 additional bedrooms and 1 bath provide space for family and guests, ensuring everyone enjoys privacy and comfort. The kitchen features gorgeous natural quartzite countertops and backsplash and top-quality floor to ceiling Lioher cabinetry. Appliances have all been updated: LG Electric Range/Stove (2026). Miele Dishwasher (2025). LG Refrigerator (2022). LG Washer/Dryer (2022) The backyard oasis features a newly installed pergola (2025). New pool (2023) features marble tile with turf inlay. Multiple sun shelfs and a bench make this backyard a great hang-out spot. Overlooking the lake, it invites you to relax and unwind in the Florida sunshine. Delray Lakes is a single-family gated community located east of I-95 and close to downtown Delray Beach. The community features a community pool (heated) with pavilion and restrooms, playground and 2 lighted tennis/pickleball courts. Tree lined streets create a lovely shaded canopy, along with street lights, sidewalks, and a private boat storage area and ramp leading directly onto Lake Ida. Monthly dues also include remotely monitored home security systems and high-speed internet. The front gate is located a short walk away from Lake Ida Park + Dog Park, a 189+ acre Palm Beach County Park that is home to a 2+ mile walking/biking/running path that follows the shoreline. There is the aforementioned dog park, picnic pavilions, shelters, boat launches and trailer parking, canoe/kayak launches, restrooms, overlooks and playgrounds. Delray Beach offers a variety of world-class public and private school options, many located within close proximity to Delray Lakes. Morikami Park Elementary School consistently ranks as one of the top elementary schools in Florida and offers the International Baccalaureate Primary Years Programme (IB PYP) for grades K-5. The IB PYP curricular framework focuses on the development of the whole child in a learning environment that encourages independence, academic challenges, inquiry, creativity, and responsible citizenship. This Choice program offers a comprehensive, inquiry-based approach to teaching and learning in an internationally designed concept-based model with guidelines on student learning styles, methodologies and assessment strategies. The PYP is a combination of the best research and practices from international schools and includes the study of world languages and cultures to enhance the international perspective. The IB Programme can be continued at Carver Middle School and Atlantic High School. Additional private and semi-private early learning, elementary, and middle school options in Delray Beach are available at Unity School, Space of Mind, Trinity Lutheran & St. Vincent Catholic School. The Gulf Stream School, American Heritage, Pine Crest, and St. Andrews Schools are all located a short drive from this great Delray Beach location as well.

Amenities

  • Boating
  • Cable - Available
  • Dishwasher
  • Disposal
  • Dryer
  • Electric Range
  • Electric Water Heater
  • Gated No Guard
  • High ceiling
  • Ice Maker
  • Lake
  • Microwave
  • Playground
  • Pool
  • Range
  • Refrigerator
  • Sewer Available
  • Sidewalks
  • Smoke Detectors
  • Storm Window(s)
  • Street Lights
  • Tennis Court(s)
  • Vaulted Ceiling(s)
  • Washer
  • Water
  • Water Available
  • Water Heater
  • Zero Lot Line

All information furnished regarding property for sale, rental or financing is from sources deemed reliable, but no warranty or representation is made as to the accuracy thereof and same is submitted subject to errors, omissions, change of price, rental or other conditions, prior sale, lease or financing or withdrawal without notice. International currency conversions where shown are estimates based on recent exchange rates and are not official asking prices.

All dimensions are approximate. For exact dimensions, you must hire your own architect or engineer.