Toronto E01 M4L 1Z5
Canada

Property

Ownership: For Sale
Type: Unknown

Financials

Price:C4,295,000
($3,101,700)
(€2,656,300)
Annual Taxes:C20,361.16
505 Park Ave, New York, NY 10022

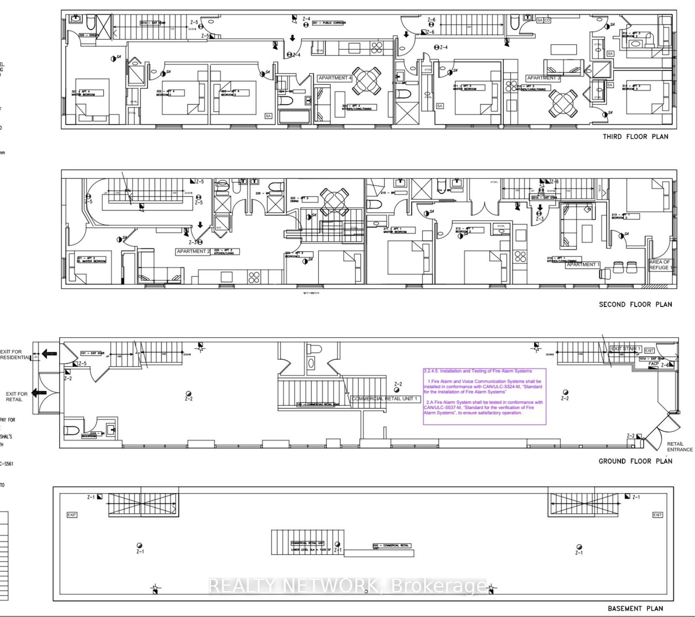
Turn key mixed use investment opportunity in prime downtown Toronto 1 Commercial 5 Residential.

Description

Turn-key mixed-use investment opportunity in prime downtown Toronto (1 Commercial + 5 Residential). Fully renovated building featuring a large main-floor commercial unit with full basement plus 5 high-end residential apartments above. Situated on a high-exposure corner lot offering excellent street presence. With over 7,000 sq ft of leased space with three on-site parking spaces, this a low-maintenance, cash flowing asset ideal for investors seeking a stable mixed-use property in a highly desirable urban location. Simply acquire and enjoy this fully upgraded, income-producing building. Contact us today for the full listing package! The seller is willing to provide a 75% Vendor Take Back (VTB) mortgage at 6.89% fully open for 2 years to qualified buyers. 3 parking spots are for the main floor commercial tenant which they made into a patio.

Amenities

  • Public Transit

All information furnished regarding property for sale, rental or financing is from sources deemed reliable, but no warranty or representation is made as to the accuracy thereof and same is submitted subject to errors, omissions, change of price, rental or other conditions, prior sale, lease or financing or withdrawal without notice. International currency conversions where shown are estimates based on recent exchange rates and are not official asking prices.

All dimensions are approximate. For exact dimensions, you must hire your own architect or engineer.