Property
| Ownership: | Co-op |
|---|---|
| Rooms: | 2 |
| Bedrooms: | 1 BR |
| Bathrooms: | 1 |
| Pets: | Case by Case |
Open Houses
Contact for details !
Financials
Listing Courtesy of LoHo Realty Inc
Prime Real Estate in a Prime Location Welcome to the Lower East Side !
Description
**Prime Real Estate in a Prime Location – Welcome to the Lower East Side!**
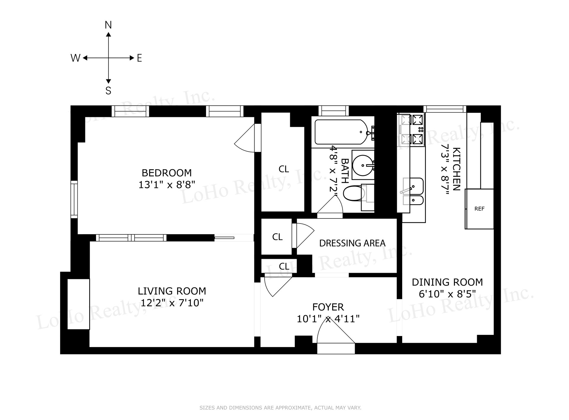
This thoughtfully reimagined one-bedroom—formerly a studio—has been expertly designed and fully renovated to maximize both space and light.
The newly created bedroom features three oversized windows with western and northern exposures, filling the home with beautiful natural light throughout the day. A sleek partition wall with frosted acrylic paneling separates the bedroom from the living area, allowing light to filter through while maintaining privacy.
At the opposite end of the apartment, the fully renovated eat-in kitchen blends style and function. It features crisp white cabinetry, granite countertops, and a classic white subway tile accent wall. Full-size appliances include a refrigerator, microwave, and Smart Oven, with ample space to add a dishwasher if desired. A ceiling fan with integrated lighting and a full-size window provide excellent ventilation and airflow.
Between the living area and kitchen is a versatile dressing area that can easily double as a home office nook. Just beyond is the beautifully renovated windowed bathroom, finished with white subway tile, a deep soaking tub with glass shower doors, a new vanity, updated lighting, and tiled flooring.
Additional highlights include:
•Hillman’s signature rounded archways
•Soaring 9’6” beamed ceilings
•Spacious entry foyer
•Three closets, including an oversized walk-in closet in the bedroom
•Smart window air conditioning
•New waterproof luxury vinyl flooring
•Updated plumbing
•Fully upgraded electrical panel
Co-op amenities (additional fees and wait lists may apply) include 24/7 state-of-the-art fitness center and 24/7 modern laundry room, children’s playroom, private parks and playground, on-site super & maintenance staff, community garden, composting, bike storage, parking, electronics recycling & clothing donation. Washers/dryers allowed with management approval. Dogs (up to 35lb. weight limit) are allowed subject to registration, fee & approval. Co-purchase, pied-a-terre and gifting are allowed. Subleasing after 2 years of ownership. Short walk to Target, Trader Joes, Essex Market, Regal Cinemas & more! Transportation: M14A, M14D, M21, & M22 buses. J, M and F trains at Delancey & Essex Streets. F train at East Broadway & Rutgers Streets.
Amenities
Bike Room; Garage; Garden; Fitness Room; Laundry Room; Common Storage;
- Attended Lobby
- Elevator
- Fitness Facility
- Garage
- Garden
- Laundry Room
Neighborhood
More listings:

RLS Data display by Nest Seekers LLC.
All information furnished regarding property for sale, rental or financing is from sources deemed reliable, but no warranty or representation is made as to the accuracy thereof and same is submitted subject to errors, omissions, change of price, rental or other conditions, prior sale, lease or financing or withdrawal without notice. International currency conversions where shown are estimates based on recent exchange rates and are not official asking prices.
All dimensions are approximate. For exact dimensions, you must hire your own architect or engineer.