Property
| Ownership: | Mixed Use |
|---|---|
| Rooms: | 4 |
| Bedrooms: | Studio |
Financials
Price:$850,000
Real estate tax:$5,160
Listing Courtesy of Compass
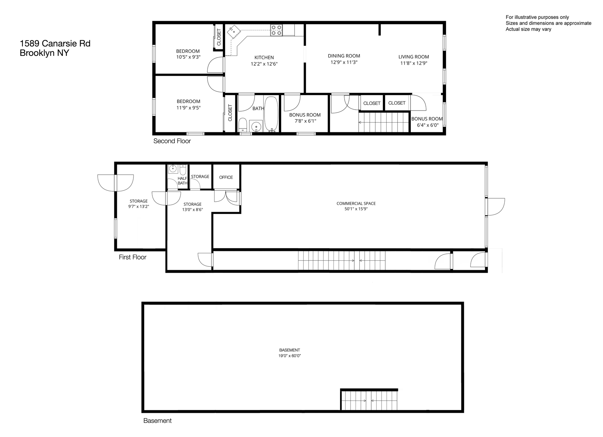
Exceptional opportunity to acquire a 2, 000 square foot mixed use building in the Canarsie section of Brooklyn.
Description
Exceptional opportunity to acquire a 2,000 square foot mixed-use building in the Canarsie section of Brooklyn. This income-producing property features a fully operational laundromat on the ground floor and a two-bedroom residential apartment above, offering a strong combination of commercial and residential revenue.
The commercial space is currently operating as a neighborhood laundromat equipped with approximately 18 washers and 20 dryers, serving the surrounding residential community and benefiting from consistent daily demand. The second-floor two-bedroom apartment provides additional rental income, making the property well-suited for investors seeking a stable mixed-use asset or for an owner-operator looking to run their own business while collecting residential rent.
The property also includes accessible on-site parking, a valuable amenity for both customers and residents. Positioned on Canarsie Road, a well-traveled corridor, the building benefits from strong neighborhood density and visibility.
This is a rare opportunity to own a turnkey mixed-use property in a growing Brooklyn neighborhood with strong income potential.
Property Features:
Mixed-use building (commercial + residential)
Approximately 2,000 sq ft building size
Ground-floor laundromat with 18 washers and 20 dryers
Second-floor two-bedroom residential unit
Accessible on-site parking
High visibility location in Canarsie
Strong investment and income potential
Amenities
- Basement

RLS Data display by Nest Seekers LLC.
All information furnished regarding property for sale, rental or financing is from sources deemed reliable, but no warranty or representation is made as to the accuracy thereof and same is submitted subject to errors, omissions, change of price, rental or other conditions, prior sale, lease or financing or withdrawal without notice. International currency conversions where shown are estimates based on recent exchange rates and are not official asking prices.
All dimensions are approximate. For exact dimensions, you must hire your own architect or engineer.