Property
| Ownership: | Multi-Family |
|---|---|
| Rooms: | 6 |
| Bedrooms: | Studio |
Open Houses
Contact for details !
Financials
Price:$1,750,000
Real estate tax:$7,359
Listing Courtesy of Brown Harris Stevens Residential Sales LLC
Welcome to one of Brooklyn's most vibrant and historic neighborhoods.
Description
Welcome to one of Brooklyn's most vibrant and historic neighborhoods. Located in Prospect Lefferts Gardens this two-family barrel-front townhouse is generously sized, sun-filled and includes a number of recent upgrades.
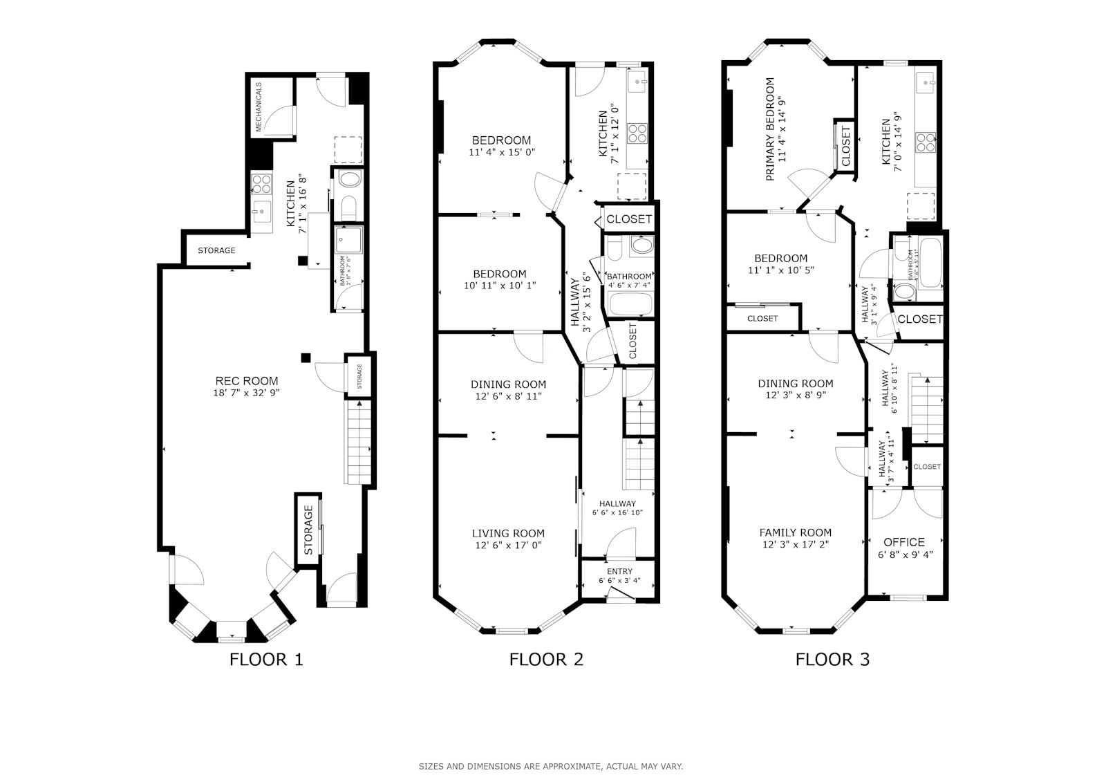
Measuring 20 x 50 on a 100-foot lot, the property is currently configured as two separate floor-through apartments plus a full basement. In total, the house features four bedrooms, three bathrooms, a home office, and a finished recreation level. The flexible layout presents an opportunity to create a home that fits your lifestyle - Keep the current setup with rental income or convert the home into a single-family residence. Note: Home already has two meters and two hot water heaters for anyone wishing to live-in one apartment and rent out the other - fyi.
The 1st floor & 2nd floor apartments have a nearly identical layouts. Both feature newly renovated Kitchens with windows overlooking the backyard, finished with white cabinetry, stylish backsplashes, countertops, hardware, lighting, and new flooring. The Living Rooms are large with three south facing bay windows each and open to the Dining Room areas. Bedrooms are well-proportioned, quiet, and comfortable.
The Rec Room level is carpeted and ideal as a family room, media room, gym, guest suite - your choice. Mechanicals are located on the Rec Room level along with a bathroom, English basement style windows, a kitchen and exits to both the front & back yards. Backyard is private and offers a peaceful setting for relaxing, barbecuing, and entertaining friends. The furnace was replaced in 2025 - fyi.
Located on a quiet, tree-lined block, 251 Rutland Road is ideally situated near Prospect Park and all it has to offer, as well as the Brooklyn Botanic Garden and Brooklyn Museum. PLG has a wealth of transportation choices including multiple subway lines, bus routes, and Citi Bike stations. Finally, the neighborhood also offers a fantastic mix of local shops and dining options.
Welcome home to the best of Brooklyn!
Measuring 20 x 50 on a 100-foot lot, the property is currently configured as two separate floor-through apartments plus a full basement. In total, the house features four bedrooms, three bathrooms, a home office, and a finished recreation level. The flexible layout presents an opportunity to create a home that fits your lifestyle - Keep the current setup with rental income or convert the home into a single-family residence. Note: Home already has two meters and two hot water heaters for anyone wishing to live-in one apartment and rent out the other - fyi.
The 1st floor & 2nd floor apartments have a nearly identical layouts. Both feature newly renovated Kitchens with windows overlooking the backyard, finished with white cabinetry, stylish backsplashes, countertops, hardware, lighting, and new flooring. The Living Rooms are large with three south facing bay windows each and open to the Dining Room areas. Bedrooms are well-proportioned, quiet, and comfortable.
The Rec Room level is carpeted and ideal as a family room, media room, gym, guest suite - your choice. Mechanicals are located on the Rec Room level along with a bathroom, English basement style windows, a kitchen and exits to both the front & back yards. Backyard is private and offers a peaceful setting for relaxing, barbecuing, and entertaining friends. The furnace was replaced in 2025 - fyi.
Located on a quiet, tree-lined block, 251 Rutland Road is ideally situated near Prospect Park and all it has to offer, as well as the Brooklyn Botanic Garden and Brooklyn Museum. PLG has a wealth of transportation choices including multiple subway lines, bus routes, and Citi Bike stations. Finally, the neighborhood also offers a fantastic mix of local shops and dining options.
Welcome home to the best of Brooklyn!
Neighborhood
More listings:

RLS Data display by Nest Seekers LLC.
All information furnished regarding property for sale, rental or financing is from sources deemed reliable, but no warranty or representation is made as to the accuracy thereof and same is submitted subject to errors, omissions, change of price, rental or other conditions, prior sale, lease or financing or withdrawal without notice. International currency conversions where shown are estimates based on recent exchange rates and are not official asking prices.
All dimensions are approximate. For exact dimensions, you must hire your own architect or engineer.