Property
| Ownership: | For Sale |
|---|---|
| Type: | Duplex |
Financials
Price:$699,000
Annual Taxes:$3,902
Listing Courtesy of Keller Williams Capital Realty
WELCOME TO THE CUSHMAN ESTATES !
Description
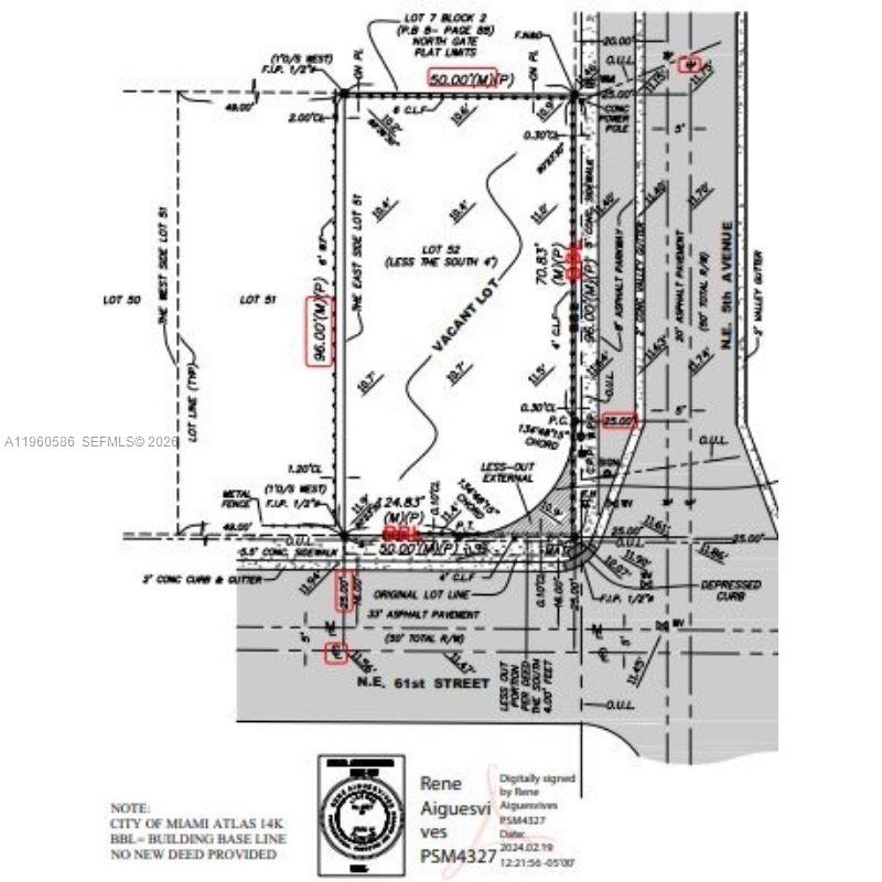
WELCOME TO THE CUSHMAN ESTATES! Sensational builder / developer opportunity to purchase LAND WITH PLANS! Seller has already done the heavy lifting with the architects, city & zoning and will include plans to build!! Shovel-ready 50’ x 100’ corner lot with approved plans for two fee-simple residences. Save months of permitting—build immediately. Each home features a separate corner entrance, 3 bedrooms, 3.5 baths, primary suite, balconies, and ±2,256 SF & ±2,319 SF. Located across from The Bennet, a new high-end development near The Cushman School with easy access to I-95. Ideal builder or investor opportunity. With new construction townhomes (The Bennet) selling at $615 per SFT across the street, this project has combined over 4,575 SFT x $615 = $2,813,625 sell out! What an amazing profit in 1 year! But wait, there's more!! Seller will entertain SELLER FINANCING, and also JOINT VENTURES with the seller providing the land and a developer building the product and we can pre-sale those 2 units. WIN-WIN scenario!! Plans will only be shared during the due-diligence period. Feel free to drive by the lot. Let's make it happen!
Virtual Tour: https://www.propertypanorama.com/instaview/mia/A11960586
Amenities
- Balcony
- CableAvailable
- Fence
- LessThanQuarterAcre

All information furnished regarding property for sale, rental or financing is from sources deemed reliable, but no warranty or representation is made as to the accuracy thereof and same is submitted subject to errors, omissions, change of price, rental or other conditions, prior sale, lease or financing or withdrawal without notice. International currency conversions where shown are estimates based on recent exchange rates and are not official asking prices.
All dimensions are approximate. For exact dimensions, you must hire your own architect or engineer.