Property
| Ownership: | Co-op |
|---|---|
| Rooms: | 5 |
| Bedrooms: | 2 BR |
| Bathrooms: | 2 |
| Pets: | No Pets Allowed |
Financials
Listing Courtesy of Compass
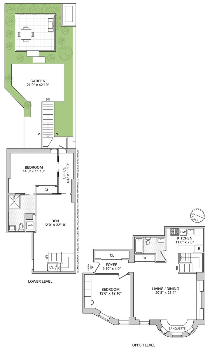
Located on one of Fort Greene s most coveted tree lined blocks, Residence 1A at 26 South Oxford is a serene garden duplex in a grand Victorian era limestone mansion.
Description
Located on one of Fort Greene’s most coveted tree-lined blocks, Residence #1A at 26 South Oxford is a serene garden duplex in a grand Victorian-era limestone mansion. Spanning over 1,350 sq ft, this pin-drop quiet home offers 2 bedrooms, 2 bathrooms, a home office, a den, and an enchanting 815+ sq ft private garden.
Enter easily under the stoop via a keypad entry. The expansive living and dining area is flooded with eastern light through four large windows. Custom built-ins and a dining nook with built in banquette add both style and function, while a wall of closets provides ample storage. A fully renovated open kitchen features top-tier stainless steel appliances, vent hood, black marble countertops, a chef’s counter, and abundant pantry space. The main level also includes an oversized primary bedroom with built-in wardrobe and desk, and a full bath with a tub, subway tile, Brooklyn-inspired wallpaper, and a new vanity.
Downstairs, the spacious lower level includes a second living room/den, large second bedroom, and a spa-like bathroom with a standing shower. Step through the home office into your lush private garden—ideal for relaxing, entertaining, or working from home.
Additional features include in-unit washer/dryer, hardwood floors, radiator heat, split A/C with remotes, and incredible storage.
This low fee, boutique 9-unit, pet-friendly co-op offers basement storage, common laundry, and bike/stroller space. Just one block from Fort Greene Park and close to the C and G trains, Atlantic Terminal, BAM, Barclays Center, and top dining and shopping on nearby Fulton, Lafayette, and Dekalb Avenues.
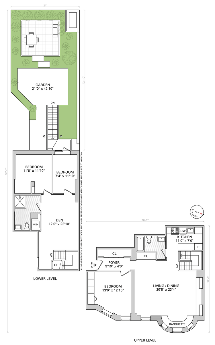
For more information or a private showing, please reach out anytime. See alternative 2BR floorplan.
Amenities
Bike Room; Laundry Room; Common Storage;
- Laundry Room
- Voice Intercom
Neighborhood
More listings:

RLS Data display by Nest Seekers LLC.
All information furnished regarding property for sale, rental or financing is from sources deemed reliable, but no warranty or representation is made as to the accuracy thereof and same is submitted subject to errors, omissions, change of price, rental or other conditions, prior sale, lease or financing or withdrawal without notice. International currency conversions where shown are estimates based on recent exchange rates and are not official asking prices.
All dimensions are approximate. For exact dimensions, you must hire your own architect or engineer.