Property
| Ownership: | Multi-Family |
|---|---|
| Rooms: | 14 |
| Bedrooms: | Studio |
Financials
Price:$2,895,000
Real estate tax:$5,676
Listing Courtesy of Compass
Introducing 1102 Prospect Place, a charming two family townhouse set on a quiet, tree lined block in the heart of Crown Heights.
Description
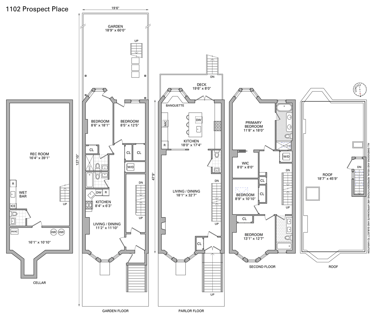
Introducing 1102 Prospect Place, a charming two-family townhouse set on a quiet, tree-lined block in the heart of Crown Heights. Behind its classic façade, the home unfolds across multiple levels, blending original architectural character with comfortable modern living. In total, the property offers a spacious owner’s duplex with a finished basement, along with a separate garden floor residence—ideal for income, guests, or extended living.
The owner’s duplex begins on an inviting parlor level, where high ceilings, tall windows, original details, and exposed brick create a sense of light and openness. A gracious living and dining area flows seamlessly into a thoughtfully designed kitchen with arched walls, featuring ample cabinetry, generous counter space, an eat-in banquette, and premium appliances, including a Wolf range and integrated Fisher & Paykel refrigerator and dishwasher—ideal for both everyday living and large gatherings. Large windows and double glass doors provide direct access to the terrace, effortlessly connecting indoor and outdoor living and making entertaining a breeze.
Upstairs, the primary bedroom is well-proportioned and serene, complemented by a large custom-outfitted closet and an ensuite bathroom complete with a soaking tub. Two additional large bedrooms and a full bathroom offer flexibility for children, guests, a nursery, or a home office.
The garden floor adds valuable versatility, offering two bedrooms and two full bathrooms, along with its own entrance, kitchen, living area, and outdoor space—perfect for rental income or multi-generational living.
A fully finished basement with a half bath and a kitchenette makes this space ideal for a rec room and in-home gym.
Set on picturesque Prospect Place, this home is surrounded by beloved neighborhood favorites, cultural institutions like the Brooklyn Children’s Museum, and green spaces like Brower Park. Convenient access to the nearby C and 3 subway lines connects you easily to the rest of Brooklyn and Manhattan. 1102 Prospect Place offers a rare combination of classic townhouse living, flexibility, and an unbeatable Crown Heights location.
Amenities
Garden;
- Air Conditioning
- Basement
- Garden
Neighborhood
More listings:

RLS Data display by Nest Seekers LLC.
All information furnished regarding property for sale, rental or financing is from sources deemed reliable, but no warranty or representation is made as to the accuracy thereof and same is submitted subject to errors, omissions, change of price, rental or other conditions, prior sale, lease or financing or withdrawal without notice. International currency conversions where shown are estimates based on recent exchange rates and are not official asking prices.
All dimensions are approximate. For exact dimensions, you must hire your own architect or engineer.