Property
| Ownership: | Multi-Family |
|---|---|
| Rooms: | 14 |
| Bedrooms: | Studio |
Financials
Price:$3,795,000
Real estate tax:$1,992
Listing Courtesy of Compass
At 167 Quincy Street, classic Brooklyn brownstone architecture meets a thoughtful modern renovation designed for contemporary living.
Description
At 167 Quincy Street, classic Brooklyn brownstone architecture meets a thoughtful modern renovation designed for contemporary living. Set in an exceptional Bedford-Stuyvesant location, this beautifully designed two-family townhouse offers generous proportions, modern finishes, and flexible living.
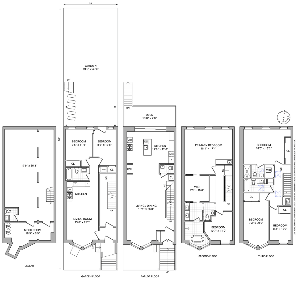
Ascending the classic brownstone stoop, the parlor level unfolds with the scale and grandeur that define the finest townhouses. Soaring ceilings, oversized windows, and striking herringbone oak floors create a luminous living and dining space where beautifully crafted architectural details blend seamlessly with sophisticated finishes.
At the heart of the parlor floor, a beautifully designed chef’s kitchen anchors the space with custom oak cabinetry, premium integrated Thermador appliances, Taj Mahal countertops, and a generous island ideal for entertaining or everyday living. The layout flows seamlessly between the living, dining, and kitchen areas, creating an effortless setting for gatherings both large and small. Bathed in natural light, the kitchen opens through expansive glass doors onto a private deck overlooking the garden—an inviting extension of the living space for morning coffee or evening gatherings.
The upper floors offer serene private quarters designed to maximize light, comfort, and flexibility. The primary suite serves as a tranquil retreat featuring a beautifully integrated wet bar, a spacious walk through closet, and a spa-inspired bath with elegant finishes, a glass-enclosed shower, and a deep soaking tub. Four additional bedrooms and two bathrooms are generously scaled and easily adaptable for family, guests, or a dedicated home office.
The garden level provides exceptional versatility with a fully independent two-bedroom, one-bath apartment featuring its own living space, modern kitchen, and direct access to the private backyard. Ideal as an income-producing rental, guest residence, or extended living space, the layout offers tremendous flexibility.
Throughout the home, modern infrastructure quietly enhances daily life, including central air conditioning, a built-in speaker system, high-performance windows, thoughtfully integrated storage, and timeless details that add warmth and texture.
Located in the heart of Bedford-Stuyvesant, 167 Quincy Street is surrounded by beloved neighborhood cafés, restaurants, and independent shops such as Lucy’s, Swan, Do or Dive and many more. The area offers a vibrant yet relaxed atmosphere, with nearby parks and convenient access to the A/C/G subway lines and the B26 bus for easy travel throughout Brooklyn and into Manhattan. JFK Airport is also just a short drive away.
Amenities
Garden;
- Air Conditioning
- Basement
- Garden
Neighborhood
More listings:

RLS Data display by Nest Seekers LLC.
All information furnished regarding property for sale, rental or financing is from sources deemed reliable, but no warranty or representation is made as to the accuracy thereof and same is submitted subject to errors, omissions, change of price, rental or other conditions, prior sale, lease or financing or withdrawal without notice. International currency conversions where shown are estimates based on recent exchange rates and are not official asking prices.
All dimensions are approximate. For exact dimensions, you must hire your own architect or engineer.