Property
| Ownership: | For Sale |
|---|---|
| Type: | Condo |
Financials
Price:$1,275,000
Common charges:$1,608
Listing Courtesy of Miami Commercial Real Estate, LLC.
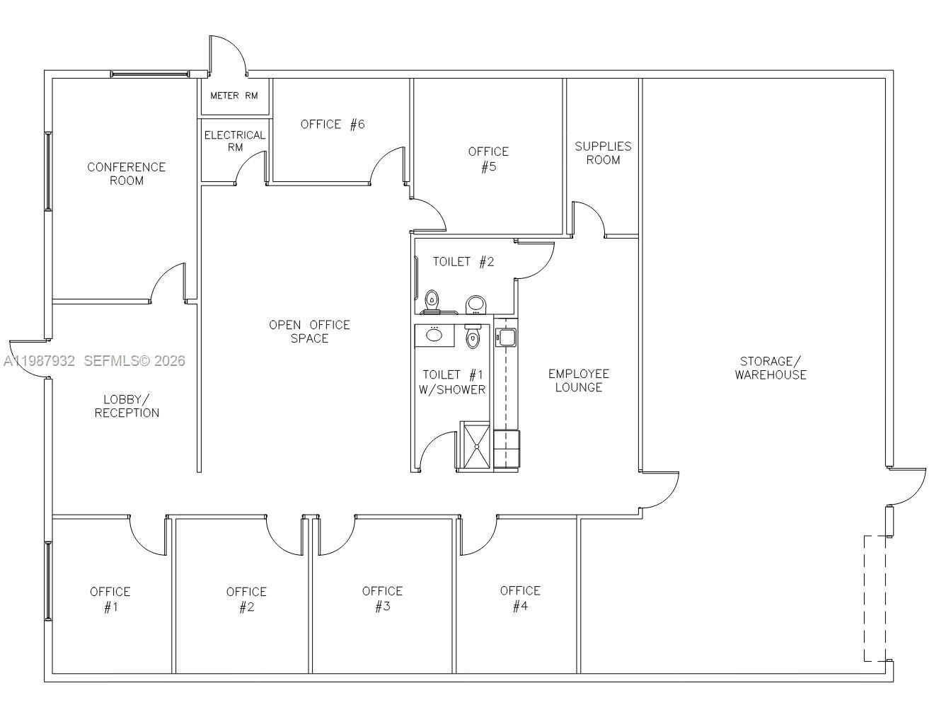
Exceptional end cap unit featuring a welcoming reception area connected to conference room, 6 private offices, large open office floor plan, an employee lounge, supplies room, and warehouse area with ...
Description
Exceptional end-cap unit featuring a welcoming reception area connected to conference room, 6 private offices, large open office floor plan, an employee lounge, supplies room, and warehouse area with 1 powered roll-up door. 2 restrooms, one of which includes a private shower, a practical amenity for active operational environments.
* Office/Warehouse Ratio ±68% / 32%
* 7 assigned parking spaces plus an additional space available at the rear roll-up door. The unit also benefits from direct frontage onto the shared guest parking lot serving the center.
* Newly installed 240/120V, 200-Amp, 3-Phase electric service, providing robust capacity for a wide range of business operations.
* 2 independent A/C systems provide full coverage and built-in redundancy.
* Impact-rated windows and storefront entry door.
* Insulated, hurricane-rated powered roll-up loading door for warehouse access.
* 10 year structural recertification completed in 2022.
BROCHURE AND FLOORPLAN ATTACHED
Virtual Tour: https://www.propertypanorama.com/instaview/mia/A11987932

All information furnished regarding property for sale, rental or financing is from sources deemed reliable, but no warranty or representation is made as to the accuracy thereof and same is submitted subject to errors, omissions, change of price, rental or other conditions, prior sale, lease or financing or withdrawal without notice. International currency conversions where shown are estimates based on recent exchange rates and are not official asking prices.
All dimensions are approximate. For exact dimensions, you must hire your own architect or engineer.