Property
| Ownership: | For Sale |
|---|---|
| Type: | Condo |
| Bedrooms: | 2 BR |
| Bathrooms: | 2 |
| Pets: | Pets Allowed |
Financials
Price:$699,000
Annual Taxes:$9,797
Common charges:$3,495
Listing Courtesy of Pulse Int'l Realty FL Inc
This residence is being offered individually, with the unique opportunity to also purchase the adjacent Unit 414, connected via a lockout door.
Description
This residence is being offered individually, with the unique opportunity to also purchase the adjacent Unit #414, connected via a lockout door.
For buyers seeking more space, both units can be acquired together and combined to create a 3-bedroom, 3-bathroom residence—making it the only 3-bedroom in the building (see renderings for potential combination).
Enjoy stunning bay and city views, with shops and restaurants just steps away and the beach only minutes away. Amenities include 24-hour concierge, room service, bayfront pool, spa, and fitness center. The property also features a recent $20M renovation of the lobby and pool, plus the new Baia Beach Club.
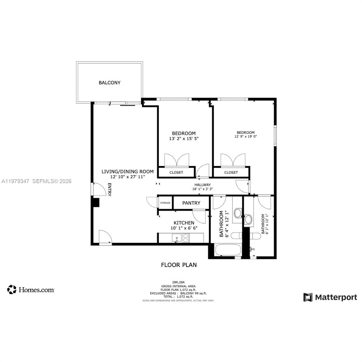
Please note: Units are listed and priced separately. See attached floor plan for combination possibilities. A truly unique opportunity.
2–3 days’ notice required for showings as unit is currently in the hotel program.
Virtual Tour: https://www.propertypanorama.com/instaview/mia/A11979347
Amenities
- Balcony
- Bay
- Bayfront
- BedroomOnMainLevel
- ClosetCabinetry
- Dishwasher
- Doorman
- FitnessCenter
- Microwave
- Pool
- Refrigerator

All information furnished regarding property for sale, rental or financing is from sources deemed reliable, but no warranty or representation is made as to the accuracy thereof and same is submitted subject to errors, omissions, change of price, rental or other conditions, prior sale, lease or financing or withdrawal without notice. International currency conversions where shown are estimates based on recent exchange rates and are not official asking prices.
All dimensions are approximate. For exact dimensions, you must hire your own architect or engineer.