62 West 87th Street Apt: 3R
New York, NY 10024
| Cross street: | Central Park West |
|---|
Property
| Ownership: | Co-op |
|---|---|
| Rooms: | 2 |
| Bedrooms: | Studio |
| Bathrooms: | 1 |
| Pets: | No Pets Allowed |
Financials
Listing Courtesy of Corcoran Group
The Quintessential Upper West Side Brownstone Studio Located half a block from Central Park, this south facing brownstone studio offers a rare blend of historic character and expansive private outdoor ...
Description
The Quintessential Upper West Side Brownstone Studio
Located half a block from Central Park, this south-facing brownstone studio offers a rare blend of historic character and expansive private outdoor space.
Interior Features
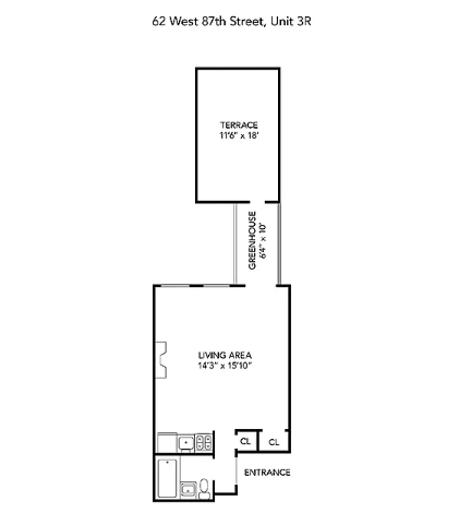
The crown jewel of this residence is the 300-square-foot private terrace. Surrounded by mature trees and neighboring brownstone gardens, this oversized deck provides ample room for outdoor dining, lounging, and gardening.
Neighborhood & Transit
Situated on a premier park block, the building is moments from the B, C, and 1 subway lines, as well as the destination dining and retail along Columbus and Amsterdam Avenues.
Located half a block from Central Park, this south-facing brownstone studio offers a rare blend of historic character and expansive private outdoor space.
Interior Features
- Architectural Detail: The living area features high ceilings, original parquet hardwood floors, and a functional wood-burning fireplace set against a heritage green accent wall.
- The Solarium: A distinctive glasshouse atrium serves as a dedicated home office or sunroom, providing a seamless transition between indoor and outdoor living.
- Kitchen: The open-concept kitchen is equipped with full-sized appliances, including a dishwasher, extensive cabinetry, and a deep breakfast bar for additional prep space.
- Bath: A refreshed full bathroom maintains the clean aesthetic of the home.
The crown jewel of this residence is the 300-square-foot private terrace. Surrounded by mature trees and neighboring brownstone gardens, this oversized deck provides ample room for outdoor dining, lounging, and gardening.
Neighborhood & Transit
Situated on a premier park block, the building is moments from the B, C, and 1 subway lines, as well as the destination dining and retail along Columbus and Amsterdam Avenues.
Amenities
Common Storage;
- Basement
- Voice Intercom
- Walk-up
Neighborhood
More listings:

RLS Data display by Nest Seekers LLC.
All information furnished regarding property for sale, rental or financing is from sources deemed reliable, but no warranty or representation is made as to the accuracy thereof and same is submitted subject to errors, omissions, change of price, rental or other conditions, prior sale, lease or financing or withdrawal without notice. International currency conversions where shown are estimates based on recent exchange rates and are not official asking prices.
All dimensions are approximate. For exact dimensions, you must hire your own architect or engineer.