Property
| Ownership: | Multi-Family |
|---|---|
| Rooms: | 10 |
| Bedrooms: | Studio |
Financials
Price:$2,300,000
Real estate tax:$6,672
Listing Courtesy of Compass
Renovated and reimagined, 1635 Hancock St sets a new standard for townhouse living in Ridgewood, Queens.
Description
Renovated and reimagined, 1635 Hancock St sets a new standard for townhouse living in Ridgewood, Queens. Thoughtfully redesigned by the current owners—not a developer flip—this home blends elegant design, modern functionality, and exceptional outdoor space. It is truly unlike anything else on the market in Ridgewood today.
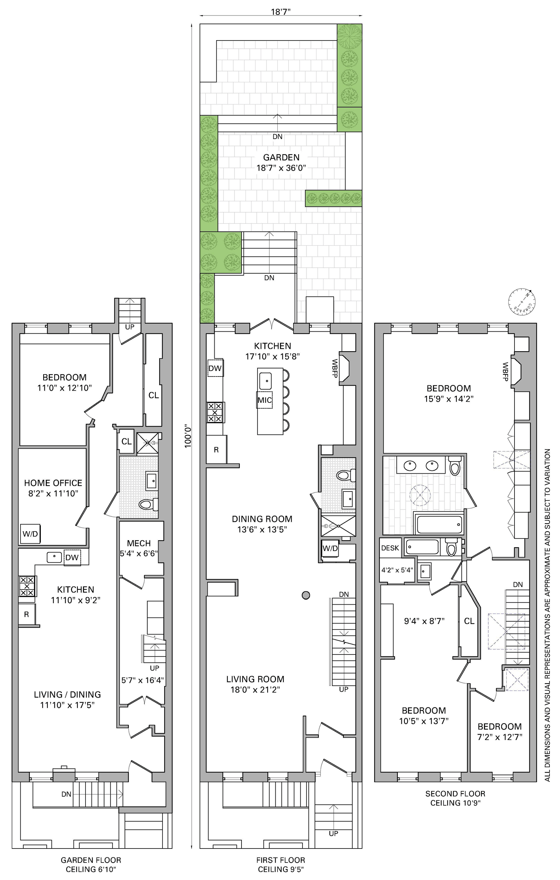
Measuring 18.75 ft × 60 ft on a 100 ft lot, this two-family residence offers 3,225 sq ft of finished living space, including a spectacular owner’s 3-bed/3-bath upper duplex and a garden-level 1-bed + home office/1-bath apartment for income or guests.
Owner’s Duplex
Flooded with southern light, the parlor level delivers an airy, seamless flow from living to dining to kitchen to the outdoors—while each space retains its own identity. Oak herringbone floors, mid-century Sputnik lighting, picture-frame moldings, custom built-ins, and an architectural wood-and-glass staircase with ambient lighting define the home’s elevated aesthetic.
The open kitchen is designed for cooking and entertaining, with a center island, bar seating, ceiling-height cabinetry, quartz counters with dramatic veining, and a full KitchenAid Gallery appliance package. A fireplace and integrated workstation create a warm, functional extension of the space. This level also includes a full bath with walk-in shower and a laundry area.
The Garden
Through double French doors, step into a private outdoor sanctuary offering three distinct levels: a large steel deck, a lower garden, and a raised rear lounge. Multiple seating zones, mature trees, privacy plantings, and low-maintenance hardscaping create a serene, magical setting perfect for year-round enjoyment.
Bedrooms & Bathrooms
The upper level hosts three bedrooms and two ensuite baths.
The primary suite spans the full width of the home and overlooks the garden. Soaring nearly 11-foot ceilings with exposed beams, custom built-ins, and a full wall of closets create a sense of scale and luxury. The Carrara marble ensuite features a double vanity, soaking tub, and a striking circular skylight intersected by a wood beam—an architectural moment unique to this home.
The king-size second bedroom connects to an interior bonus room with a Murphy bed and oversized closets; its ensuite bath, finished in penny tile, also opens to the hallway.
The third bedroom charms with exposed brick, exposed beams, and a skylight that fills the room with natural light.
Garden-Level 1-Bed + Home Office
Perfect as a high-income rental or guest suite, the garden apartment has both front and rear exterior access as well as an interior connection to the parlor. Features include porcelain wood-look flooring, a full kitchen and bath, and in-unit washer/dryer—maximizing flexibility and value.
Additional Features & Recent Updates
New casement windows and entry doors
New HVAC providing central heating/cooling
Three additional mini-split AC units on the top floor
Located a few short blocks to Myrtle/Wyckoff L/M subways. It’s a quick 20 minute commute to Manhattan. Local favorites include TV Eye, Trans Pecos, Evil Twin Brewery, Pierogi Boys, Cholita Coffee, Il Gigante, Hellbender, Pizza Panina, Cassette, Rolo’s and more!
1635 Hancock St is a rare opportunity to own one of Ridgewood’s most distinctive and beautifully executed row homes.
Showing by appointment.
Amenities
Alarm System; Garden;
- Air Conditioning
- Garden
- Gas
Neighborhood
More listings:

RLS Data display by Nest Seekers LLC.
All information furnished regarding property for sale, rental or financing is from sources deemed reliable, but no warranty or representation is made as to the accuracy thereof and same is submitted subject to errors, omissions, change of price, rental or other conditions, prior sale, lease or financing or withdrawal without notice. International currency conversions where shown are estimates based on recent exchange rates and are not official asking prices.
All dimensions are approximate. For exact dimensions, you must hire your own architect or engineer.