Property
| Ownership: | Mixed Use |
|---|---|
| Rooms: | 16 |
| Bedrooms: | Studio |
Financials
Price:$3,900,000
Real estate tax:$56,964
Listing Courtesy of Compass
Bahaus Moderne Masterpiece.
Description
Bahaus-Moderne Masterpiece...
Only the second time on the market since it was built, be the proud new owner of the historic Morris Sanders House featured in the March 1936 edition of "Architecture Forum" when newly built. This home is one of the few surviving structures that bridge the Bauhaus and Moderne movements.
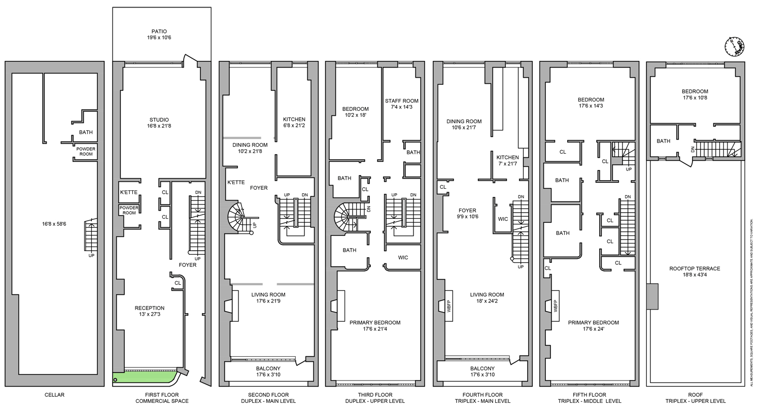
All original details are intact and await to be lovingly restored in this nearly 6,900/sf, 6-story home with a garden, roof terrace, and full basement (not included in the square footage). Abutting the property is the historic public garden Amster Yard (said to have been the terminal stop of the Boston Stage Coach on the Eastern Post Road in the 18th Century).
Ideal for an end-user (who may want rental income), consulate, foundation, or a family office.
Restore to the original setup below or reconfigure as needed.
First Floor: Office with design room and private garden.
Second and Third Floor: Duplex apartment consisting of living room, dining room, kitchen, 3 bedrooms, 2 baths, 2 fireplaces, and ample closet space.
Fourth, Fifth, and Sixth Floors Triplex apartment consisting of living room, dining room, kitchen, 3 bedrooms, 3 baths, 2 fireplaces, ample closet space, and private roof terrace.
Located on the historic Audrey Hepburn block, the homes were originally owned by artists, fashion designers, and actors. Currently, the consulates of Peru and Ukraine are on the block as well as the expansive Instituto Cervantes.
Close to destination landmarks (including the United Nations and newly restored Waldorf Astoria) and all major transportation (including Grand Central Terminal).
Amenities
Garden; Roof Deck;
- Garden
- Roof Deck
- Walk-up
Neighborhood
More listings:

RLS Data display by Nest Seekers LLC.
All information furnished regarding property for sale, rental or financing is from sources deemed reliable, but no warranty or representation is made as to the accuracy thereof and same is submitted subject to errors, omissions, change of price, rental or other conditions, prior sale, lease or financing or withdrawal without notice. International currency conversions where shown are estimates based on recent exchange rates and are not official asking prices.
All dimensions are approximate. For exact dimensions, you must hire your own architect or engineer.