Property
| Ownership: | Single Family |
|---|---|
| Rooms: | 9 |
| Bedrooms: | Studio |
Financials
Price:$2,100,000
Real estate tax:$5,328
Listing Courtesy of Compass
This exceptional townhouse located at 621 Putnam Ave is a true gem.
Description
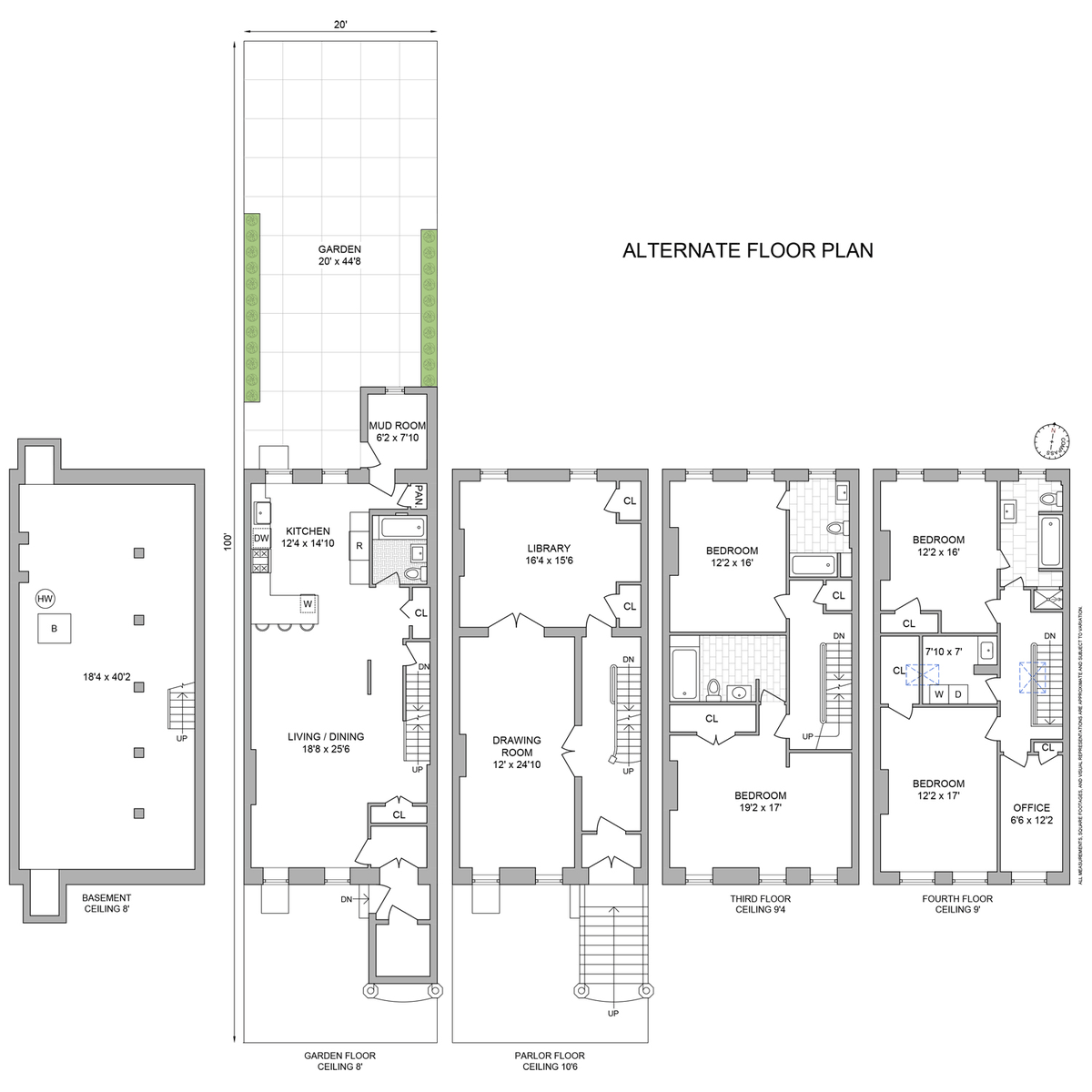
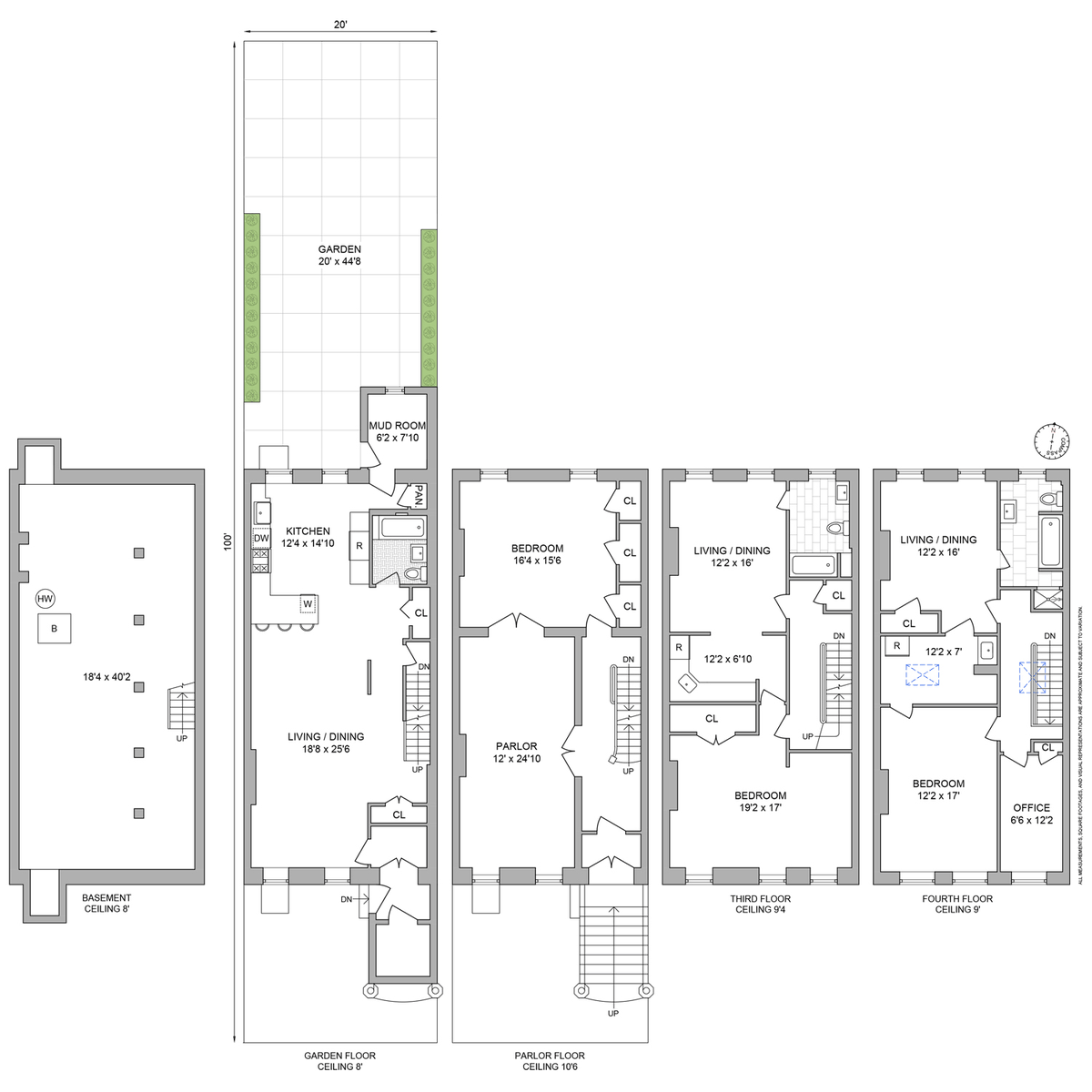
This exceptional townhouse located at 621 Putnam Ave is a true gem. The house is situated on a beautiful tree-lined townhouse block, across from the historic, and soon-to-be revamped, Marcus Garvey Armory. This stunning brownstone spans 3,600 square feet with many of its original details intact. The 20’ wide house is a perfect opportunity to create your dream home. Currently, the house has four bedrooms and three full bathrooms but, as seen on the alternate floor plan, the possibilities to customize the space are endless.
The garden level has been renovated featuring a spacious living/dining with an open kitchen that has direct access to the enormous backyard. It also has a renovated full bathroom on this floor. The parlor level has high ceilings, a fireplace, original parquet floors, and beautiful woodwork surrounding the windows and doorways. Handsome french doors with a transom elegantly divide the space into front and back rooms.
The top two floors have high ceilings, picture rail moldings, and a mix of herringbone and mosaic parquet floors. Oversized windows create bright, cheery rooms with decorative fireplaces, arched doorways, and picture rail moldings. The bathrooms on each floor have been remodeled.
Ideal location adjacent to Stuyvesant Heights, and close to many amazing restaurants and bars. Frog, at one end of the block, has ambient outdoor seating and a great selection of wines. In the other direction, you can find the best coal oven pizza at Saraghina and delicious comfort food at Peaches. While you’re visiting, grab a coffee and browse the selection of books and records at Black Star Vinyl. You’ll be here in a flash if you catch the express A train.
Amenities
Garden;
- Garden
- Walk-up
Neighborhood
More listings:

RLS Data display by Nest Seekers LLC.
All information furnished regarding property for sale, rental or financing is from sources deemed reliable, but no warranty or representation is made as to the accuracy thereof and same is submitted subject to errors, omissions, change of price, rental or other conditions, prior sale, lease or financing or withdrawal without notice. International currency conversions where shown are estimates based on recent exchange rates and are not official asking prices.
All dimensions are approximate. For exact dimensions, you must hire your own architect or engineer.