5203-5207 Church Avenue
Brooklyn, NY 11203
| Cross street: | East 53rd Street |
|---|
Property
| Ownership: | Commercial |
|---|---|
| Bedrooms: | Studio |
Financials
Price:$4,500,000
Real estate tax:$89,292
Listing Courtesy of Compass
Set within one of Flatbush s established commercial areas, 5203 5207 Church Avenue, an approximately 15, 000 SF 10, 000 SF above grade commercial property situated along one of Flatbush ...
Description
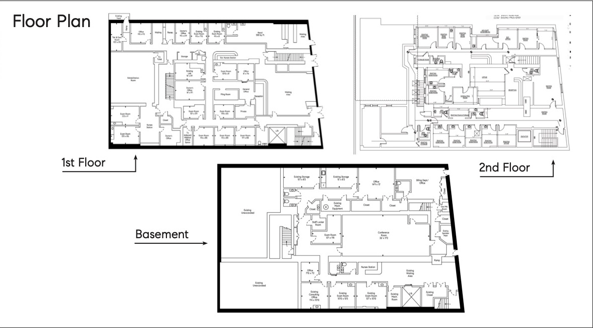
Set within one of Flatbush’s established commercial areas, 5203–5207 Church Avenue, an approximately 15,000 SF (~10,000 SF above grade) commercial property situated along one of Flatbush’s predominant retail corridors. The property can be delivered vacant, offering a compelling opportunity for an end-user or for repositioning or redevelopment by an investor.
The building is currently configured with retail and medical tenants and features 10’+ ceiling heights and elevator access throughout, allowing for a highly usable and customizable layout. Notably, a credit-worthy second-floor tenant is paying approximately $13,500 per month, enabling an owner-user to occupy the remaining space while offsetting carrying costs, or allowing an investor to retain that income while repositioning the balance of the building with market-rate tenants.
From a development perspective, the property is located within a Qualifying Residential Site (QRS), which allows for a mixed-use FAR of up to 2.5, translating to approximately 14,000 buildable square feet. This provides meaningful long-term optionality while maintaining current income in the interim.
Neighborhood
More listings:

RLS Data display by Nest Seekers LLC.
All information furnished regarding property for sale, rental or financing is from sources deemed reliable, but no warranty or representation is made as to the accuracy thereof and same is submitted subject to errors, omissions, change of price, rental or other conditions, prior sale, lease or financing or withdrawal without notice. International currency conversions where shown are estimates based on recent exchange rates and are not official asking prices.
All dimensions are approximate. For exact dimensions, you must hire your own architect or engineer.