Property
| Ownership: | Multi-Family |
|---|---|
| Rooms: | 12 |
| Bedrooms: | Studio |
Open Houses
Contact for details !
Financials
Price:$2,895,000
Real estate tax:$5,160
Listing Courtesy of Compass
Welcome to 485 Halsey Street, a meticulously renovated 1899 townhouse that seamlessly blends timeless architectural character with refined modern living.
Description
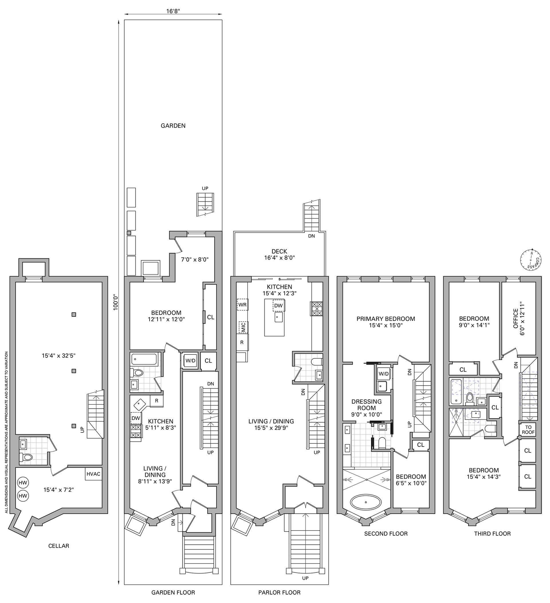
Welcome to 485 Halsey Street, a meticulously renovated 1899 townhouse that seamlessly blends timeless architectural character with refined modern living. This two-family brownstone boasts 5 bedrooms, 1 home office, 4 full bathrooms, 2 powder rooms, a spacious parlor deck, and a sprawling backyard garden. Every inch of this home exudes attention to detail, from the original doors to the exposed brick that preserves the home’s rich history while offering high-end finishes and cutting-edge technology.
From the moment you enter the owner’s residence, you are greeted by a sense of scale and warmth that defines classic Brooklyn townhouses. Original details nod to the home’s historic roots, while contemporary finishes and systems elevate everyday living. Wide-plank white oak floors, exposed brick, and custom millwork create a cohesive aesthetic that feels both elevated and inviting.
The heart of the home is the chef’s kitchen, designed for both entertaining and daily use. Outfitted with premium appliances—including an integrated Fisher & Paykel refrigerator and dishwasher, Wolf range, Sharp microwave, and Frigidaire wine cooler—the kitchen is as functional as it is striking. Clean-lined cabinetry and generous prep space make it ideal for hosting, while the seamless flow to the rear of the home enhances the indoor-outdoor experience.
Upstairs, the sleeping quarters are thoughtfully laid out to maximize privacy and comfort. Bedrooms are well-proportioned and filled with natural light, while spa-like bathrooms feature refined finishes and calming tones. A dedicated laundry setup with Electrolux washer and vented dryer adds everyday convenience without compromising aesthetics.
The garden level with its spacious bedroom, bathroom, and W/D provides flexibility—perfect for extended living, guest accommodations, or income potential—making this home as practical as it is beautiful.
Set on a picturesque, tree-lined block in Stuyvesant Heights, 485 Halsey is moments from beloved neighborhood destinations, including Saraghina, Peaches, Trad Room, and Laziza, along with multiple nearby parks offering green space and recreation. Transportation is effortless with the Utica Avenue A/C Station just moments away, and convenient access to JFK Airport.
485 Halsey Street is a rare opportunity to own a reimagined townhouse that honors its historic past while delivering the comfort, style, and functionality today’s buyers expect.
Amenities
Garden;
- Air Conditioning
- Basement
- Garden
Neighborhood
More listings:

RLS Data display by Nest Seekers LLC.
All information furnished regarding property for sale, rental or financing is from sources deemed reliable, but no warranty or representation is made as to the accuracy thereof and same is submitted subject to errors, omissions, change of price, rental or other conditions, prior sale, lease or financing or withdrawal without notice. International currency conversions where shown are estimates based on recent exchange rates and are not official asking prices.
All dimensions are approximate. For exact dimensions, you must hire your own architect or engineer.