Property
| Ownership: | Condo |
|---|---|
| Rooms: | 5 |
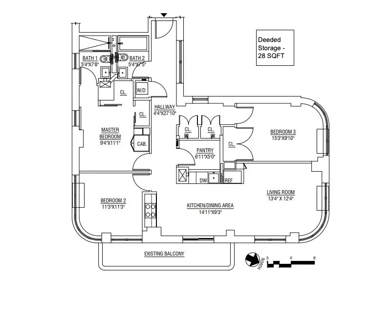
| Bedrooms: | 3 BR |
| Bathrooms: | 2 |
| Pets: | Pets Allowed |
Open Houses
Contact for details !
Financials
Price:$2,500,000
Common charges:$2,001
Real estate tax:$1,415
Financing Allowed:90%
Minimum down:$250,000
Listing Courtesy of Compass
Stunning, Ultra Private 3 Bedroom Condominium in the Heart of Tribeca Offering a rare combination of triple exposures, a large private balcony, and pin drop quiet, this fully reimagined 3 ...
Description
Stunning, Ultra-Private 3-Bedroom Condominium in the Heart of Tribeca
Offering a rare combination of triple exposures, a large private balcony, and pin-drop quiet, this fully reimagined 3-bedroom, 2-bathroom residence is a standout in Tribeca.
Accessed via an extended hallway unique to this unit, the apartment shares no adjacent walls with neighbors and is perfectly set back from the main street, guaranteeing ultimate privacy and zero street noise. Inside, the thoughtfully designed open layout is flooded with direct, unobstructed sunlight all day long through an abundance of windows across three rare facings.
Wide-plank Blizzard White Oak flooring runs throughout, complementing a sleek, modern kitchen that anchors both the interior living space and the outdoor terrace. Outfitted with Leicht cabinetry, the kitchen features a suite of WiFi-enabled appliances, including a Thermador French door refrigerator and Bosch appliances. Compact Unique Venatino Glace quartz has been seamlessly incorporated across the countertops, window sills, and bath surrounds. A standout feature of this smart home is the enormous pantry, offering substantial storage rarely found in condominium living.
The living area flows effortlessly onto private balcony, offering excellent outdoor exposure and serene views overlooking a beautiful terrace below.
All three bedrooms are well-proportioned and versatile in scale. The two full bathrooms showcase stunning new renovations finished with Bianco Gioia porcelain tile, including a primary en-suite with a spa-like shower and an integrated bidet. A Bosch washer and dryer is conveniently positioned within the home.
Greenwich Court Condominium is a premier full-service building. Residents enjoy a newly completed, beautifully renovated lobby and bike storage. A private storage unit is also included with the sale.
Please note the monthly taxes represent the STAR Abatement - the unabated amount is $20,575.12 per year. There is an additional assessment in place through September 2026 in the amount of $716.78 per month for the funding the roof replacement and exterior restoration project which is commencing soon.
Amenities
Bike Room; Garden; Laundry Room; Roof Deck; Private Storage For Fee;
- Washer / Dryer
- Washer Dryer Hookups
- Elevator
- Full time doorman
- Garden
- Laundry Room
- Roof Deck

RLS Data display by Nest Seekers LLC.
All information furnished regarding property for sale, rental or financing is from sources deemed reliable, but no warranty or representation is made as to the accuracy thereof and same is submitted subject to errors, omissions, change of price, rental or other conditions, prior sale, lease or financing or withdrawal without notice. International currency conversions where shown are estimates based on recent exchange rates and are not official asking prices.
All dimensions are approximate. For exact dimensions, you must hire your own architect or engineer.