Property
| Ownership: | For Sale |
|---|---|
| Type: | Unknown |
| Bedrooms: | 3 BR |
| Bathrooms: | 3½ |
| Pets: | Pets Allowed |
Financials
Price:$588,933
Annual Taxes:$7,244
Common charges:$386
Listing Courtesy of Taylor Morrison Realty of FL
What's Special New Floor Plan Cul de Sac Lot Dedicated Study Covered Extended Lanai Larger Lot.
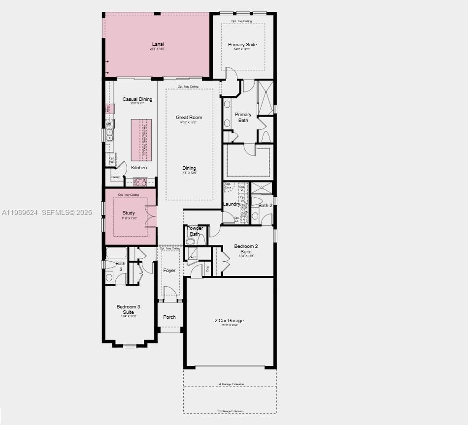
- Lazio II Rendering
- Additional Highlights Include: Gourmet kitchen, study in place of flex, extended covered lanai, 8' interior doors, tray ceiling package, 4' garage ext
- 14218 Dunlin Avenue design selections. Home is under construction and selections are subject to change.
- Representative Photo
- Representative Photo
- Representative Photo
- Representative Photo
- Representative Photo
- Representative Photo
- Representative Photo
- Representative Photo
- Representative Photo
- Representative Photo
- Representative Photo
- Representative Photo
- Representative Photo
- Esplanade at Starling Sitemap
- Esplanade at Starling Proposed Amenity
- Esplanade at Starling Proposed Amenity
- Esplanade at Starling Proposed Amenity
- Esplanade at Starling Proposed Amenity
- Esplanade at Starling Proposed Amenity
- Esplanade at Starling Proposed Amenity
- Esplanade at Starling Proposed Amenity
- Esplanade at Starling Proposed Amenity
Description
What's Special: New Floor Plan | Cul-de-Sac Lot | Dedicated Study | Covered Extended Lanai | Larger Lot. New Construction - August Completion! Built by America's Most Trusted Home Builder. Welcome to the Lazio II at 14218 Dunlin Avenue in Esplanade at Starling! This new home offers an open floor plan with a welcoming porch entry that flows into the dining area, great room, and gourmet kitchen, all opening to the covered lanai. The private primary suite features a spa-inspired bathroom and walk-in closet, while two secondary bedroom suites with private baths, a study, powder room, laundry room, and two-car garage are located near the front of the home. Additional Highlights Include: Gourmet kitchen, study in place of flex, extended covered lanai, 8' interior doors, tray ceiling package, 4' garage extension, and pool and spa prewire. Photos are for representative purposes only. MLS#A11989624
Experience a new level of resort-style living at the gated community of Esplanade at Starling in Punta Gorda! Every day feels like a getaway with incredible amenities, including a resort-style pool, poolside cabanas, and a Bahama bar. Take advantage of concierge services and wellness programs designed to invigorate the mind, body, and spirit. Stay active with a friendly game of tennis, pickleball, or bocce, or unwind at the fitness center, spa, and even the bark park with your furry friend. Esplanade at Starling is where relaxation meets adventure—come discover it today!
Virtual Tour: https://www.propertypanorama.com/instaview/mia/A11989624
Amenities
- BarLounge
- BedroomOnMainLevel
- BuiltInOven
- Clubhouse
- Community
- CulDeSac
- Dishwasher
- Disposal
- DualSinks
- EatInKitchen
- EntranceFoyer
- Fitness
- FrenchDoors
- FrenchDoorsAtriumDoors
- GameRoom
- GasRange
- Gated
- GatedCommunity
- HomeOwnersAssociation
- ImpactGlass
- InteriorLot
- KitchenDiningCombo
- LivingDiningRoom
- MaintainedCommunity
- Microwave
- Other
- Pantry
- Patio
- Pickleball
- Pool
- PropertyManagerOnSite
- RectangularLot
- Refrigerator
- RoomForPool
- SecurityGate
- SecurityHighImpactDoors
- Sidewalks
- SmokeDetectors
- SomeGasAppliances
- SplitBedrooms
- SprinklersAutomatic
- StreetLights
- TennisCourts
- UndergroundUtilities
- WalkInClosets

All information furnished regarding property for sale, rental or financing is from sources deemed reliable, but no warranty or representation is made as to the accuracy thereof and same is submitted subject to errors, omissions, change of price, rental or other conditions, prior sale, lease or financing or withdrawal without notice. International currency conversions where shown are estimates based on recent exchange rates and are not official asking prices.
All dimensions are approximate. For exact dimensions, you must hire your own architect or engineer.