Property
| Ownership: | Multi-Family |
|---|---|
| Bedrooms: | Studio |
Financials
Price:$7,500,000
Real estate tax:$90,000
Listing Courtesy of Brick Real Estate
Rare Brooklyn Heights 16 Unit Co Op Loft Style Duplex with Outdoor Space 63 65 Atlantic AvenueFirst time offered in decades, this 16 unit cooperative building held under long time ...
Description
Rare Brooklyn Heights 16-Unit Co-Op | Loft-Style + Duplex with Outdoor Space 63–65 Atlantic Avenue
First time offered in decades, this 16-unit cooperative building—held under long-time family ownership—presents a rare opportunity to acquire a generational asset in Brooklyn Heights, one of New York City’s most prestigious and supply-constrained neighborhoods.
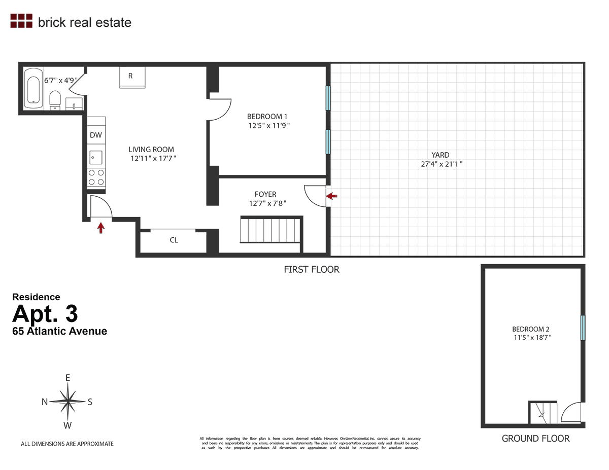
The property features a highly attractive unit mix, including 14 loft-style studio residences with open layouts and high ceilings, along with two duplex units offering private backyard access—a rare
and highly sought-after amenity.
Situated along Atlantic Avenue at the crossroads of Brooklyn Heights, Cobble Hill, and Boerum Hill, the asset benefits from exceptional demand, strong resale potential, and long-term appreciation.
Property Highlights:
-16-unit cooperative building
-14 loft-style studio units with open layouts
-2 duplex residences with private backyard access
-Located in prime Brooklyn Heights
-Generational, long-time family ownership
-High ceilings and flexible configurations
-Well-maintained with strong underlying structure
Value-Add Opportunity:
A clear path to unlocking value through renovation and repositioning:
-Transform loft studios into modern, design-driven residences
-Reconfigure layouts with sleeping alcoves or home offices
-Maximize duplex units as premium indoor/outdoor offerings
-Upgrade kitchens, bathrooms, and common areas
-Rebrand as a boutique loft-style co-op in Brooklyn Heights
Investment Thesis:
-Significant upside through renovation
-Premium pricing for loft-style units and outdoor space
-Strong end-user demand in Brooklyn Heights
-Ideal for sponsor-led sellout or phased resale strategy
-Long-term appreciation in a blue-chip Brooklyn location
Location Highlights:
-Prestigious Brooklyn Heights address
-Immediate access to Manhattan via multiple subway lines
-Near the Brooklyn Heights Promenade and waterfront
-Surrounded by top-tier dining, retail, and neighborhood amenities
This is a rare Brooklyn Heights co-op opportunity combining loft character, outdoor space, and scale—with compelling upside in one of NYC’s most desirable neighborhoods
First time offered in decades, this 16-unit cooperative building—held under long-time family ownership—presents a rare opportunity to acquire a generational asset in Brooklyn Heights, one of New York City’s most prestigious and supply-constrained neighborhoods.
The property features a highly attractive unit mix, including 14 loft-style studio residences with open layouts and high ceilings, along with two duplex units offering private backyard access—a rare
and highly sought-after amenity.
Situated along Atlantic Avenue at the crossroads of Brooklyn Heights, Cobble Hill, and Boerum Hill, the asset benefits from exceptional demand, strong resale potential, and long-term appreciation.
Property Highlights:
-16-unit cooperative building
-14 loft-style studio units with open layouts
-2 duplex residences with private backyard access
-Located in prime Brooklyn Heights
-Generational, long-time family ownership
-High ceilings and flexible configurations
-Well-maintained with strong underlying structure
Value-Add Opportunity:
A clear path to unlocking value through renovation and repositioning:
-Transform loft studios into modern, design-driven residences
-Reconfigure layouts with sleeping alcoves or home offices
-Maximize duplex units as premium indoor/outdoor offerings
-Upgrade kitchens, bathrooms, and common areas
-Rebrand as a boutique loft-style co-op in Brooklyn Heights
Investment Thesis:
-Significant upside through renovation
-Premium pricing for loft-style units and outdoor space
-Strong end-user demand in Brooklyn Heights
-Ideal for sponsor-led sellout or phased resale strategy
-Long-term appreciation in a blue-chip Brooklyn location
Location Highlights:
-Prestigious Brooklyn Heights address
-Immediate access to Manhattan via multiple subway lines
-Near the Brooklyn Heights Promenade and waterfront
-Surrounded by top-tier dining, retail, and neighborhood amenities
This is a rare Brooklyn Heights co-op opportunity combining loft character, outdoor space, and scale—with compelling upside in one of NYC’s most desirable neighborhoods
Amenities
- Voice Intercom
- Walk-up
Neighborhood
More listings:

RLS Data display by Nest Seekers LLC.
All information furnished regarding property for sale, rental or financing is from sources deemed reliable, but no warranty or representation is made as to the accuracy thereof and same is submitted subject to errors, omissions, change of price, rental or other conditions, prior sale, lease or financing or withdrawal without notice. International currency conversions where shown are estimates based on recent exchange rates and are not official asking prices.
All dimensions are approximate. For exact dimensions, you must hire your own architect or engineer.