Property
| Ownership: | Co-op |
|---|---|
| Rooms: | 4 |
| Bedrooms: | 2 BR |
| Bathrooms: | 1 |
| Pets: | Pets Allowed |
Open Houses
Contact for details !
Financials
Listing Courtesy of Compass
BEST PRICED 2BR IN MIDTOWN WEST !
Description
BEST-PRICED 2BR IN MIDTOWN WEST!
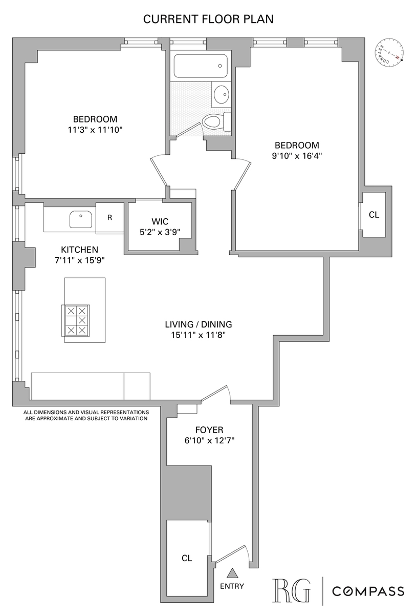
This light-filled, expansive home is a rare two-bedroom, the first to come to market in the historic Whitby in 4 years. The quiet, Southern-exposed apartment with its seamless layout retains original 1920's detail, including thick beamed ceilings, crown moldings and classic oak floors.
A long, dramatic entry hallway with a huge walk-in closet unexpectedly leads to a wide foyer, perfect for an efficient home office or library. This opens into the 20’ wide living space enhanced by oversized windows with Eastern exposures and and an alcove perfect for a variety of uses. The windowed kitchen has been renovated, expanded and opened into a chef’s delight and features stainless steel appliances and a large, dark granite-topped island. A tiled floor and endless custom wood and glass cabinetry complete the transformation. The spacious unit’s floorplan also reveals a hallway leading away from the living room and toward two large, split bedrooms. One has dual Southern and Eastern exposures and an immense walk-in closet, while the other is Southern exposed and bathed in light offering city views. The ample bathroom is also windowed and features porcelain wall and floor subway tile and a newly re-glazed vintage bathtub with rainforest showerhead.
The Whitby, famously profiled in the New York Times, was designed by the esteemed architect Emery Roth (The San Remo, The Beresford) and completed in 1923. This 217-unit, noble structure, renowned for its impressive three sturdy bays and rippling brick cornice, is located on West 45th Street between 8th and 9th Aves in the heart of NYC''s fabled theatre district.
The Whitby is a full-service co-op and features one of the most spectacular roof decks in Midtown West with 360 degree, open city views. Amenities include a 24/7 doorman, new laundry room, storage, bike room, FIOS and a grand, newly renovated, Art Deco-inspired lobby. It is convenient to all major transportation and an abundance of restaurants, cafes and entertainment.
The Whitby is pied-a-terre, co-purchasing and pet-friendly.
Amenities
Bike Room; Courtyard; Laundry Room; Roof Deck; Private Storage For Fee;
- Courtyard
- Elevator
- Full service
- Laundry Room
- Roof Deck
Neighborhood
More listings:

RLS Data display by Nest Seekers LLC.
All information furnished regarding property for sale, rental or financing is from sources deemed reliable, but no warranty or representation is made as to the accuracy thereof and same is submitted subject to errors, omissions, change of price, rental or other conditions, prior sale, lease or financing or withdrawal without notice. International currency conversions where shown are estimates based on recent exchange rates and are not official asking prices.
All dimensions are approximate. For exact dimensions, you must hire your own architect or engineer.