Property
| Ownership: | Apartment |
|---|---|
| Type: | Apartment |
| Rooms: | 4 |
| Bedrooms: | 3 BR |
| Bathrooms: | 1 |
Financials
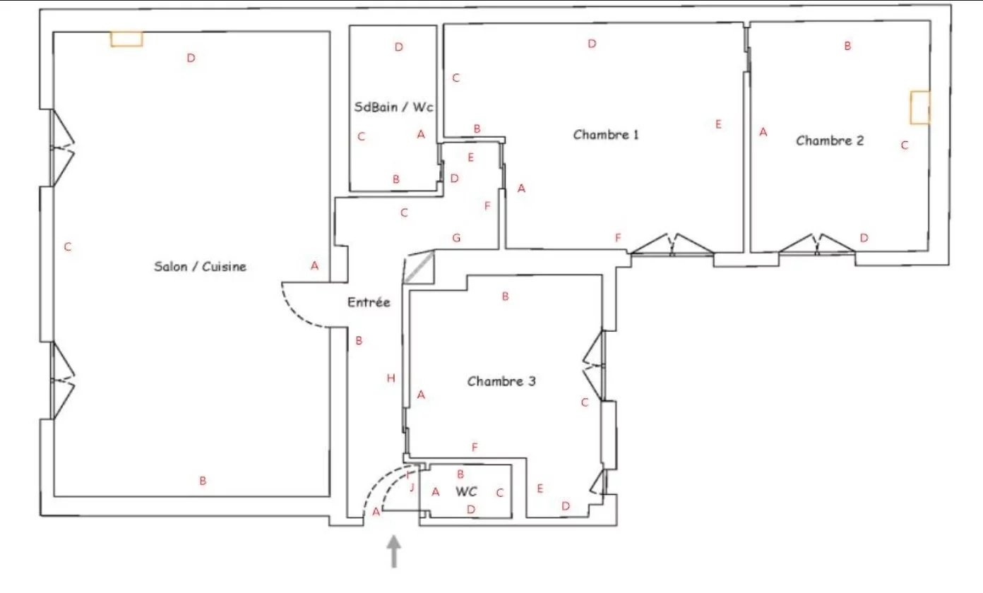
Rue Notre Dame des Champs - 3-bedroom apartment - Paris 6th arrondissement
Description
In a charming historic building with a caretaker, nestled in the absolute tranquility of a tree-lined courtyard bordered by charming workshops, discover this beautiful 72.45 m2 apartment, located on the 2nd floor (accessible by stairs).
It features a spacious, elegant, and inviting living area comprising a living room and a dining room with an open kitchen, fully fitted and equipped by a renowned brand. The apartment also offers a shower room with a laundry area, three comfortable bedrooms or, depending on your needs, two bedrooms and an office, as well as a separate half-bath.
Completely renovated in 2021 with taste and care, this property is now in excellent condition and features a perfectly optimized layout with no wasted space. Bright, peaceful, and particularly pleasant to live in, it charms with its tranquility, functional layout, and high-quality finishes. The entire space exudes a warm and well-maintained atmosphere, ideal for family life, a Parisian pied-à-terre, or a primary residence combining comfort and discretion.
Its location is a true asset. In the immediate vicinity of renowned schools, gourmet shops, neighborhood cafés, and the Luxembourg Gardens, the apartment benefits from a highly sought-after setting that blends a relaxed lifestyle, Parisian elegance, and everyday convenience. This coveted Left Bank neighborhood charms with its residential ambiance, heritage, hidden gems, and rare quality of life, right in the heart of Paris.
Nestled within a charming condominium, this rare property perfectly combines the charm of old-world architecture, tranquility, natural light, and a prime location.
A basement completes this property.
Amenities
- Alarm system
- Bathroom / Lavatory
- Bedroom
- Bike Rental
- Caretaker
- Caretaker house
- Concierge
- Connected thermostat
- Digicode
- Double flow ventilation
- Double glazing
- Entrance
- Fire alarm system
- Heating
- Internet
- Lavatory
- Living/dining/kitchen area
- Near Bus
- Near Day Care
- Near Doctor
- Near Hospital Clinic
- Near Metro
- Near Movies
- Near Nursery
- Near Park
- Near Primary School
- Near Public Parking
- Near Secondary School
- Near Shops
- Near Sport Center
- Near Supermarket
- Near Taxi
- Near Tgv Station
- Near Town Centre
- Near University
- Optical Fiber
- Security door
All information furnished regarding property for sale, rental or financing is from sources deemed reliable, but no warranty or representation is made as to the accuracy thereof and same is submitted subject to errors, omissions, change of price, rental or other conditions, prior sale, lease or financing or withdrawal without notice. International currency conversions where shown are estimates based on recent exchange rates and are not official asking prices.
All dimensions are approximate. For exact dimensions, you must hire your own architect or engineer.
