Property
| Ownership: | Multi-Family |
|---|---|
| Rooms: | 7 |
| Bedrooms: | Studio |
Open Houses
Contact for details !
Financials
Price:$3,850,000
Listing Courtesy of Compass
Brand New townhouse in Prime Clinton Hill with parking.
Description
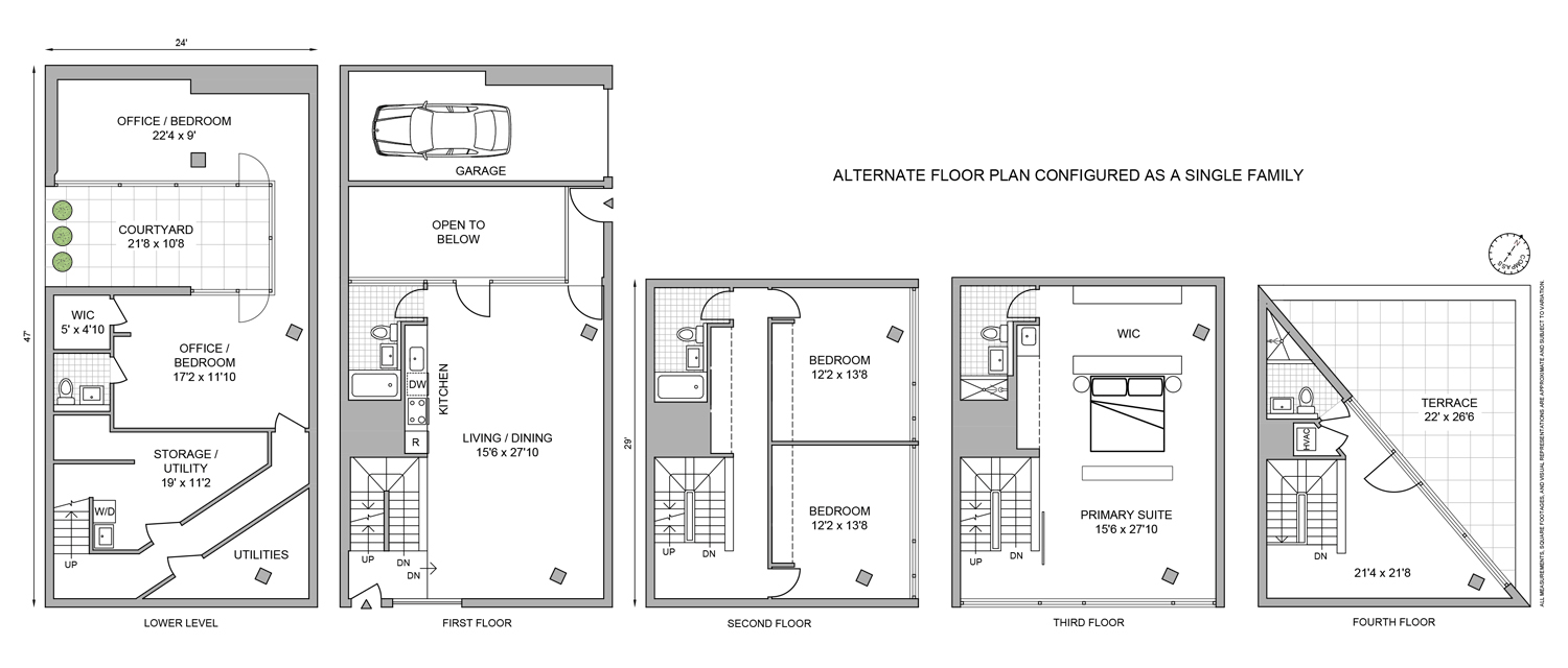
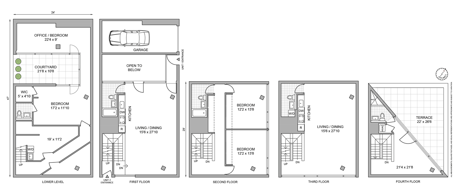
Brand New townhouse in Prime Clinton Hill with parking. This stunning 5-story, 2-family townhouse + garage, designed by the acclaimed Swiss architect Inès Lamunière, offers over 3,300 square feet of modern living space, beautifully integrating with the dynamic streetscape of Classon and Greene Avenues. Live in the upper triplex and rent out the lower duplex for income, or live in the whole house as a 1-family.
This unique residence has a striking all-white stucco facade featuring expansive windows spanning across each floor, inviting natural light into the minimalist interiors. The home is designed with concrete floors and stairs finished in sleek white epoxy, complemented by white plaster walls and floor-to-ceiling windows, creating fresh gallery-like spaces.
The 1900sf upper triplex unit, with its entrance on Classon Avenue, comprises 3 bedrooms and 3 baths. The first level features two bedrooms with views over Greene Avenue and a full bath. The next floor offers a large living area with a wall of windows framing the cityscape of Classon Avenue, a minimalist kitchen, half bath, and washer/dryer. The top floor presents a sculptural and unique triangular bedroom and full bath, leading to a private rooftop terrace.
The 1400sf lower duplex unit, accessible from Greene Avenue, offers a serene retreat with its own private courtyard. This 2-bedroom, 2.5-bath unit features a 28’ x 15’ living area with a streamlined kitchen and a full bathroom, all overlooking the courtyard. The lower level, with its floor-to-ceiling windows, provides versatile spaces perfect for sleeping or a home studio/office, complete with a walk-in closet, half bath, and washer/dryer.
This energy efficient townhouse has an all-electric split system with central air and heat. Triple glazed windows enhance the efficiency and add excellent sound reduction. The garage adjacent to the Greene Avenue entrance provides convenient parking or additional storage. The two units can be combined to create a spacious single-family home, offering versatility to meet your needs.
Discover the perfect blend of modern design and urban living at 272 Greene Avenue, where every element has been thoughtfully crafted to offer an exceptional living experience.
272 Greene Avenue anchors a corner position on a charming tree-lined intersection in Clinton Hill. The townhouse is surrounded by trendy restaurants, cafes, bars, shops, Pratt Institute and the G and C subway lines are a few blocks away. Be the first to own this stunning 21st century addition to brownstone Brooklyn.
Amenities
Courtyard; Roof Deck;
- Patio
- Air Conditioning
- Courtyard
- Elevator
- New Development
- Roof Deck
Neighborhood
More listings:

RLS Data display by Nest Seekers LLC.
All information furnished regarding property for sale, rental or financing is from sources deemed reliable, but no warranty or representation is made as to the accuracy thereof and same is submitted subject to errors, omissions, change of price, rental or other conditions, prior sale, lease or financing or withdrawal without notice. International currency conversions where shown are estimates based on recent exchange rates and are not official asking prices.
All dimensions are approximate. For exact dimensions, you must hire your own architect or engineer.