Richmond Hill L4C 1W6
Canada

Property

Ownership: For Sale
Type: Land
Rooms: 9
Bedrooms: 5 BR
Bathrooms: 1

Financials

Price:C4,980,000
($3,578,400)
(€3,100,100)
Annual Taxes:C12,020.64
505 Park Ave, New York, NY 10022

Attention Builders, Developers, Investors amp ; End Users !

Description

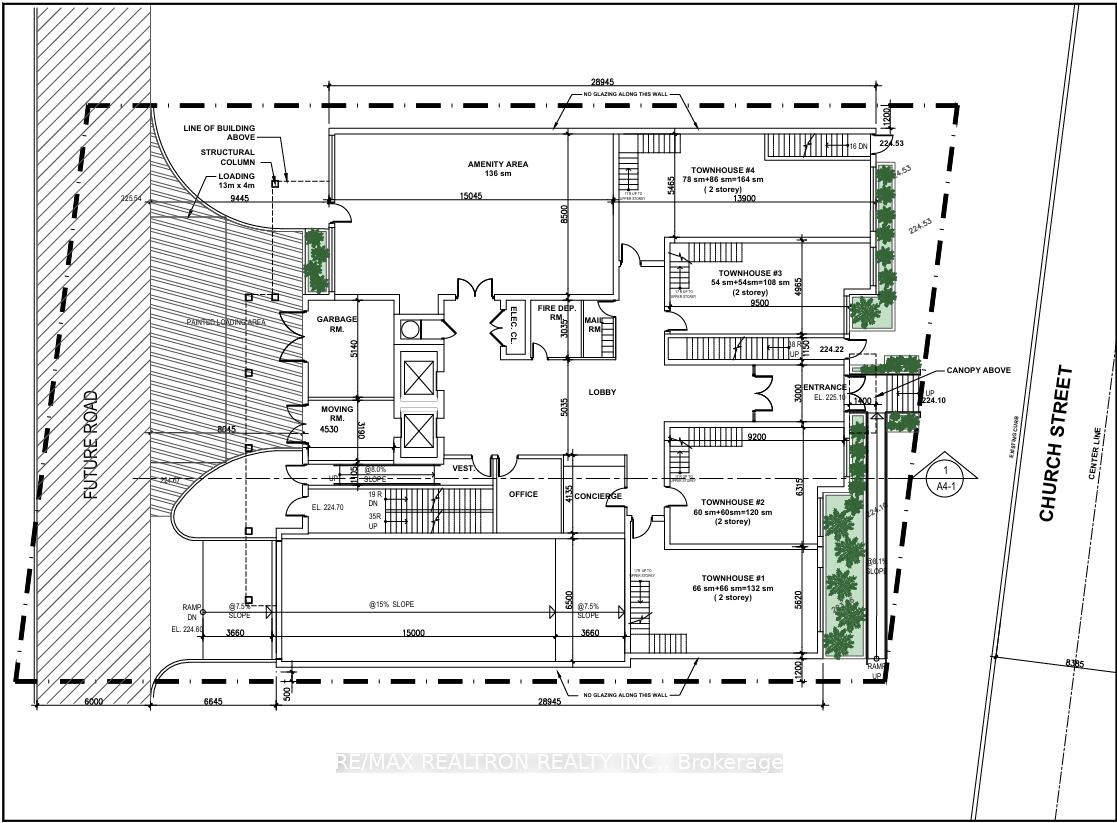
Attention Builders, Developers, Investors & End Users! Exceptional Opportunity in the Heart of Richmond Hill! ***Rare offering of two prime adjacent parcels at 180 & 182 Church St S, totaling approximately 100 x 150 ft (15,000 sq ft), ideally positioned within the sought-after Village Local Centre along the Yonge St corridor-an area designated for significant intensification under the City's Official Plan. ***This high-potential development site comes with completed pre-submission studies and engineering, with a proposed 11-13 storey mid-to-high-rise residential project. The property is currently improved with two well-maintained, renovated, and income-generating detached homes, offering immediate holding value. ***Strategically located just steps to Yonge Street, transit, shopping, restaurants, top-ranking schools, medical services, and all essential amenities. Close proximity to major highways, Elgin Barrow Arena and Central Branch (Richmond Hill Public Library) further enhances its appeal. ***Surrounded by active and proposed developments-including a nearby 21-storey mixed-use project-this site is ideally positioned for future growth. Potential for further land assembly to unlock even greater density.180 & 182 Church St S must be purchased together. ***A rare chance to secure a premier development site in one of Richmond Hill's fastest-growing urban corridors-don't miss this outstanding investment opportunity!

Amenities

  • Available

All information furnished regarding property for sale, rental or financing is from sources deemed reliable, but no warranty or representation is made as to the accuracy thereof and same is submitted subject to errors, omissions, change of price, rental or other conditions, prior sale, lease or financing or withdrawal without notice. International currency conversions where shown are estimates based on recent exchange rates and are not official asking prices.

All dimensions are approximate. For exact dimensions, you must hire your own architect or engineer.