Property
| Ownership: | Multi-Family |
|---|---|
| Rooms: | 11 |
| Bedrooms: | Studio |
Financials
Price:$2,100,000
Real estate tax:$2,772
Listing Courtesy of Compass
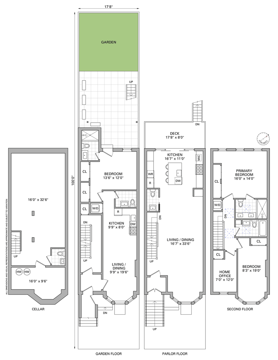
Originally built circa 1910, 131 Weirfield Street has been thoughtfully reimagined into a beautifully appointed two family residence that seamlessly blends timeless character with elevated, modern living.
Description
Originally built circa 1910, 131 Weirfield Street has been thoughtfully reimagined into a beautifully appointed two-family residence that seamlessly blends timeless character with elevated, modern living. Spanning three stories and a Cellar, this exceptional property offers four bedrooms, three full bathrooms, and two half bathrooms across two distinct units — an owner's upper duplex with direct access to the cellar and an income-producing garden rental.
Upon entering the owner's duplex, you are welcomed by a space designed with intention and refined taste. The open-concept living and dining area flows into a stunning kitchen outfitted with top-of-the-line appliances, including a six-burner Bosch gas range, integrated Bosch 36-inch refrigerator, Bosch dishwasher, Sharp microwave, and a dedicated wine fridge — everything a discerning home cook or entertainer could ask for. The kitchen is the undeniable heart of the home, designed to impress while remaining entirely livable.
The owner's duplex spans three bedrooms and two full bathrooms, complemented by two convenient half baths for guests and everyday ease. Below, an additional level provides generous cellar space — ideal for storage, a home gym, or a creative flex space.
The garden-level rental unit is a self-contained one-bedroom, one and a half bath apartment with its own private entrance, offering an excellent opportunity for rental income or a comfortable in-law or guest suite.
Positioned on one of Bushwick's most charming residential blocks — tree-lined Weirfield Street between Evergreen and Central Avenues — this home places you at the center of one of Brooklyn's most dynamic and sought-after neighborhoods. You are moments from local favorites: grab a perfectly pulled espresso at L'Imprimerie or settle in for a laid-back dinner at Money Cat. Irving Square Park is a block away, providing a verdant retreat for morning coffee, weekend reads, or afternoon strolls. Commuting is a breeze with the L and J/M subway lines nearby, and JFK Airport is just 20 minutes away.
From its flexible layout and strong rental income potential to its prime location and high-quality finishes throughout, 131 Weirfield Street is a rare Bushwick find — ready to be lived in, loved, and appreciated for years to come.
Amenities
Garden;
- Air Conditioning
- Basement
- Garden
Neighborhood
More listings:

RLS Data display by Nest Seekers LLC.
All information furnished regarding property for sale, rental or financing is from sources deemed reliable, but no warranty or representation is made as to the accuracy thereof and same is submitted subject to errors, omissions, change of price, rental or other conditions, prior sale, lease or financing or withdrawal without notice. International currency conversions where shown are estimates based on recent exchange rates and are not official asking prices.
All dimensions are approximate. For exact dimensions, you must hire your own architect or engineer.