Property
| Ownership: | Co-op |
|---|---|
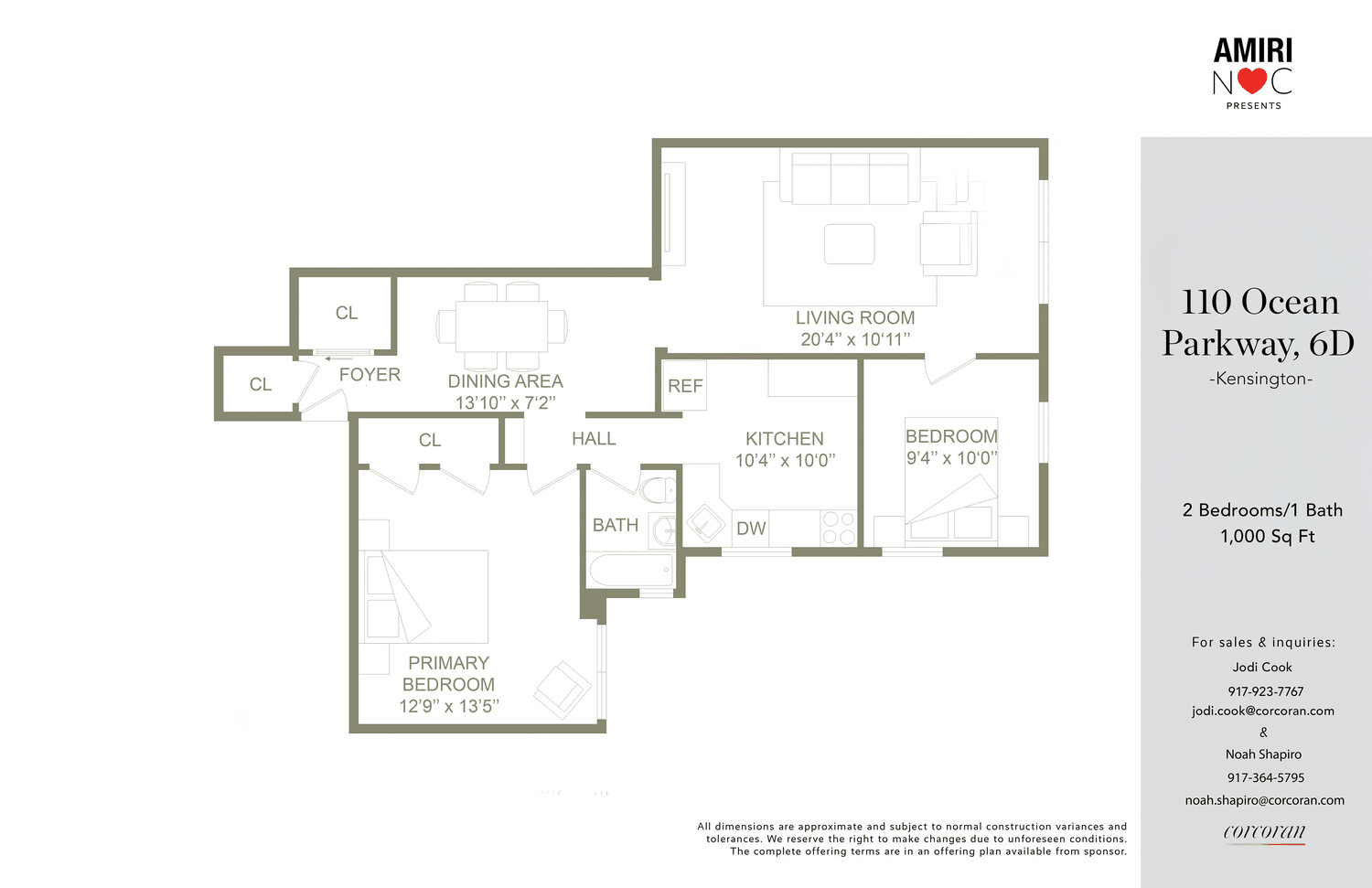
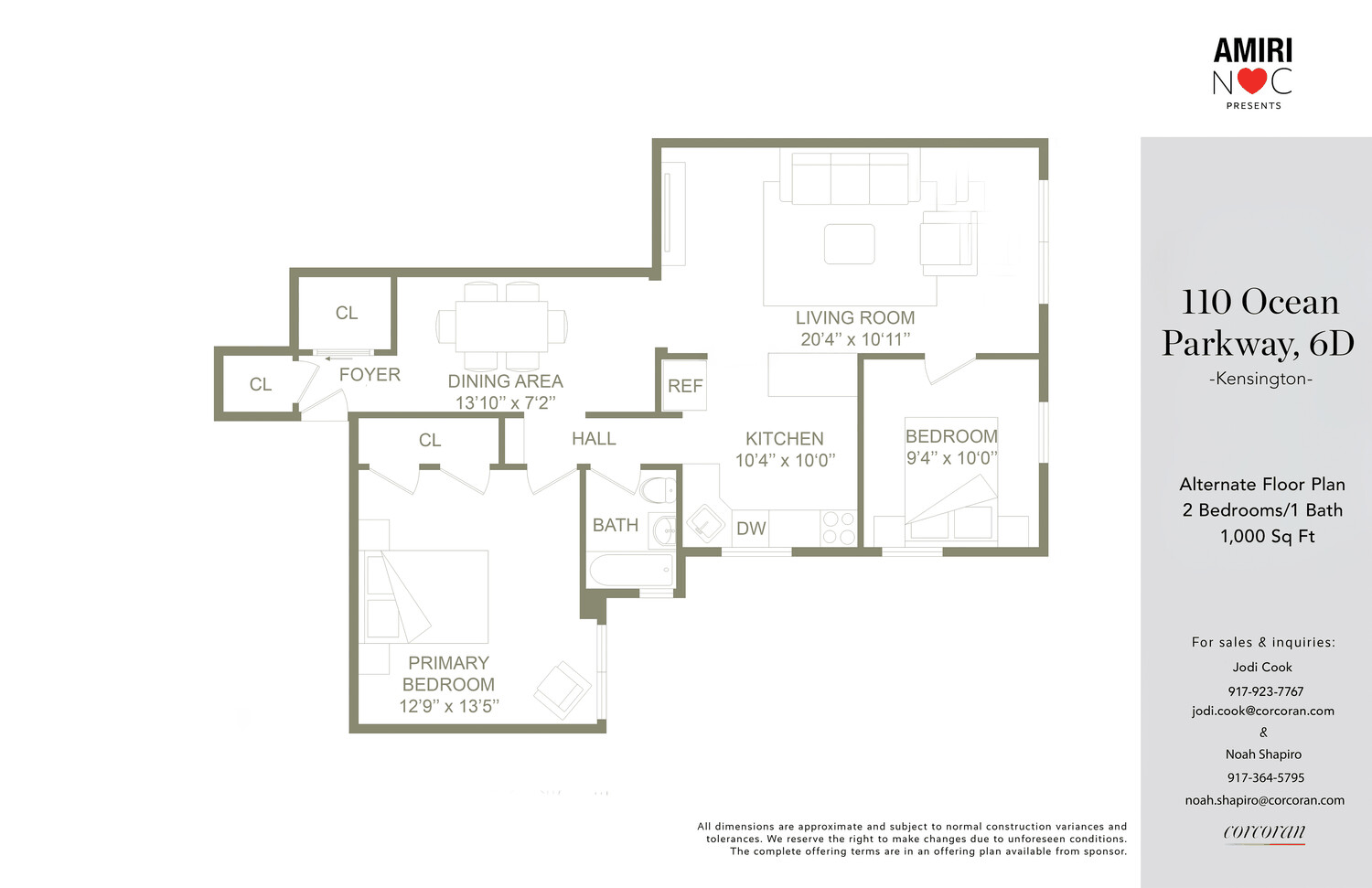
| Rooms: | 5 |
| Bedrooms: | 2 BR |
| Bathrooms: | 1 |
| Pets: | No Pets Allowed |
Financials
Listing Courtesy of Corcoran Group
Expansive, Light Filled Top Floor 2 Bedroom Move In Ready and Adaptable for the Way You Live Welcome to Residence 6D, a beautiful and expansive top floor two bedroom home ...
Description
Expansive, Light-Filled Top-Floor 2-Bedroom - Move-In Ready and Adaptable for the Way You Live
Welcome to Residence 6D, a beautiful and expansive top-floor two-bedroom home with over 950 square feet of functional living space. Defined by its generous proportions and abundant natural light, this home is move-in ready with the flexibility to adapt over time to complement your personal lifestyle from day one.
With east and south-facing exposures, sunlight fills the home throughout the day, enhancing its airy, open feel. Gorgeous wood floors run throughout, complementing the home's bright and cohesive aesthetic.
The expansive living area serves as a versatile foundation-easily accommodating living, entertaining, and work-from-home needs-while still leaving room to express your own sense of design and purpose. Entering the home into its welcoming foyer you'll appreciate multiple closets providing generous, well-integrated storage for coats and everyday essentials. Beyond, the separate dining area comfortably accommodates a full-size table for six, creating an ideal setting for both daily meals and entertaining.
The oversized primary bedroom is a standout, offering exceptional scale, double closets, and ample room for a king-sized setup plus additional furnishings. The second bedroom provides additional flexibility, ideal for guests, a home office, or a creative space tailored to your needs.
The newly renovated, windowed kitchen features brand-new appliances, modern finishes, and a clean, functional layout-ready to support both everyday living and effortless entertaining. A windowed bathroom adds both charm and practicality to the home's thoughtful layout.
Set within an immaculate, well-maintained building, residents enjoy conveniences including on-site laundry, bike storage, and indoor parking (waitlist). The building's excellent upkeep and live-in super enhance the overall living experience.
Perfectly located on the border of Windsor Terrace and Kensington, you are just one block from the subway and four blocks from Prospect Park-offering seamless access to transportation, green space, and neighborhood amenities.
Residence 6D offers the space, light, and proportions to grow with you-an inviting, move-in-ready home that can be tailored to reflect exactly how you want to live.
Welcome to Residence 6D, a beautiful and expansive top-floor two-bedroom home with over 950 square feet of functional living space. Defined by its generous proportions and abundant natural light, this home is move-in ready with the flexibility to adapt over time to complement your personal lifestyle from day one.
With east and south-facing exposures, sunlight fills the home throughout the day, enhancing its airy, open feel. Gorgeous wood floors run throughout, complementing the home's bright and cohesive aesthetic.
The expansive living area serves as a versatile foundation-easily accommodating living, entertaining, and work-from-home needs-while still leaving room to express your own sense of design and purpose. Entering the home into its welcoming foyer you'll appreciate multiple closets providing generous, well-integrated storage for coats and everyday essentials. Beyond, the separate dining area comfortably accommodates a full-size table for six, creating an ideal setting for both daily meals and entertaining.
The oversized primary bedroom is a standout, offering exceptional scale, double closets, and ample room for a king-sized setup plus additional furnishings. The second bedroom provides additional flexibility, ideal for guests, a home office, or a creative space tailored to your needs.
The newly renovated, windowed kitchen features brand-new appliances, modern finishes, and a clean, functional layout-ready to support both everyday living and effortless entertaining. A windowed bathroom adds both charm and practicality to the home's thoughtful layout.
Set within an immaculate, well-maintained building, residents enjoy conveniences including on-site laundry, bike storage, and indoor parking (waitlist). The building's excellent upkeep and live-in super enhance the overall living experience.
Perfectly located on the border of Windsor Terrace and Kensington, you are just one block from the subway and four blocks from Prospect Park-offering seamless access to transportation, green space, and neighborhood amenities.
Residence 6D offers the space, light, and proportions to grow with you-an inviting, move-in-ready home that can be tailored to reflect exactly how you want to live.
Amenities
Bike Room; Garage; Laundry Room;
- Elevator
- Garage
- Laundry Room
- Voice Intercom
Neighborhood
More listings:

RLS Data display by Nest Seekers LLC.
All information furnished regarding property for sale, rental or financing is from sources deemed reliable, but no warranty or representation is made as to the accuracy thereof and same is submitted subject to errors, omissions, change of price, rental or other conditions, prior sale, lease or financing or withdrawal without notice. International currency conversions where shown are estimates based on recent exchange rates and are not official asking prices.
All dimensions are approximate. For exact dimensions, you must hire your own architect or engineer.