Property
| Ownership: | Co-op |
|---|---|
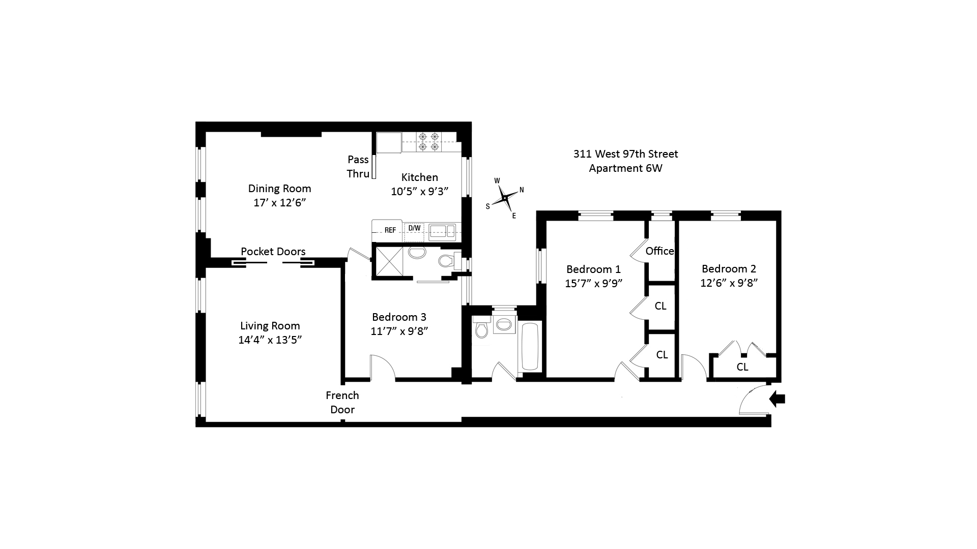
| Rooms: | 6 |
| Bedrooms: | 3 BR |
| Bathrooms: | 2 |
| Pets: | No Pets Allowed |
Financials
Welcome to 311 West 97th Street, Unit 6W, a charming pre war cooperative offering an exceptional living experience right in the heart of the Upper West Side.
Description
Welcome to 311 West 97th Street, Unit 6W, a charming pre-war cooperative offering an exceptional living experience right in the heart of the Upper West Side. This spacious residence boasts approximately 1,500 +/- square feet of thoughtfully designed space, including 6 rooms, 3 roomy bedrooms, and 2 elegant bathrooms. With its southern exposure, this stunning apartment is bathed in natural light, offering a warm and inviting ambiance. The spacious open kitchen seamlessly integrates with a formal dining room, creating a perfect setting for culinary enthusiasts and entertaining friends and household. Imagine preparing gourmet meals while engaging with guests in the expansive living room—a space designed to accommodate both quiet evenings in and lively gatherings. Situated in a low-rise pre-war building, the home's timeless charm is complemented by contemporary comforts. This Bldgs. intimate setting ensures a welcoming community atmosphere. Immerse yourself in one of Manhattan's most dynamic neighborhoods. Just steps away from Riverside Park, explore picturesque trails, and abundant recreational opportunities. Enjoy effortless access to a variety of transportation options, boutique shopping, Westside Market and Trader Joes and Wholes Foods is close by too as well as a diverse array of dining establishments that epitomize New York City's culinary richness. Great Transportation with express subway and crosstown buses just one block away. Don't miss the opportunity to own a piece of Upper West Side history, complete with modern convenience and style. Schedule a showing today to experience first-hand the beauty and warmth of this unparalleled offering. Your new home awaits! washer dryer in unit allowed with board approval, basement storage, pets permitted
Amenities
- Elevator
- Laundry Room
- Voice Intercom
Neighborhood

RLS Data display by Nest Seekers LLC.
All information furnished regarding property for sale, rental or financing is from sources deemed reliable, but no warranty or representation is made as to the accuracy thereof and same is submitted subject to errors, omissions, change of price, rental or other conditions, prior sale, lease or financing or withdrawal without notice. International currency conversions where shown are estimates based on recent exchange rates and are not official asking prices.
All dimensions are approximate. For exact dimensions, you must hire your own architect or engineer.