Property
| Ownership: | Condo |
|---|---|
| Rooms: | 6 |
| Bedrooms: | 3 BR |
| Bathrooms: | 3½ |
| Pets: | No Pets Allowed |
Financials
Price:$4,735,000
Common charges:$2,165
Real estate tax:$2,227
Financing Allowed:90%
Minimum down:$473,500
Listing Courtesy of Corcoran Group
Introducing 420 East 75th Street, a newly completed boutique condominium offering just six full floor residences in the heart of the Upper East Side.
Description
Introducing 420 East 75th Street, a newly completed boutique condominium offering just six full-floor residences in the heart of the Upper East Side. Designed with an emphasis on privacy, proportion, and quiet luxury, this unique building delivers an intimate residential experience where scale, details, and craftsmanship take center stage.
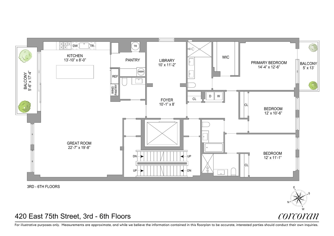
This full-floor home spans 2,350 square feet of interior space and features two private balconies with north and south exposures, bringing in light throughout the day while maintaining a sense of separation from the street.
The elevator opens directly into a gracious foyer, setting the tone for a thoughtfully laid-out residence with three bedrooms, three-and-a-half bathrooms, a windowed library, and a spectacular great room perfect for entertaining.
This home has been carefully finished throughout, with pocket doors for flexible separation, striking oak flooring, programmable lighting, shade pockets, and skim-coated walls and trim painted in Farrow & Ball. Every choice feels intentional, creating a polished, move-in-ready home.
The kitchen is both elegant and highly functional, equipped with professional-grade appliances by Wolf, Sub-Zero, and Cove - including an induction cooktop and externally vented hood, plus a wine refrigerator. Custom Shinnoki cabinetry is paired with Calacatta Caldia marble countertops. A ten-foot island anchors the space, making it equally suited for everyday use and entertaining. A concealed walk-in pantry with built-in storage and a trash chute adds a level of convenience rarely found in new construction.
The primary suite is calm and well-proportioned, featuring a south-facing balcony, a walk-in dressing room, and an elegant bathroom with radiant heated floors, a walk-in shower, and a custom vanity with Robern medicine cabinets. Secondary bedrooms are functional and bright, each offering generous closet space and access to their own full bathrooms.
Additional features include a full-size washer and dryer, as well as the option to purchase climate-controlled accessory rooms on the building's amenity level. With natural light and electricity, these spaces offer flexibility for storage, a home office, studio, private fitness room, or hobby space.
Amenities at 420 East 75th Street are luxurious and practical. Residents enjoy a landscaped rooftop with elevator access, grilling area, and open city views, along with a residents' library/lounge suitable for gatherings all year long. A south-facing garden provides a quiet outdoor retreat, while the lower level includes a fitness room, sauna, pet spa, and bike storage. The building is serviced by a part-time doorman and a state-of-the-art virtual doorman system.
Altogether, 420 East 75th Street offers a refined, boutique living experience where space, light, and finish quality speak for themselves.
This is not an offering. The complete offering terms are in an offering plan available from sponsor. File no. CD23-0323. Sponsor: 418 East 75 Street LLC, 467 Keap Street, 1A, Brooklyn, NY 11211.
This full-floor home spans 2,350 square feet of interior space and features two private balconies with north and south exposures, bringing in light throughout the day while maintaining a sense of separation from the street.
The elevator opens directly into a gracious foyer, setting the tone for a thoughtfully laid-out residence with three bedrooms, three-and-a-half bathrooms, a windowed library, and a spectacular great room perfect for entertaining.
This home has been carefully finished throughout, with pocket doors for flexible separation, striking oak flooring, programmable lighting, shade pockets, and skim-coated walls and trim painted in Farrow & Ball. Every choice feels intentional, creating a polished, move-in-ready home.
The kitchen is both elegant and highly functional, equipped with professional-grade appliances by Wolf, Sub-Zero, and Cove - including an induction cooktop and externally vented hood, plus a wine refrigerator. Custom Shinnoki cabinetry is paired with Calacatta Caldia marble countertops. A ten-foot island anchors the space, making it equally suited for everyday use and entertaining. A concealed walk-in pantry with built-in storage and a trash chute adds a level of convenience rarely found in new construction.
The primary suite is calm and well-proportioned, featuring a south-facing balcony, a walk-in dressing room, and an elegant bathroom with radiant heated floors, a walk-in shower, and a custom vanity with Robern medicine cabinets. Secondary bedrooms are functional and bright, each offering generous closet space and access to their own full bathrooms.
Additional features include a full-size washer and dryer, as well as the option to purchase climate-controlled accessory rooms on the building's amenity level. With natural light and electricity, these spaces offer flexibility for storage, a home office, studio, private fitness room, or hobby space.
Amenities at 420 East 75th Street are luxurious and practical. Residents enjoy a landscaped rooftop with elevator access, grilling area, and open city views, along with a residents' library/lounge suitable for gatherings all year long. A south-facing garden provides a quiet outdoor retreat, while the lower level includes a fitness room, sauna, pet spa, and bike storage. The building is serviced by a part-time doorman and a state-of-the-art virtual doorman system.
Altogether, 420 East 75th Street offers a refined, boutique living experience where space, light, and finish quality speak for themselves.
This is not an offering. The complete offering terms are in an offering plan available from sponsor. File no. CD23-0323. Sponsor: 418 East 75 Street LLC, 467 Keap Street, 1A, Brooklyn, NY 11211.
Amenities
Bike Room; Wheelchair Access; Garden; Fitness Room; Sauna; Lounge; Roof Deck;
- Balcony
- Is New Development
- Washer / Dryer
- Basement
- Elevator
- Fitness Facility
- Garden
- New Development
- Roof Deck
- Virtual Doorman
Neighborhood
More listings:

RLS Data display by Nest Seekers LLC.
All information furnished regarding property for sale, rental or financing is from sources deemed reliable, but no warranty or representation is made as to the accuracy thereof and same is submitted subject to errors, omissions, change of price, rental or other conditions, prior sale, lease or financing or withdrawal without notice. International currency conversions where shown are estimates based on recent exchange rates and are not official asking prices.
All dimensions are approximate. For exact dimensions, you must hire your own architect or engineer.