Property
| Ownership: | Rental Property |
|---|---|
| Rooms: | 10 |
| Bedrooms: | Studio |
Financials
Price:$2,895,000
Listing Courtesy of Compass
Introducing 809 Lincoln Place a beautifully renovated two family brownstone set along a picturesque, landmarked, tree lined block in the heart of Crown Heights.
Description
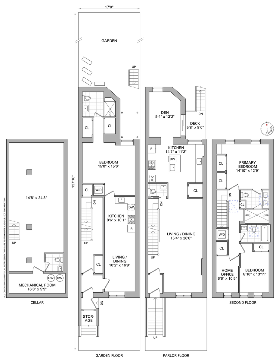
Introducing 809 Lincoln Place — a beautifully renovated two-family brownstone set along a picturesque, landmarked, tree-lined block in the heart of Crown Heights. Behind its classic façade, this expansive residence unfolds across three stories plus a finished basement, seamlessly blending architectural detail with contemporary design and modern comforts. In total, the home offers three bedrooms, a den, home office, three full bathrooms, and two powder rooms.
The owner’s duplex begins on a gracious parlor floor defined by soaring ceilings, chevron patterned hardwood floors and a decorative fireplace. Tall windows flood the space with natural light, while thoughtful custom built-ins lend warmth and character. The open-concept layout flows effortlessly from a formal living area into a spacious dining room and a chef’s kitchen designed for both everyday living and entertaining. Anchored by an oversized island, the kitchen features custom cabinetry, premium paneled appliances, marble countertops, and ample storage. Large glass doors in the rear extension, open onto a private deck overlooking the garden below — creating a seamless indoor-outdoor experience.
Upstairs, the bedroom level offers a tranquil retreat. The primary suite spans the full width of the home and includes a generous double closets, built-in shelving nook and a spa-like en suite bath with double vanity and glass-enclosed shower. An additional bedroom and home office are well-proportioned and filled with light, complemented by a beautifully appointed bathroom and a dedicated laundry area for convenience.
The garden level offers a separate large, thoughtfully designed one bedroom apartment with its own private entrance, full kitchen, and comfortable living space — ideal for generating income, hosting guests, or accommodating extended family.
The finished basement provides flexible bonus space perfect for a media room, home gym, office, or playroom, adding versatility to the home’s already impressive footprint.
Situated moments from Prospect Park, the Brooklyn Botanic Garden, and neighborhood favorites along Franklin & Nostrand Avenues such as The Corner Store, Chavela’s and Bong, 809 Lincoln Place presents a rare opportunity to own a turnkey brownstone that honors its historic roots while delivering modern luxury in one of Brooklyn’s most vibrant communities.
Amenities
Outdoor Parking; Garden;
- Air Conditioning
- Basement
- Garden
- Voice Intercom
Neighborhood
More listings:

RLS Data display by Nest Seekers LLC.
All information furnished regarding property for sale, rental or financing is from sources deemed reliable, but no warranty or representation is made as to the accuracy thereof and same is submitted subject to errors, omissions, change of price, rental or other conditions, prior sale, lease or financing or withdrawal without notice. International currency conversions where shown are estimates based on recent exchange rates and are not official asking prices.
All dimensions are approximate. For exact dimensions, you must hire your own architect or engineer.