25 Central Park West Apt: 1F
New York, NY 10023
| Cross street: | West 62nd Street |
|---|
Property
| Ownership: | Condo |
|---|---|
| Rooms: | 6 |
| Bedrooms: | 4 BR |
| Bathrooms: | 2 |
| Pets: | No Pets Allowed |
Financials
Price:$699,000
Common charges:$2,360
Real estate tax:$3,101
Financing Allowed:90%
Minimum down:$69,900
Listing Courtesy of Compass
200K price drop for 1290 SF Medical Condo Office at 25 CPW, now only 699K !
Description
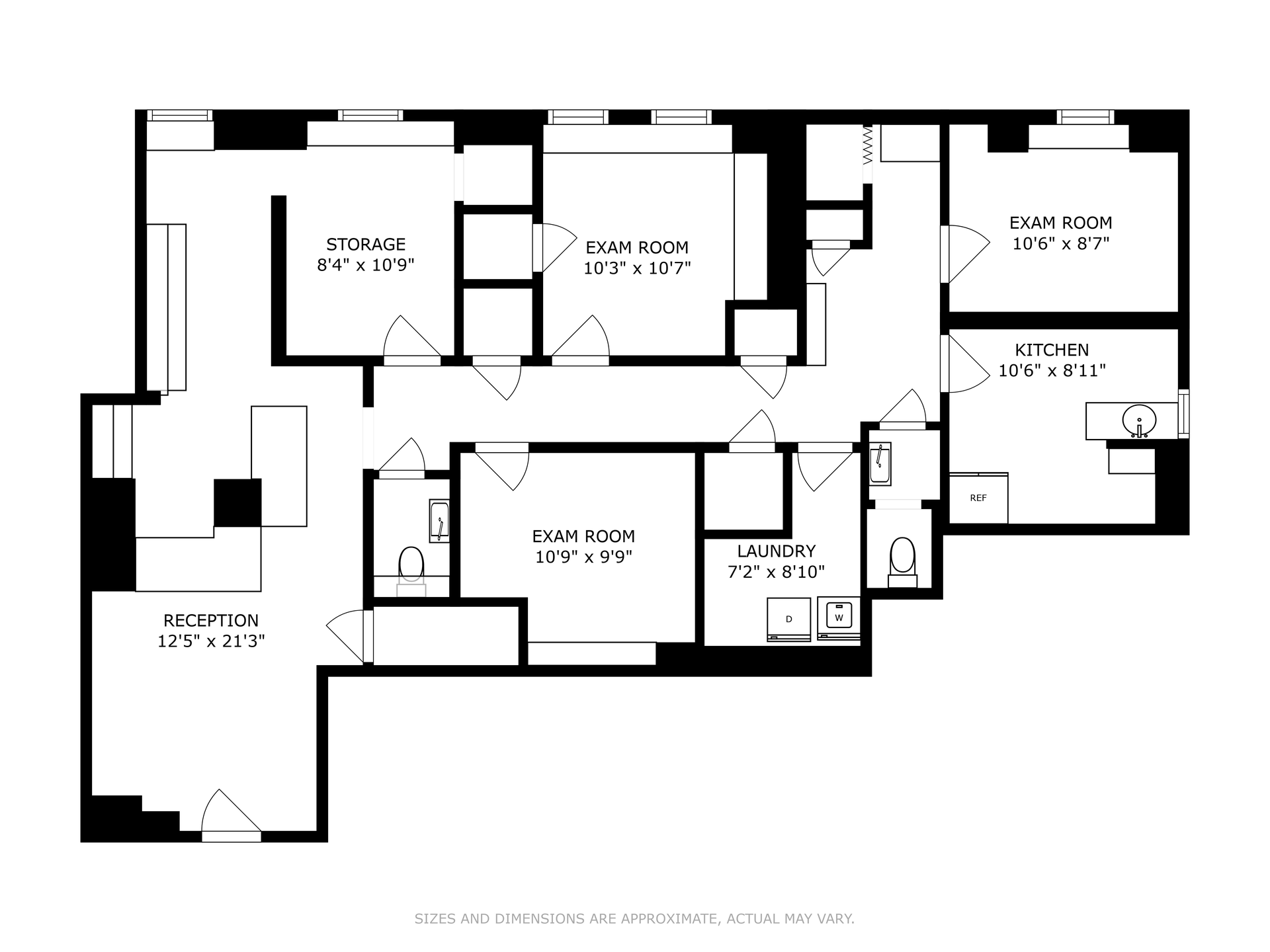
200K price drop for 1290 SF Medical Condo Office at 25 CPW, now only 699K!!! Beautifully renovated, wood paneled medical office located off the lobby in a prestigious luxury full-service CONDO on 62nd Street and Central Park West! The office features a gracious waiting room and windowed reception area with an adjacent file storage room that could be converted into another room, a spacious, windowed doctor’s office, 2 generously sized exam rooms, a windowed eat-in kitchen which can also be used as an exam room, 2 half bathrooms, numerous closets and a laundry room with shower. The office is in excellent condition, has central air conditioning and windows with serene, pretty views to the greenery and flowers in the building's central courtyard.
Built in 1931, The Century Condominium is one of the premier full-service Art Deco buildings in NYC conveniently located near Columbus Circle and Columbus Square/Lincoln Center. Thanks to the building's full-time doorman, the office is accessible 24 hours a day. There is a capital assessment totaling $337.06. As a condominium (rather than a coop), the purchase does not require board approval.
Amenities
Bike Room; Courtyard; Garden; Fitness Room; Exercise Studio; Laundry Room; Valet; Nursery; Lounge; Private Storage For Fee;
- Washer / Dryer
- Washer Dryer Hookups
- Attended Elevator
- Courtyard
- Elevator
- Fitness Facility
- Full service
- Garden
- Laundry Room
Neighborhood
More listings:

RLS Data display by Nest Seekers LLC.
All information furnished regarding property for sale, rental or financing is from sources deemed reliable, but no warranty or representation is made as to the accuracy thereof and same is submitted subject to errors, omissions, change of price, rental or other conditions, prior sale, lease or financing or withdrawal without notice. International currency conversions where shown are estimates based on recent exchange rates and are not official asking prices.
All dimensions are approximate. For exact dimensions, you must hire your own architect or engineer.