Property
| Ownership: | Multi-Family |
|---|---|
| Rooms: | 9 |
| Bedrooms: | Studio |
Financials
Price:$7,200,000
Listing Courtesy of Brown Harris Stevens Residential Sales LLC
TRANQUIL NORTH HEIGHTS TOWNHOUSE The advantages of a corner property just one block from the Promenade in this tranquil North Heights setting are exceptional.
Description
TRANQUIL NORTH HEIGHTS TOWNHOUSE
The advantages of a corner property just one block from the Promenade in this tranquil North Heights setting are exceptional. Light fills the home throughout the day, with east, west, and south exposures offering lovely, open views from every room.
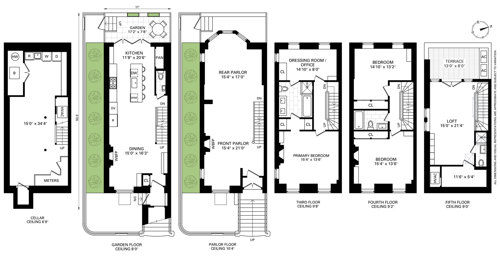
A rare convenience: pull directly to the garden gate and step effortlessly into the kitchen with provisions in hand. This turn-key, fully renovated historic residence has been thoughtfully updated for modern living by Baxt Ingui Architects. Encompassing approximately 3,200 square feet (excluding the cellar), the home features soaring ceiling heights and a seamless blend of period detail and contemporary comfort.
Radiant recirculating hot water heat and central air conditioning ensure year-round comfort, complemented by radiant heated floors in the baths and throughout the garden-level kitchen and dining area. A charming patio just off the kitchen extends the living space outdoors. Wood-burning fireplaces anchor both the garden and parlor levels.
Four floors above the cellar there are five bedrooms, three full baths, and one half bath, with well-considered storage on every level. The top-floor loft serves as an ideal bedroom or guest suite, opening to a terrace with skyline views and a glimpse of the harbor before the trees come into leaf. A move-in ready Brooklyn Heights home of rare quality and ease.
Showings and open houses by appointment beginning Tuesday April 21. Video will be available soon.
The advantages of a corner property just one block from the Promenade in this tranquil North Heights setting are exceptional. Light fills the home throughout the day, with east, west, and south exposures offering lovely, open views from every room.
A rare convenience: pull directly to the garden gate and step effortlessly into the kitchen with provisions in hand. This turn-key, fully renovated historic residence has been thoughtfully updated for modern living by Baxt Ingui Architects. Encompassing approximately 3,200 square feet (excluding the cellar), the home features soaring ceiling heights and a seamless blend of period detail and contemporary comfort.
Radiant recirculating hot water heat and central air conditioning ensure year-round comfort, complemented by radiant heated floors in the baths and throughout the garden-level kitchen and dining area. A charming patio just off the kitchen extends the living space outdoors. Wood-burning fireplaces anchor both the garden and parlor levels.
Four floors above the cellar there are five bedrooms, three full baths, and one half bath, with well-considered storage on every level. The top-floor loft serves as an ideal bedroom or guest suite, opening to a terrace with skyline views and a glimpse of the harbor before the trees come into leaf. A move-in ready Brooklyn Heights home of rare quality and ease.
Showings and open houses by appointment beginning Tuesday April 21. Video will be available soon.
Amenities
Alarm System; Sprinkler System; Garden;
- Terrace
- Basement
- Garden
- Voice Intercom
Neighborhood
More listings:

RLS Data display by Nest Seekers LLC.
All information furnished regarding property for sale, rental or financing is from sources deemed reliable, but no warranty or representation is made as to the accuracy thereof and same is submitted subject to errors, omissions, change of price, rental or other conditions, prior sale, lease or financing or withdrawal without notice. International currency conversions where shown are estimates based on recent exchange rates and are not official asking prices.
All dimensions are approximate. For exact dimensions, you must hire your own architect or engineer.