Property
| Ownership: | Multi-Family |
|---|---|
| Rooms: | 10 |
| Bedrooms: | Studio |
Financials
Price:$4,900,000
Real estate tax:$24,059
Listing Courtesy of Brown Harris Stevens Residential Sales LLC
FEDERAL RESERVE II A process of search and discovery started in 1995 created a minimalist work of artful preservation at 25 Cranberry Street, a late 18th century farmhouse, recorded by ...
Description
FEDERAL RESERVE II
A process of search and discovery started in 1995 created a minimalist work of artful preservation at 25 Cranberry Street, a late 18th century farmhouse, recorded by the NYC Registrar in the early 19th. Layers of paper peeled away to reveal shades of ochre and indigo on plaster and 60's flooring lifted to exquisite original planks. An enchanting World of Interiors emerged and was captured in print by WOI in December 2005.
From then until now, the preservationist-in-residence has managed all with a delicate and refined sensibility. The option of raising the rear top floor roof for a view of sky, garden and a second bath, invites the next owner to open a new chapter in the history of this home. Stones in the garden from a past farm boundary await their next purpose.
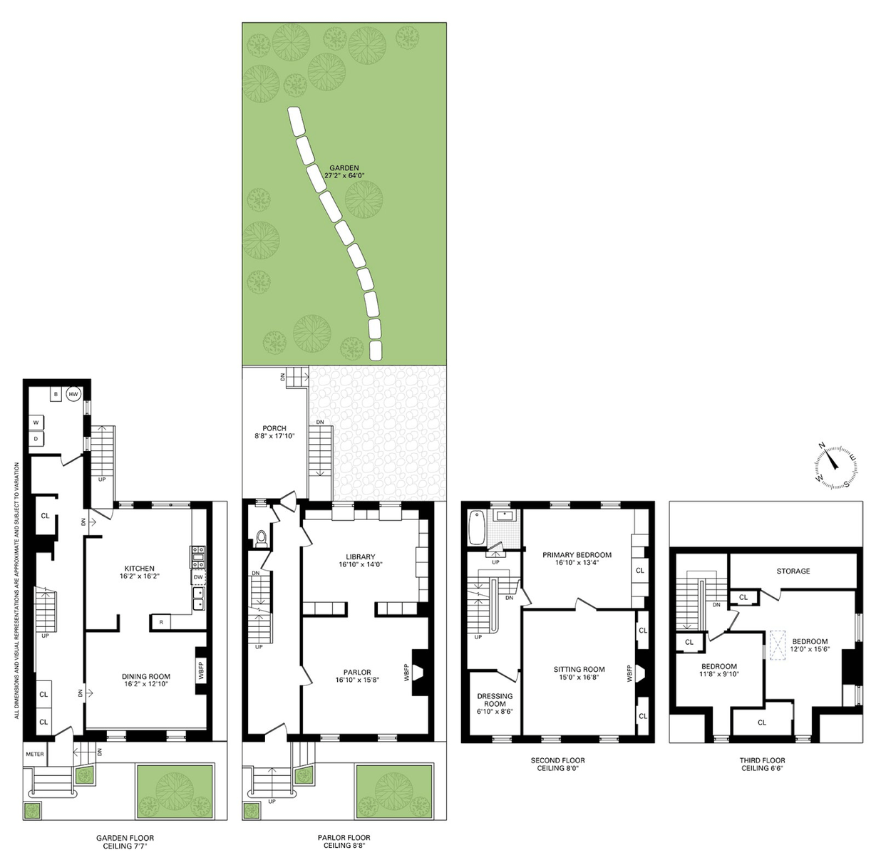
Measuring 25 x 30 on a 27.08' x 101.17' lot, 4 floors of living space are estimated at 3,263 sf. The original layout, the epitome of the luxury of enough, includes 4 bedrooms, 1 full and one half-bath, a dressing room, library, parlor, kitchen, and dining room. Heated in the 1800's by 3 wood-burning fireplaces, it is evenly comfortable now with multi-zone recirculating hot water heat as well as two of the same firesides.
There is splendid natural light front to back from north and south exposures and this picturesque and tranquil fruit street location has walking-home-views of the NYC skyline and sunset to the west. Inga's is on the corner, a year-round Tues/Sat Greenmarket nearby, scores more shops and dining locations within blocks and The Park, The Promenade and The Bridge too. Now more than ever, it's time to enjoy Brooklyn Heights, America's first suburb, and NYC's first Landmark District, minutes from Manhattan.
Please call for an appointment to visit. Video available soon..
A process of search and discovery started in 1995 created a minimalist work of artful preservation at 25 Cranberry Street, a late 18th century farmhouse, recorded by the NYC Registrar in the early 19th. Layers of paper peeled away to reveal shades of ochre and indigo on plaster and 60's flooring lifted to exquisite original planks. An enchanting World of Interiors emerged and was captured in print by WOI in December 2005.
From then until now, the preservationist-in-residence has managed all with a delicate and refined sensibility. The option of raising the rear top floor roof for a view of sky, garden and a second bath, invites the next owner to open a new chapter in the history of this home. Stones in the garden from a past farm boundary await their next purpose.
Measuring 25 x 30 on a 27.08' x 101.17' lot, 4 floors of living space are estimated at 3,263 sf. The original layout, the epitome of the luxury of enough, includes 4 bedrooms, 1 full and one half-bath, a dressing room, library, parlor, kitchen, and dining room. Heated in the 1800's by 3 wood-burning fireplaces, it is evenly comfortable now with multi-zone recirculating hot water heat as well as two of the same firesides.
There is splendid natural light front to back from north and south exposures and this picturesque and tranquil fruit street location has walking-home-views of the NYC skyline and sunset to the west. Inga's is on the corner, a year-round Tues/Sat Greenmarket nearby, scores more shops and dining locations within blocks and The Park, The Promenade and The Bridge too. Now more than ever, it's time to enjoy Brooklyn Heights, America's first suburb, and NYC's first Landmark District, minutes from Manhattan.
Please call for an appointment to visit. Video available soon..
Amenities
Garden;
- Basement
- Garden
- Voice Intercom
Neighborhood
More listings:

RLS Data display by Nest Seekers LLC.
All information furnished regarding property for sale, rental or financing is from sources deemed reliable, but no warranty or representation is made as to the accuracy thereof and same is submitted subject to errors, omissions, change of price, rental or other conditions, prior sale, lease or financing or withdrawal without notice. International currency conversions where shown are estimates based on recent exchange rates and are not official asking prices.
All dimensions are approximate. For exact dimensions, you must hire your own architect or engineer.