Property
| Ownership: | Co-op |
|---|---|
| Rooms: | 4 |
| Bedrooms: | 1 BR |
| Bathrooms: | 1½ |
| Pets: | No Pets Allowed |
Open Houses
Financials
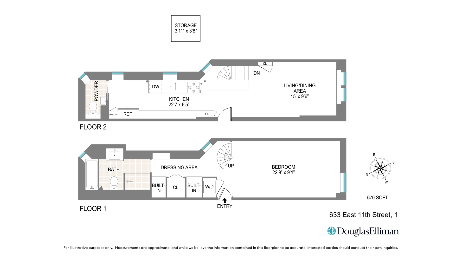
Welcome to Apartment 1 at 633 East 11th Street, a distinctive East Village duplex that blends style, function, and comfort across two thoughtfully designed levels.
Description
Welcome to Apartment 1 at 633 East 11th Street, a distinctive East Village duplex that blends style, function, and comfort across two thoughtfully designed levels.
This inviting home is defined by its abundance of windows and impressively high ceilings, creating a sense of volume and openness throughout. The south-facing living room is elevated above street level, offering both privacy and excellent natural light. A graciously wide spiral staircase serves as a striking architectural centerpiece, connecting the two levels with ease and elegance.
The modern chef's kitchen is beautifully appointed with sleek, high-end appliances and complemented by smart, custom built-ins that maximize storage in a clean, contemporary way. Rare for a home of this kind, the apartment features 1.5 bathrooms, including a well-appointed primary bath with both a stand-up shower and a large soaking tub.
Additional conveniences include an in-unit washer and dryer, and a private storage unit that trades with the apartment, ensuring that every practical need is met without sacrificing style.
The co-op is self-managed with a flexible ownership policy. Unlimited subletting is permitted after five years as a primary residence, and options like pied-à-terre use, co-purchasing, and gifting are all allowed. There's also bike storage, a private storage cage that trades with the unit, and a shared backyard garden that's genuinely well cared for and a great bonus when the weather's nice.
Perfectly positioned in the East Village, this home is moments from beloved neighborhood destinations, vibrant dining, local markets, and convenient transportation options. Whether heading uptown, downtown, or across the river, getting around is effortless from this prime location.
A rare opportunity to own a stylish and versatile home in one of downtown's most dynamic neighborhoods.
A portion of the advertised maintenance is in the form of an ongoing monthly assessment.
Amenities
- Is New Development
- Washer / Dryer
- Garden
- Voice Intercom
Neighborhood

RLS Data display by Nest Seekers LLC.
All information furnished regarding property for sale, rental or financing is from sources deemed reliable, but no warranty or representation is made as to the accuracy thereof and same is submitted subject to errors, omissions, change of price, rental or other conditions, prior sale, lease or financing or withdrawal without notice. International currency conversions where shown are estimates based on recent exchange rates and are not official asking prices.
All dimensions are approximate. For exact dimensions, you must hire your own architect or engineer.