429 West 22nd Street Apt: 1B
New York, NY 10011
Cross street:Ninth Avenue

Building

Type:Townhouse
Era:Post-war
Floors:5

Property

Ownership: Co-op
Rooms: 5
Bedrooms: 2 BR
Bathrooms: 2
Pets: No Pets Allowed

Open Houses

Contact for details !

Financials

Price:$3,800,000
Maintenance:$2,387
Financing Allowed:80%
Minimum down:$760,000
594 Broadway, New York, NY 10012, USA
Listing Courtesy of Corcoran Group

A Landmarked Chelsea Townhouse Duplex Completely Reconceived by Lang Architecture 429 West 22nd Street 1B is a two bedroom Chelsea townhouse duplex architecturally reimagined at every level, with sculptural precision ...

Description

A Landmarked Chelsea Townhouse Duplex Completely Reconceived by Lang Architecture

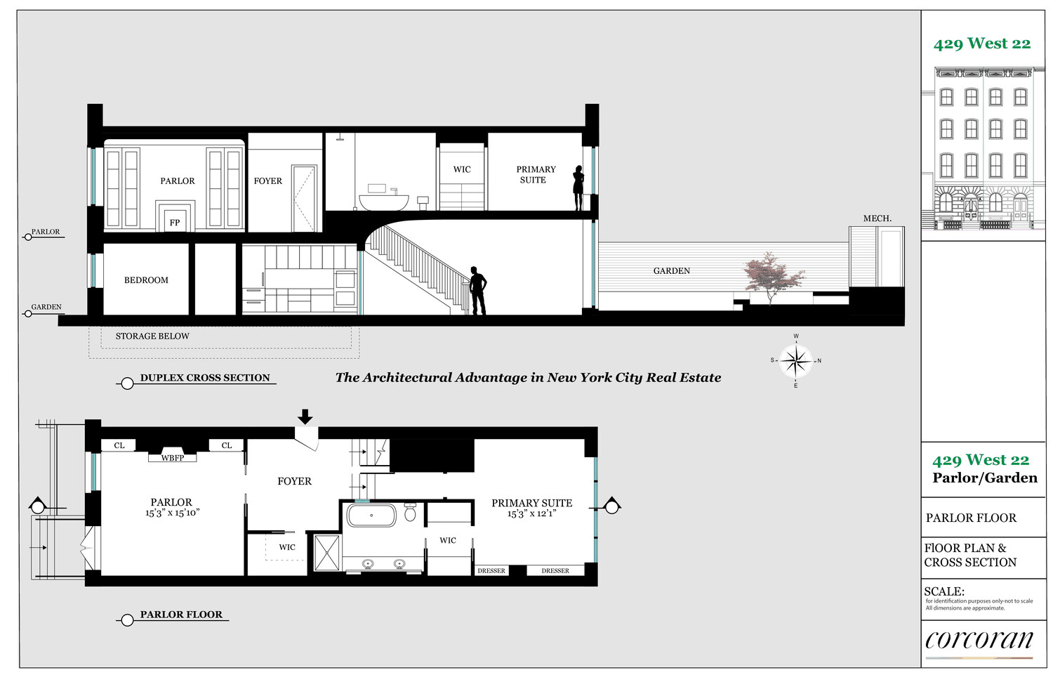
429 West 22nd Street #1B is a two-bedroom Chelsea townhouse duplex - architecturally reimagined at every level, with sculptural precision and an uncommon sense of openness. At approximately 2,162 square feet including a 560-square-foot private garden, the residence occupies the parlor and garden floors of a double-wide Anglo-Italianate townhouse built in 1855 by Morgan Pindar, one of three landmarked row houses on a quiet, tree-lined block. A comprehensive gut renovation to the studs - new electric, plumbing, windows, doors, and integrated audiovisual throughout - was conceived and executed by Drew Lang of Lang Architecture, holding historic detail and contemporary discipline in equal measure across both floors.

From the first moment, the level of craft is evident. Chevron walnut flooring and a custom steel-spindled stair with hand-bent walnut handrail signal a home that is precise and considered throughout. The south-facing parlor offers 10-foot ceilings, oversized arched windows, a wood-burning fireplace with marble surround, and custom-lit bookshelves. Looking north, a double-height blackened steel casement wall frames the primary suite entry above and the garden below in a single architectural composition - the move that most defines the spatial character of the home.

The primary suite overlooks the lush, landscaped rear garden. Custom millwork with leather accents runs throughout. A spacious walk-in-closet transitions into an opulent primary bathroom. This space features a marble slab double vanity, rainfall shower, soaking tub, and radiant-heated floors. On the garden level, a private secondary bedroom with custom millwork sits adjacent to a full bathroom.

The lower-level flows front to back without interruption. 11-foot ceilings at the rear open onto a new steel window wall, designed to draw the two-tiered garden into the interior. It features mature plantings, landscape lighting and an irrigation system. Renowned designer Augusta Hoffman contributed a bespoke banquette dining space with custom built-in shelving and cabinetry, anchoring the entertaining sequence alongside a seating area with a second wood-burning fireplace - together giving the floor the intimacy of distinct rooms within a single, continuous field. Frosted steel pocket doors at the kitchen threshold offer a flexible boundary between cooking and living.

The kitchen is centered on a Pietra Cardosa slab island with walnut lower cabinetry, brass pulls, and recessed marble slab backsplash panels. Appliances: Miele induction vented range and double oven, Sub-Zero refrigeration and wine storage, Miele dishwasher, Bosch washer/dryer.

Set mid-block between Ninth and Tenth Avenues on one of Chelsea's quietest and most architecturally intact landmarked streets, 429 West 22nd Street is a pre-war eight-unit cooperative - meticulously maintained, financially sound, with no underlying mortgage, strong reserve fund, and low monthly maintenance. The block itself is among the most significant examples of mid-19th century residential architecture in the neighborhood, and one of the few in Manhattan that retains its original row intact. The High Line, Hudson Yards, and Chelsea's gallery district are in close proximity, as are Chelsea Market, Chelsea Piers, Hudson River Park, Whole Foods, and the restaurants and shops that define the character of modern West Chelsea.

Pets Permitted.

Amenities

  • Terrace
  • Washer / Dryer
  • Voice Intercom

Neighborhood

More listings:

OLR IDX

RLS Data display by Nest Seekers LLC.

All information furnished regarding property for sale, rental or financing is from sources deemed reliable, but no warranty or representation is made as to the accuracy thereof and same is submitted subject to errors, omissions, change of price, rental or other conditions, prior sale, lease or financing or withdrawal without notice. International currency conversions where shown are estimates based on recent exchange rates and are not official asking prices.

All dimensions are approximate. For exact dimensions, you must hire your own architect or engineer.