Property
Ownership: | Condo |
---|---|
Bedrooms: | 3 BR |
Bathrooms: | 3 |
Area: | 85412 sq ft |
Lot Size: | 1.96 Acres |
Financials
Price:$1,195,000
Listing Courtesy of Coldwell Banker Realty
8455 Fountain Ave 3BR Sunset Strip La
Description
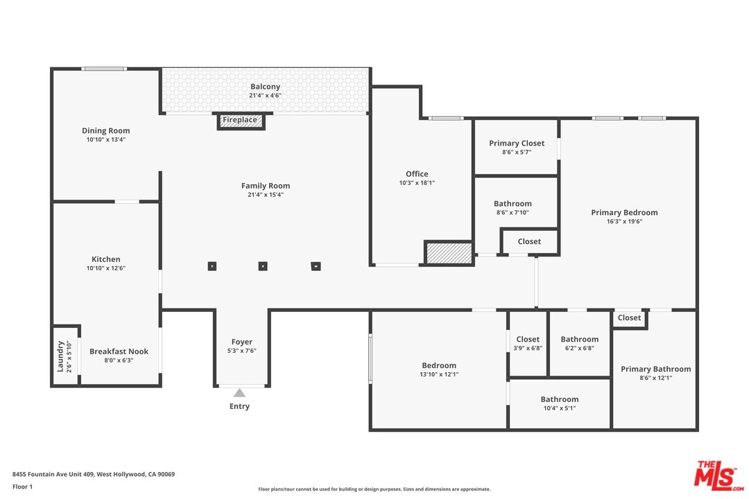
Discover the perfect blend of charm and modern comfort in one of West Hollywood's largest single level condominiums! A tranquil retreat just moments from the iconic Sunset Strip, this residence offers nearly 2,000 square feet of updated living space that is perfectly designed for both everyday living and effortless entertaining. Step through double doors into a bright and airy sunken living room where dual sliding doors frame the fireplace and open to a private balcony. The entertainment space flows seamlessly into a formal dining room and kitchen featuring an additional breakfast nook and wine fridge. Down the hall, you will find three comfortable bedrooms and bathrooms, including an expansive primary suite that boasts two large walk-in closets and a spa inspired bath with dual vanities. Natural light fills the home from windows on both sides, and with only one shared wall (kitchen), privacy is maximized. Enjoy resort style living with every convenience at your fingertips: in-unit laundry, same floor side-by-side parking, private storage room, abundant guest parking, and building amenities including a pool, multiple jacuzzis, saunas, lounge areas, fitness center, pool room, and clubhouse.Thoughtful upgrades include a new HVAC system (2024), smart thermostat, recessed lighting, an updated electrical panel, along with numerous enhancements since 2021. HOA dues cover amenities, water, sewer, trash, building maintenance, and earthquake insurance. This is an exceptional property in an unbeatable location, just moments from the very best shopping, dining, and entertainment West Hollywood has to offer.
Amenities
- Balcony
- Double Door Entry
Neighborhood
More listings:

All information furnished regarding property for sale, rental or financing is from sources deemed reliable, but no warranty or representation is made as to the accuracy thereof and same is submitted subject to errors, omissions, change of price, rental or other conditions, prior sale, lease or financing or withdrawal without notice. International currency conversions where shown are estimates based on recent exchange rates and are not official asking prices.
All dimensions are approximate. For exact dimensions, you must hire your own architect or engineer.