Property
| Ownership: | Single Family |
|---|---|
| Rooms: | 15 |
| Bedrooms: | Studio |
Financials
Price:$1,450,000
Real estate tax:$11,016
Listing Courtesy of Corcoran Group
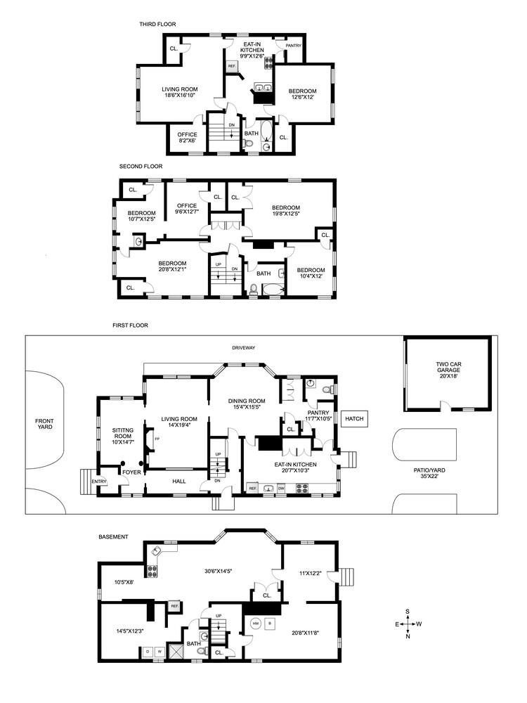
642 East 26th Street is a charming pre war Victorian style townhouse with a 2 car garage located in the middle of 3 vibrant Brooklyn neighborhoods !
Description
642 East 26th Street is a charming pre-war Victorian style townhouse with a 2-car garage located in the middle of 3 vibrant Brooklyn neighborhoods!
Built 26 x 53 ft on a 40 x 100 ft lot, this magnificent property offers over 3,100 square feet of living space with an inviting layout that can accommodate your every need. With seven spacious bedrooms and three baths, this home boasts ample space for relaxation and privacy.
Fully detached, there is an abundance of natural light flooding through exposures in every direction highlighting the original hardwood floors, pocket doors and other pre-war details. The expansive living space and formal dining room create the perfect setting for hosting gatherings. The east facing sitting room adds a delightful space to enjoy the sun while the finished windowed basement provides great additional space. Upstairs you will find several versatile rooms that can be used as bedrooms, dens or office spaces for your sleeping, work or leisure needs.
Outside, enjoy the tranquility of your own private backyard which is an ideal space for gardening enthusiasts or those who simply appreciate fresh air and greenery.
Right up to the block from Brooklyn College and Midwood High School with proximity to all amenities on the Flatbush Ave commercial corridor and easy access to transportation with the B, Q, 2 & 5 trains all nearby.
Built 26 x 53 ft on a 40 x 100 ft lot, this magnificent property offers over 3,100 square feet of living space with an inviting layout that can accommodate your every need. With seven spacious bedrooms and three baths, this home boasts ample space for relaxation and privacy.
Fully detached, there is an abundance of natural light flooding through exposures in every direction highlighting the original hardwood floors, pocket doors and other pre-war details. The expansive living space and formal dining room create the perfect setting for hosting gatherings. The east facing sitting room adds a delightful space to enjoy the sun while the finished windowed basement provides great additional space. Upstairs you will find several versatile rooms that can be used as bedrooms, dens or office spaces for your sleeping, work or leisure needs.
Outside, enjoy the tranquility of your own private backyard which is an ideal space for gardening enthusiasts or those who simply appreciate fresh air and greenery.
Right up to the block from Brooklyn College and Midwood High School with proximity to all amenities on the Flatbush Ave commercial corridor and easy access to transportation with the B, Q, 2 & 5 trains all nearby.
Amenities
Garage; Laundry Room;
- Garage
- Laundry Room
Neighborhood
More listings:

RLS Data display by Nest Seekers LLC.
All information furnished regarding property for sale, rental or financing is from sources deemed reliable, but no warranty or representation is made as to the accuracy thereof and same is submitted subject to errors, omissions, change of price, rental or other conditions, prior sale, lease or financing or withdrawal without notice. International currency conversions where shown are estimates based on recent exchange rates and are not official asking prices.
All dimensions are approximate. For exact dimensions, you must hire your own architect or engineer.